Property Description
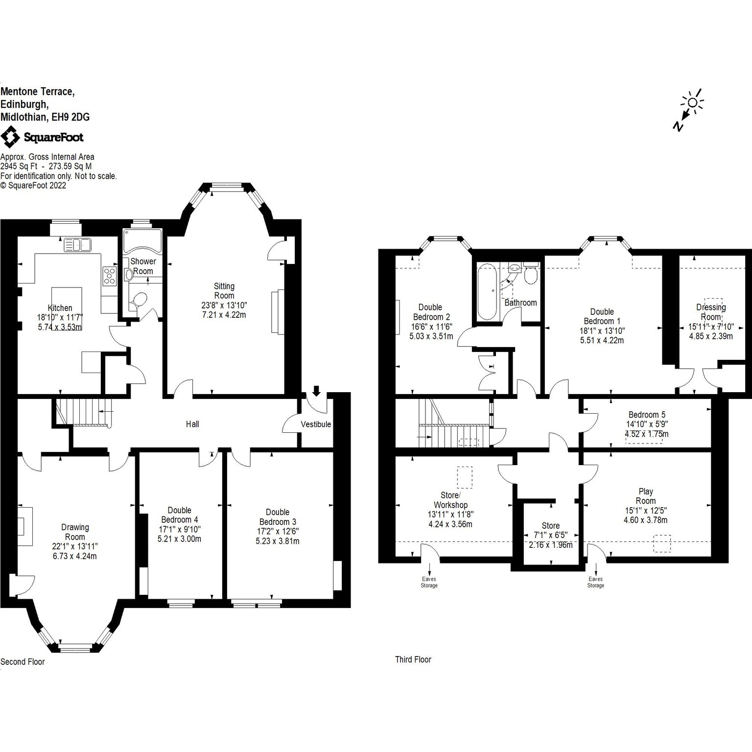
19/4 Mentone Terrace is a beautiful and elegantly proportioned five bedroomed property, with large private south facing garden, occupying the upper two floors of a handsome Victorian tenement, set peacefully in the Southside of Edinburgh. The property retains a wealth of period features including ornate cornicework/plasterwork, high ceilings, wooden flooring, feature fireplaces and impressive bay windows in the sitting room and in the drawing room, enjoying far reaching views to Salisbury Crags and Arthur Seat with Burley wood burning stove.
Offering spacious and versatile accommodation, this wonderful family home comprises five double bedrooms, two exceptional reception rooms, a fully equipped kitchen benefitting from integrated appliances, three storage rooms, and two bathrooms. Of particular mention, the principal bedroom benefits from a large walk in dressing room and enjoys views over the private rear garden to Blackford Hill.
Externally, the property benefits from a private enclosed rear garden, which has been recently redesigned, with patio area, lawn and tree house. The garden is planted with a plethora of fruit trees, berry bushes and two vegetable patches.
The area is well served by a range of excellent local amenities including Cameron Toll Shopping Centre; independent shops in Newington and the Grange; a variety of recreational Bowling and Tennis Clubs, Prestonfield Golf Club and the Commonwealth Pool. The area is popular with families, falling into the catchment area for Sciennes Primary School and Jame’s Gillespie’s High School, with private schooling options nearby including George Watson’s College, George Heriot’s and Merchiston Castle School.
More Details
Tenure - Freehold
Council Tax - F
EPC - D
Your home may be repossessed if you do not keep up repayments on your mortgage. There may be a fee for mortgage advice. The actual amount you pay will depend upon your circumstances.
Similar Properties
Looking To Sell Or Let?
Rettie is one of the most trusted and well-respected names in property. Our unrivalled market knowledge helps people from around the world buy, sell, let and develop property in Scotland and the North East of England - from city apartments and rural cottages to large townhouses and prime country homes, farms and estates. We deal with some of the most prestigious properties on the market, but provide the same exceptional standards of service and value for money to all our clients.
