1 Beechwood Mains, Murrayfield, Edinburgh, EH12 6XN
Property Description
Located in one of Edinburgh’s most sought-after neighbourhoods, 1 Beechwood Mains is a delightful conversion of a former farmhouse and steading, featuring a beautifully mature private southwest-facing garden, garage, and off-street parking.
The property offers spacious accommodation arranged partly over two levels and includes two generous public rooms, including a sitting room with French doors to the beautiful garden, three bedrooms, two bathrooms, a study, kitchen and WC.
This property represents a rare opportunity to acquire a home in a prestigious and peaceful location, with the perfect blend of charm, convenience, and access to Edinburgh’s finest schools and green spaces.
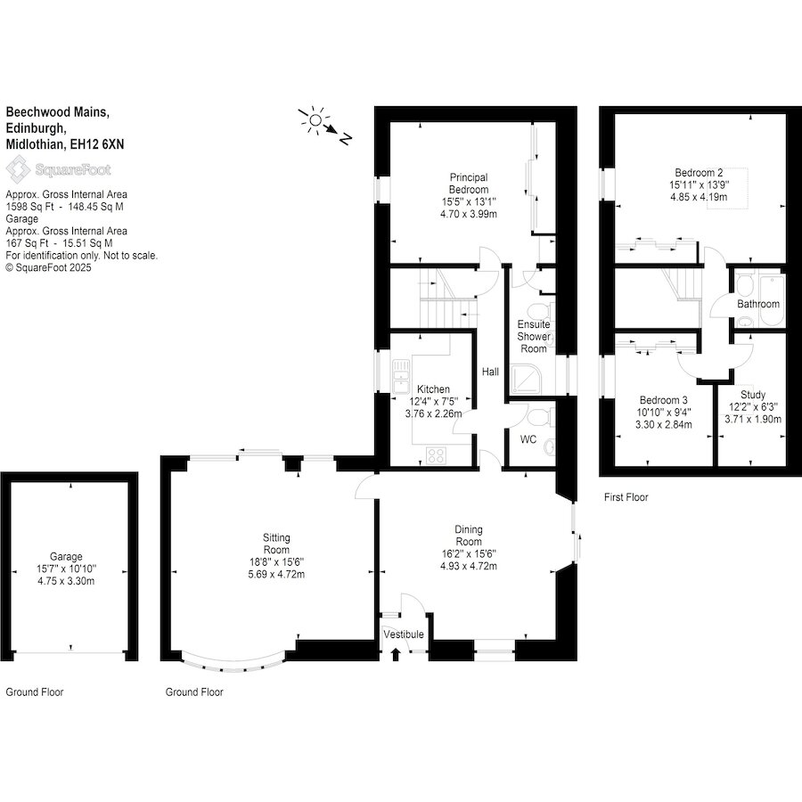
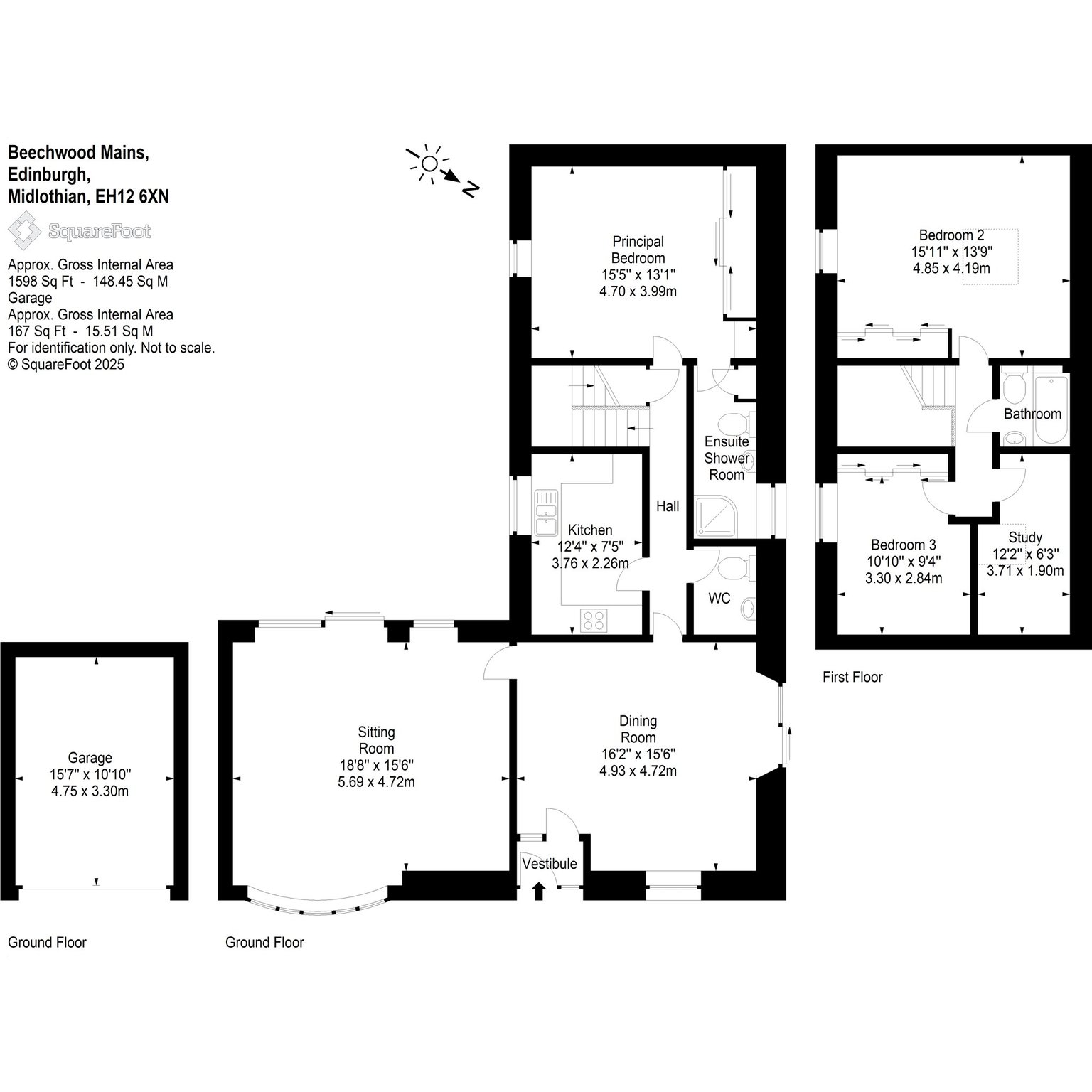
Summary of Accommodation
Ground Floor
Vestibule, Sitting Room, Dining Room, Kitchen, Principal Bedroom with Fitted Wardrobes, En-suite Shower Room, WC.
First Floor
Two Bedrooms, Study, Bathroom.
Outside
Beautiful Southwest Facing Mature Rear Garden, Front Garden, Garage, Parking
More Details
EPC - E
Council Tax Band - G
Tenure - Freehold
Your home may be repossessed if you do not keep up repayments on your mortgage.
There may be a fee for mortgage advice. The actual amount you pay will depend upon your circumstances. The fee is up to 1% but a typical fee is 0.3% of the amount borrowed.
Similar Properties
Looking To Sell Or Let?
Rettie is one of the most trusted and well-respected names in property. Our unrivalled market knowledge helps people from around the world buy, sell, let and develop property in Scotland and the North East of England - from city apartments and rural cottages to large townhouses and prime country homes, farms and estates. We deal with some of the most prestigious properties on the market, but provide the same exceptional standards of service and value for money to all our clients.
