Property Description
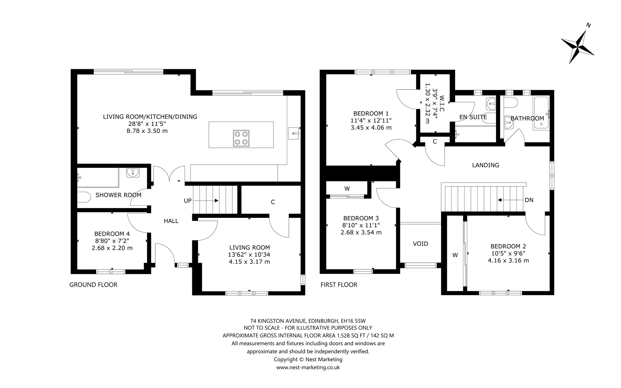
74 Kingston Avenue offers the wonderful opportunity to acquire a newly built four bedroom detached house in Liberton with off street parking for multiple vehicles and private landscaped garden. This thoughtfully arranged home presents a welcoming and flexible layout ideal for modern family life. On the ground floor there is a generous sitting room with walk in storage cupboard, a well-appointed open plan kitchen and dining area, with French doors opening onto the private, rear garden—perfect for indoor-outdoor living and entertaining. There is also a fourth bedroom and shower room completing the ground floor accommodation.
Upstairs, three well-proportioned bedrooms offer versatility—ideal as dedicated bedrooms, home offices, or guest space—each benefiting from ample natural light and storage, with the principal bedroom benefitting from a walk in dressing room and ensuite shower room. The landing leads to a family bathroom ensuring ease and comfort for all. With its private garden, generous accommodation, and practical parking provision, this detached home strikes a perfect balance between family-friendly charm and functional convenience.
Summary Of Accommodation
GROUND FLOOR
Entrance & Hall, Sitting Room with Walk in Storage Cupboard, Open Plan Kitchen/Dining/Living Room, Bedroom Four, Shower Room
FIRST FLOOR
Principal Bedroom with Walk in Dressing Room and Ensuite Shower Room, Two Double Bedrooms with Built in Wardrobes, Bathroom
OUTSIDE SPACE
Off Street Parking for Multiple Vehicles, Landscaped Rear Garden
Tenure - Freehold
More Details
Situation: Private Garden
Council Tax Band: Contact branch
Tenure: Freehold
Your home may be repossessed if you do not keep up repayments on your mortgage.
There may be a fee for mortgage advice. The actual amount you pay will depend upon your circumstances. The fee is up to 1% but a typical fee is 0.3% of the amount borrowed.
Similar Properties
Looking To Sell Or Let?
Rettie is one of the most trusted and well-respected names in property. Our unrivalled market knowledge helps people from around the world buy, sell, let and develop property in Scotland and the North East of England - from city apartments and rural cottages to large townhouses and prime country homes, farms and estates. We deal with some of the most prestigious properties on the market, but provide the same exceptional standards of service and value for money to all our clients.
