Offers Over £765,000
Upper Floor Apartment
3 Bedrooms
1 Bathroom
2 Reception Rooms
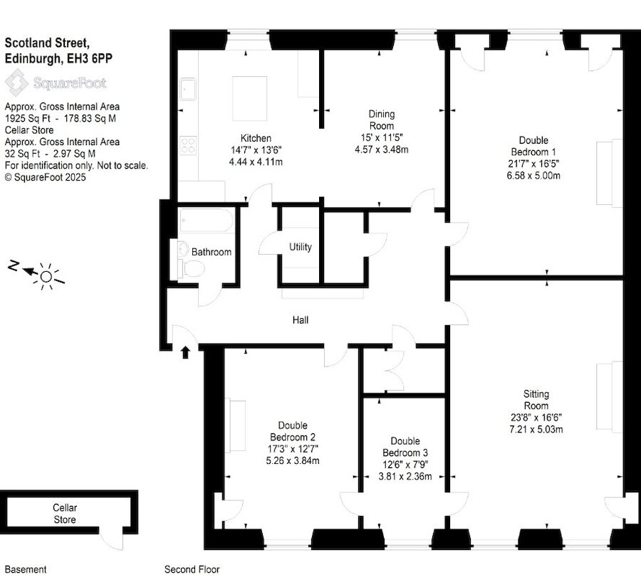
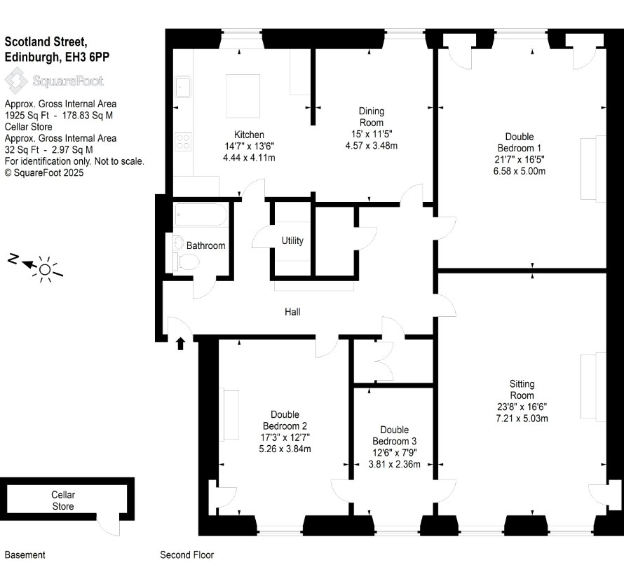
1,925 sq.ft
On Street/Permit
Property Description
A beautifully presented second-floor flat within a purpose-built Georgian tenement, extending to around 1,925 sq ft. This elegant property combines classic period proportions with a thoughtful refurbishment, creating a stylish and versatile New Town home.
Key Features
- Generous second floor flat of approx. 1,925 sq ft
- Superb kitchen dining room spanning two rear rooms with open leafy views
- Kitchens International refurbishment with sleek design, integrated appliances, and flagstone flooring
- Elegant formal sitting room with twin windows, westerly aspect, wood
- burning stove, and afternoon/evening sun
- Three double bedrooms, including a spacious principal bedroom with fireplace and two guest/family rooms
- Grand reception hall with architraves and Georgian arches, providing scale and grandeur
- Well appointed internal bathroom with shower over bath
- Period detail throughout: astragal windows, ornate cornicing, wooden floors
- Utility cupboard, two store cupboards, and a cellar store in the basement
- Attractive outlook over Drummond Tennis Club and neighbouring shared gardens
- Access to Queen Street Gardens East available upon application for a modest annual fee
- Permit parking available for residents
- Prime New Town location, walking distance to the city centre and Stockbridge
More Details
EPC: D
Council Tax Band: G
Tenure: Freehold
Viewing by appointment only.
Your home may be repossessed if you do not keep up repayments on your mortgage. There may be a fee for mortgage advice. The actual amount you pay will depend upon your circumstances.
Similar Properties
Looking To Sell Or Let?
Rettie is one of the most trusted and well-respected names in property. Our unrivalled market knowledge helps people from around the world buy, sell, let and develop property in Scotland and the North East of England - from city apartments and rural cottages to large townhouses and prime country homes, farms and estates. We deal with some of the most prestigious properties on the market, but provide the same exceptional standards of service and value for money to all our clients.
