Offers Over £795,000
Duplex Apartment
2 Bedrooms
2 Bathrooms
2 Reception Rooms
1,586 sq.ft
Communal Garden
Secure Parking, Underground Parking
Property Description
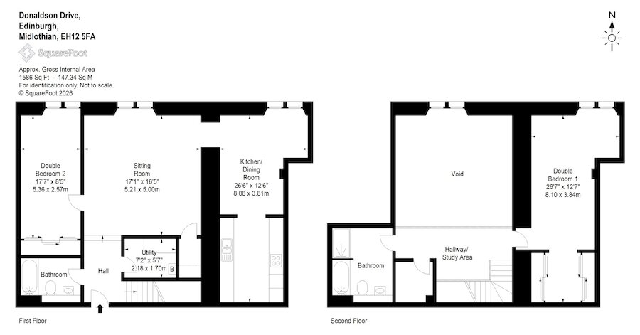
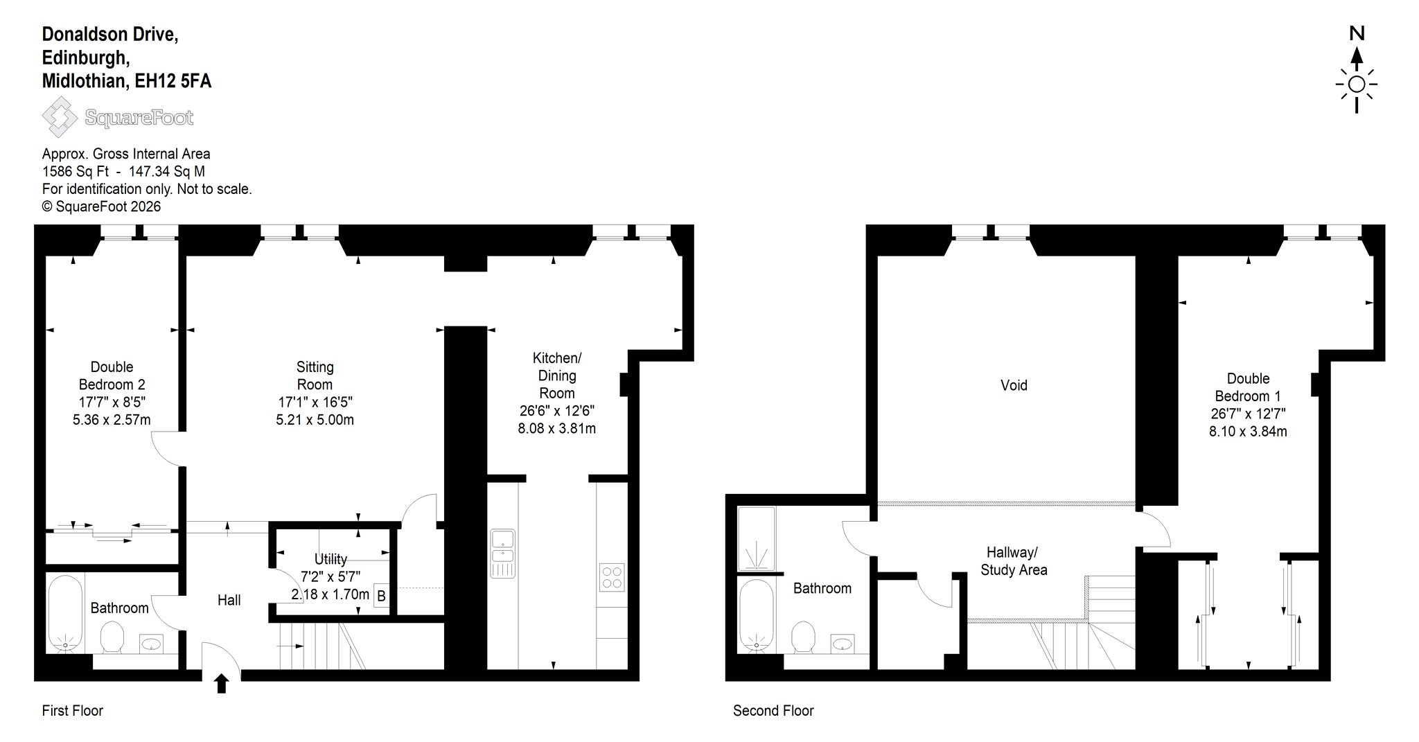
A stunning two-bedroom, two-bathroom, split-level apartment with lift set within the prestigious Donaldson’s development, one of Edinburgh’s most distinctive and sought-after residential addresses. Presented in immaculate condition throughout, the property combines contemporary design with striking architectural features, most notably its dramatic high ceilings and beautifully arranged split-level layout which creates a wonderful sense of space and light. The property further benefits from high-quality wooden flooring throughout the kitchen/dining room, living room, entrance hallway and utility.
The accommodation opens into a welcoming entrance hallway which leads through to the heart of the home, an impressive sitting room defined by its exceptional ceiling height and bright, airy atmosphere. The large windows flood the room with natural light, enhancing the feeling of openness and providing an elegant setting for both relaxing and entertaining. The living space flows seamlessly towards the kitchen and dining area, creating a sociable open-plan environment ideal for modern living. The kitchen itself is a bespoke design, featuring high-quality in-built Siemens appliances including an oven, combination microwave/oven, fridge with separate freezer, as well as a dishwasher, cooker and extractor, all complemented by generous worktop space and excellent storage.
Also located on the lower level is a large and bright double bedroom which enjoys a pleasant outlook and benefits from substantial fitted wardrobe and storage space. A contemporary bathroom finished to a high standard serves this level, featuring high-end fixtures and extensive mirrored wall storage cupboards. A useful utility room off the hall provides additional storage and practicality, while a large understair cupboard further enhances the excellent storage provision on this floor.
The upper floor further highlights the unique character of the apartment. A spacious hallway opens onto a striking viewing platform overlooking the living room below, creating a dramatic architectural feature and reinforcing the sense of height and openness within the property. This upper level also incorporates a large study area, providing an excellent workspace for those working from home or seeking a quiet reading or creative space. In addition, there is a substantial walk-in cupboard adjacent to the study area, contributing to the significant level of storage found throughout the apartment.
The principal bedroom is situated on this floor and is particularly generous in scale, offering a bright and peaceful retreat, complete with a dedicated dressing area and extensive fitted wardrobe storage. A second stylish bathroom completes the upper accommodation, featuring high-end fixtures, extensive mirrored storage, as well as both a bath and a separate shower.
Throughout the apartment, the high specification and careful presentation are immediately apparent, with the current owners maintaining the property to an exceptional standard. The layout is both practical and visually impressive, making the home equally suited to everyday living or entertaining guests. The property further benefits from two underground, gated and secure car parking spaces, as well as access to bike storage and well-maintained communal areas.
Summary Of Accommodation
First Floor
Entrance Hallway, Sitting Room, Kitchen/Dining Room, Double Bedroom, Bathroom, Utility Room, Storage Room.
Second Floor
Principal Bedroom, Bathroom, Viewing Platform with Study Area. Storage Room.
Externally
Two Underground Secure Parking Spaces.
More Details
Tenure - Freehold
Council Tax - G
EPC - C
Your home may be repossessed if you do not keep up repayments on your mortgage.
There may be a fee for mortgage advice. The actual amount you pay will depend upon your circumstances. The fee is up to 1% but a typical fee is 0.3% of the amount borrowed.
Similar Properties
Looking To Sell Or Let?
Rettie is one of the most trusted and well-respected names in property. Our unrivalled market knowledge helps people from around the world buy, sell, let and develop property in Scotland and the North East of England - from city apartments and rural cottages to large townhouses and prime country homes, farms and estates. We deal with some of the most prestigious properties on the market, but provide the same exceptional standards of service and value for money to all our clients.
