Property Description
187 Mayfield Road is a substantial and characterful 1930s detached villa, offering a rare opportunity to acquire a family home of scale, presence, and charm. Set on a prominent corner plot, the property combines elegant period architecture with generous landscaped mature gardens, extensive frontage, and excellent potential for further enhancement or development, subject to the relevant consents.
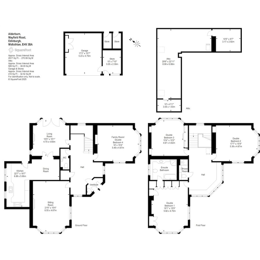
A welcoming vestibule opens into a generous central hallway, setting the tone for the home’s sense of scale. To the rear, a bright family room with double doors leads directly onto the garden, and further double doors connect through to the spacious kitchen/living/dining area - a superb everyday living space with garden views. The kitchen is well fitted with integrated appliances, and a side door gives access to the terraced patio area and garden.
At the front of the house, the elegant bay-windowed living room features a central fireplace and offers generous proportions. A further bay-windowed reception room, with gas fire, provides excellent flexibility — ideal as a formal dining room, additional sitting room, or even a fourth bedroom. A guest WC completes the ground floor.
On the first floor, a broad landing with feature window and seating area enjoys an outlook over the south-west facing garden. The principal bedroom is impressive in scale and includes a luxury ensuite bathroom with separate shower. Two further large double bedrooms lie to the side and rear, served by a contemporary shower room.
The attic is fully floored and accessed via a Ramsay ladder, providing excellent storage useful family space, currently used as a home office/den.
Key Features
- Handsome detached villa dating from the 1930s
- Prime corner plot with excellent outlook and privacy
- Flexible family accommodation with scope to extend into the attic (subject to relevant consents)
- Retained period features including bay windows, cornicing, and timber detailing
- Expansive rear garden offering privacy and scope for further landscaping
- Impressive approach with gated entrance, driveway, and detached double garage
- Prime South Edinburgh location, close to excellent schools, transport links, and green spaces
- Planning permission has been granted to erect a three-bedroom dwelling in one of the garden areas. Planning reference number 25/02235/FUL:
Please visit Edinburgh Planning Portal for further information: 25/02235/FUL | To subdivide the property and erect a new two storey three bed dwelling with associated access and landscaping (as amended). | 187 Mayfield Road Edinburgh EH9 3BA
More Details
EPC: D
Council Tax Band: H
Tenure: Freehold
Viewing by appointment.
Your home may be repossessed if you do not keep up repayments on your mortgage. There may be a fee for mortgage advice. The actual amount you pay will depend upon your circumstances.
Similar Properties
Looking To Sell Or Let?
Rettie is one of the most trusted and well-respected names in property. Our unrivalled market knowledge helps people from around the world buy, sell, let and develop property in Scotland and the North East of England - from city apartments and rural cottages to large townhouses and prime country homes, farms and estates. We deal with some of the most prestigious properties on the market, but provide the same exceptional standards of service and value for money to all our clients.
