Property Description
This beautifully presented two-bedroom flat is situated on the third floor of a traditional tenement on the highly sought-after Dalkeith Road. 233/6 Dalkeith Road just minutes from The Meadows, Edinburgh University, and excellent local amenities presents the opportunity to acquire a classic Edinburgh tenement boasting high ceilings, generous room sizes, and a thoughtfully designed layout, this impressive property is ideal for professionals, young families, or those seeking a peaceful city retreat with exceptional outlooks.
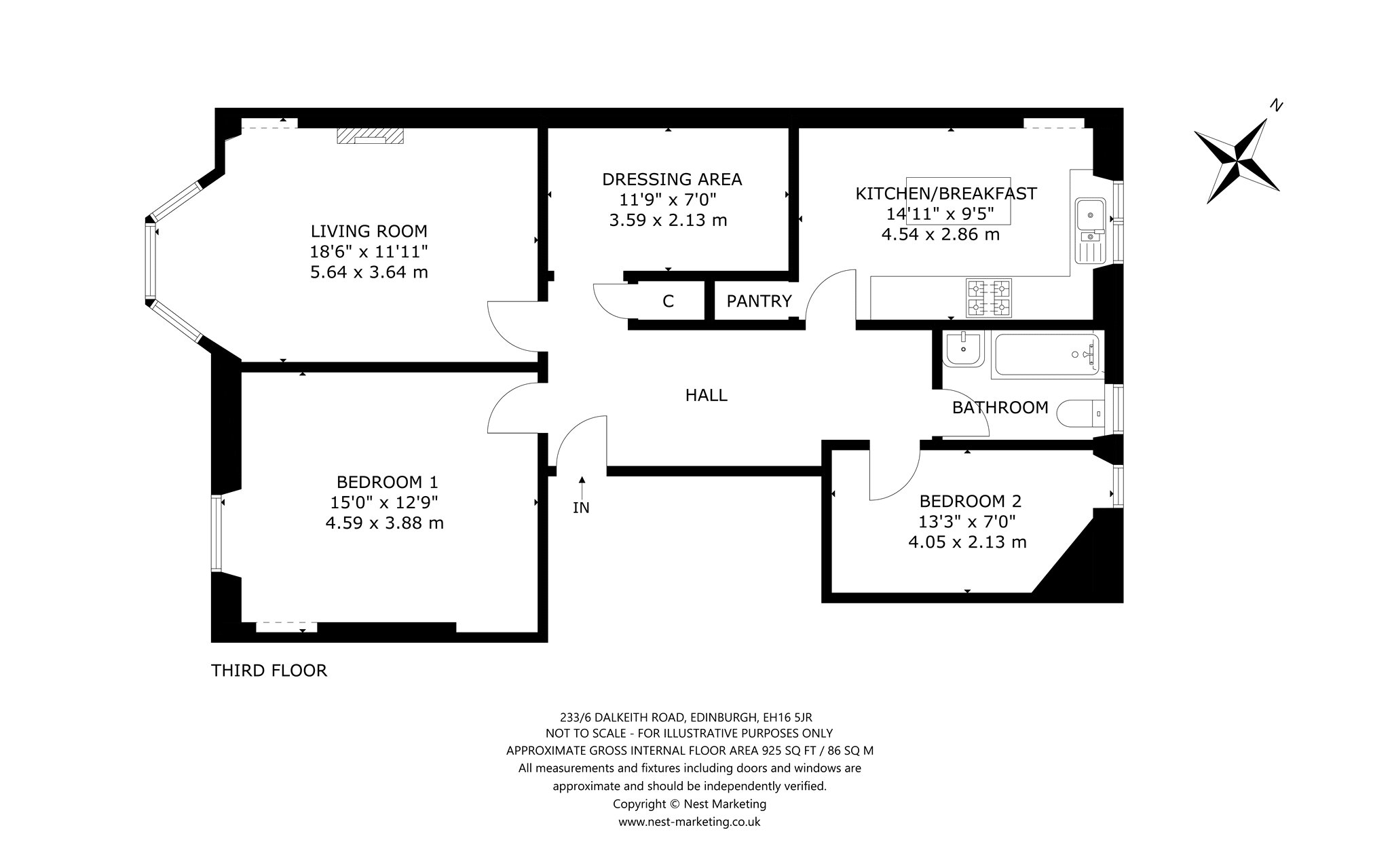
The bright and spacious living room with bay window filled with natural light and not overlooked provides ideal entertaining and relaxing space. Completing the front of the accommodation with the principal bedroom offering a particularly large footprint, providing plenty of space for storage. To the rear, the kitchen/breakfast room is modern and well-equipped, offering generous room for dining and everyday use, the second bedroom ideal for guests, children, or a home office. A versatile box currently used as a dressing area excellent as a walk-in wardrobe, nursery, or study. The contemporary bathroom is fitted with a full-size bath/shower presented in clean, modern fashion. The flat includes a generous attic space, easily accessed via a ceiling hatch; perfect for additional storage or conversion potential.
Summary Of Accommodation
Hallway, Principal double bedroom, Second double bedroom, Living room, Kitchen, Dressing area, Bathroom
External: Communal stair, shared garden to rear
Location
The property is perfectly located for access to Arthurs Seat, Holyrood Palace, the Royal Commonwealth Pool, and a range of golf courses including Prestonfield, Duddingston and Liberton. Exceptionally well connected by regular bus services and is within easy reach of Edinburgh University, the Royal Infirmary, and major commuter routes, making it a popular location for students, professionals, and families alike. Cameron Toll Shopping Centre is a short walk away, and Fort Kinnaird Retail Park is as short drive away, where you will find a fantastic range of shopping and dining options.
More Details
EPC: C
Tax Band: D
Tenure: Freehold
Viewing by appointment via Rettie & Co
Your home may be repossessed if you do not keep up repayments on your mortgage.
There may be a fee for mortgage advice. The actual amount you pay will depend upon your circumstances. The fee is up to 1% but a typical fee is 0.3% of the amount borrowed.
Similar Properties
Looking To Sell Or Let?
Rettie is one of the most trusted and well-respected names in property. Our unrivalled market knowledge helps people from around the world buy, sell, let and develop property in Scotland and the North East of England - from city apartments and rural cottages to large townhouses and prime country homes, farms and estates. We deal with some of the most prestigious properties on the market, but provide the same exceptional standards of service and value for money to all our clients.
