Eskgrove, 5 Inveresk Village, East Lothian, EH21 7TD

East Lothian, EH21 7TD
New
Pin View on map

Offers Over £2,950,000

House

Detached House

Bed

6 Bedrooms

Bathroom

5 Bathrooms

Reception

5 Reception Rooms

Size

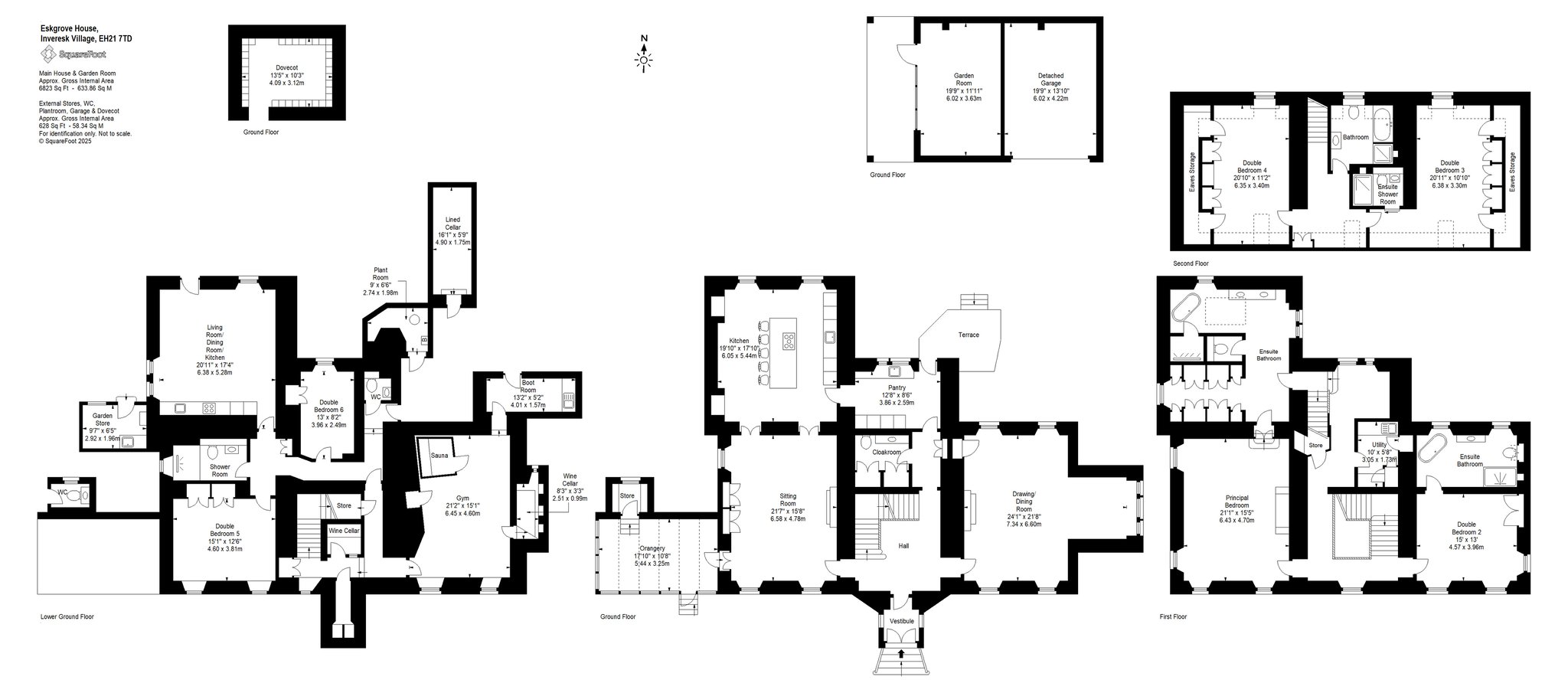
7,454 sq.ft

Plot

About 2.74 Acres

Tree

Private Garden

Garage

Garage

Parking

Off Street Parking

Telephone

Property Description

Eskgrove House is an exceptional and beautifully proportioned Category B-Listed mansion set within approximately 2.74 acres of immaculately maintained mature gardens and woodland in the heart of historic Inveresk Village. Extending to around 7,454 sq. ft over four floors, the property combines grand period architecture with an outstanding full refurbishment completed by Square & Crescent in recent years.

Believed to date from 1736, during the reign of George II, with a later Victorian addition of 1903, Eskgrove House was originally built for Sir David Rae, later Lord Eskgrove and Lord Justice-Clerk - Scotland’s second-highest judge. His family emblem, a carved stag, remains proudly positioned above the front entrance.

The house is completely secluded, set behind high stone walls and mature hedging, with electric gated access at both the front and rear.

More Details

EPC: C
Council Tax Band: H
Tenure: Freehold

Viewing by appointment only.

Request More Details

Max Mills

Max Mills

Director, Residential Sales
Maz Purdie

Maz Purdie

Senior Sales Negotiator
Paul Banyard Cert CII (MP)

Paul Banyard Cert CII (MP)

Mortgage & Protection Advisor
Mortgage Calculator
Monthly payments
Please set an interest rate.

Your home may be repossessed if you do not keep up repayments on your mortgage.

There may be a fee for mortgage advice. The actual amount you pay will depend upon your circumstances. The fee is up to 1% but a typical fee is 0.3% of the amount borrowed.

Tax Calculator
LBTT calculator for properties purchased in Scotland. Stamp Duty calculator for properties purchased in England.
Land & buildings transaction tax (LBTT)
= £0
New build house with stone and timber cladding

Looking To Sell Or Let?

Rettie is one of the most trusted and well-respected names in property. Our unrivalled market knowledge helps people from around the world buy, sell, let and develop property in Scotland and the North East of England - from city apartments and rural cottages to large townhouses and prime country homes, farms and estates. We deal with some of the most prestigious properties on the market, but provide the same exceptional standards of service and value for money to all our clients.