26 Carlton Terrace Mews, Edinburgh, Midlothian, EH7 5DA
Offers Over £715,000
Terraced House
2 Bedrooms
2 Bathrooms
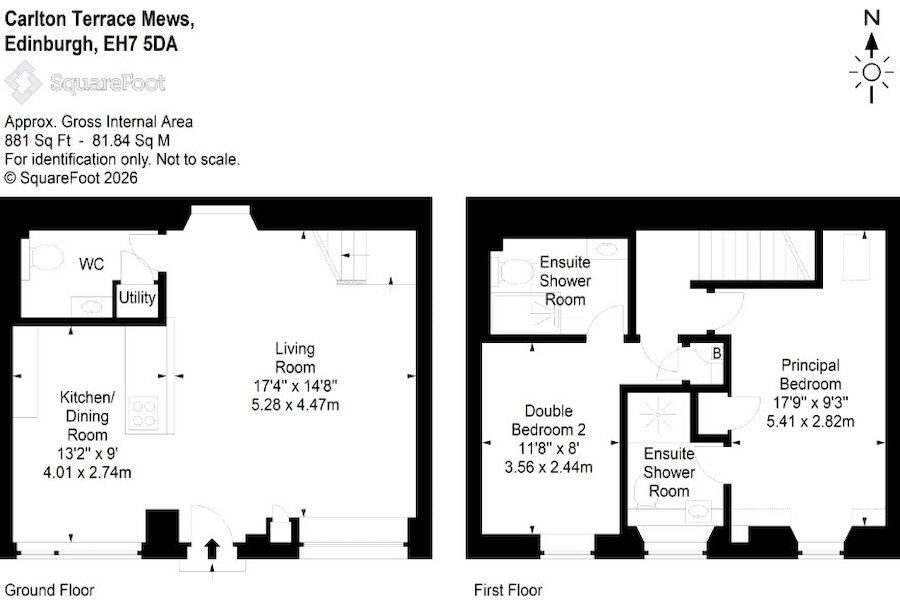
881 sq.ft
Communal Garden
Off Street Parking
Property Description
Tucked away in an exclusive and peaceful mews setting, 26 Carlton Terrace Mews is a beautifully presented, south facing house that has been renovated to an exceptionally high standard throughout. Combining elegant contemporary finishes with a highly practical layout, this superb property offers stylish city living in the heart of Edinburgh.
The ground floor is centred around a bright and spacious living room, thoughtfully designed to maximise both comfort and natural light. The modern kitchen/dining room is finished to an impeccable standard, featuring sleek cabinetry, quality appliances and space for dining, perfect for both everyday living and entertaining. A useful utility area and WC complete the ground floor accommodation.
Upstairs, the property continues to impress with two well-proportioned double bedrooms. The principal bedroom benefits from built-in storage and a beautifully appointed en suite shower room, while the second bedroom is equally well-presented and also enjoys its own stylish en suite facilities. Each bathroom has been finished with high-quality fittings, reflecting the overall attention to detail seen throughout the home.
Every aspect of the property has been carefully considered during its renovation, resulting in a turnkey home finished to an exceptional standard, with a clean, contemporary aesthetic and a high level of specification throughout. The home also benefits from smart features including automated blinds and Bluetooth-enabled ceiling speakers, enhancing both comfort and convenience.
Further benefits include access to and use of Regent Terrace Gardens, the largest of Edinburgh’s New Town private gardens, as well as access to the Carlton Terrace Mews communal gardens and residents’ parking.
Carlton Terrace Mews is a highly sought-after location, offering a quiet, tucked-away feel while being just moments from the vibrant amenities of the city centre, Leith Walk and the St James Quarter. Excellent transport links, green spaces, and a range of cafés, restaurants and shops are all within easy reach.
This is a rare opportunity to acquire a meticulously finished home in a prime central location—early viewing is highly recommended.
More Details
EPC: C
Council Tax Band: G
Tenure: Freehold
Viewing strictly by appointment.
Your home may be repossessed if you do not keep up repayments on your mortgage.
There may be a fee for mortgage advice. The actual amount you pay will depend upon your circumstances. The fee is up to 1% but a typical fee is 0.3% of the amount borrowed.
Similar Properties
Looking To Sell Or Let?
Rettie is one of the most trusted and well-respected names in property. Our unrivalled market knowledge helps people from around the world buy, sell, let and develop property in Scotland and the North East of England - from city apartments and rural cottages to large townhouses and prime country homes, farms and estates. We deal with some of the most prestigious properties on the market, but provide the same exceptional standards of service and value for money to all our clients.
