2 Smeaton Grove, Inveresk, Musselburgh, East Lothian, EH21 7TW

Inveresk, Musselburgh, East Lothian, EH21 7TW
Under Offer
Pin View on map

Offers Over £695,000

House

Semi Detached House

Bed

4 Bedrooms

Bathroom

2 Bathrooms

Reception

3 Reception Rooms

Tree

Private Garden

Garage

Garage

Telephone

Property Description

CLOSING DATE SET - Wednesday 8th April at 12 noon

A beautifully renovated late-Georgian/early Victorian 4-bedroom semi-detached home, boasting bright, spacious interiors and a large, designed landscaped garden, within easy commuting distance to Edinburgh.

2 Smeaton Grove is situated within the beautiful conservation village of Inveresk - situated on the outskirts of Edinburgh near to the market town of Musselburgh. Historically rich, the village dates back to the Roman era and is the site of a significant Roman fort, with connections to major historical conflicts and Mary Queen of Scots. During the 18th and 19th centuries, the village became a fashionable residence for wealthy professionals and landowners seeking a healthy, idyllic spot away from the pollution of ‘Auld Reekie’ Edinburgh. This subsequently led to the construction of many listed, opulent homes, of which 2 Smeaton Grove is a perfect example.

This stunning category B listed home dates from the early to mid 19th century, and has been beautifully renovated by the current owners whilst maintaining its wonderful Georgian/Victorian features. The property is of stone construction under a slate roof and boasts attractive astragal sash and case windows, elegant cornicing, engineered wood flooring, a period mahogany banister with iron stair rods and a wood burning stove.

The landscaped gardens at 2 Smeaton Grove are a real feature of the home and have been beautifully maintained by the current owners.

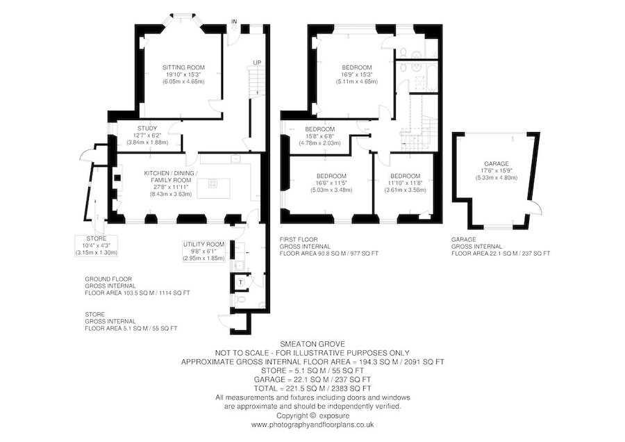
Accommodation

Ground Floor: Entrance Hall, Sitting Room, Open Plan Dining Kitchen/Living Room, Study, Utility Room, WC & Cloaks Cupboard

First Floor: Landing, Principal Bedroom with Ensuite Shower Room, Two Double Bedrooms, a Single Bedroom, Family Bathroom and access to Floored Loft

Garden: Beautifully manicured gardens to the front and rear with a spacious area of lawn surrounded by mature herbaceous borders and a large patio terrace

Garage & Outhouses: Single garage and three stone-built outhouses

About: 0.16 acres

More Details

Tenure: Freehold
Council Tax: Band G
EPC: Band D

Contact Us

Charlotte Canby

Charlotte Canby

Senior Sales Negotiator
Paul Banyard Cert CII (MP)

Paul Banyard Cert CII (MP)

Mortgage & Protection Advisor
Mortgage Calculator
Monthly payments
Please set an interest rate.

Your home may be repossessed if you do not keep up repayments on your mortgage.

There may be a fee for mortgage advice. The actual amount you pay will depend upon your circumstances. The fee is up to 1% but a typical fee is 0.3% of the amount borrowed.

Tax Calculator
LBTT calculator for properties purchased in Scotland. Stamp Duty calculator for properties purchased in England.
Land & buildings transaction tax (LBTT)
= £0
New build house with stone and timber cladding

Looking To Sell Or Let?

Rettie is one of the most trusted and well-respected names in property. Our unrivalled market knowledge helps people from around the world buy, sell, let and develop property in Scotland and the North East of England - from city apartments and rural cottages to large townhouses and prime country homes, farms and estates. We deal with some of the most prestigious properties on the market, but provide the same exceptional standards of service and value for money to all our clients.