Barn 1, Kingswood, Leadburn, Scottish Borders, EH46 7BW

Kingswood, Leadburn, Scottish Borders, EH46 7BW
New
Pin View on map

Offers Over £100,000

House

Detached

Bed

2 Bedrooms

Bathroom

3 Bathrooms

Reception

1 Reception Room

Plot

About 0.26 Acres

Tree

Private Garden

Parking

Off Street Parking

Telephone

Property Description

An exciting opportunity to purchase a fully serviced plot measuring approximately 0.26 Acres, with full planning permission to convert a former steading into a 3-bedroom home, situated in stunning rural surroundings, yet still within commuting distance of Edinburgh.

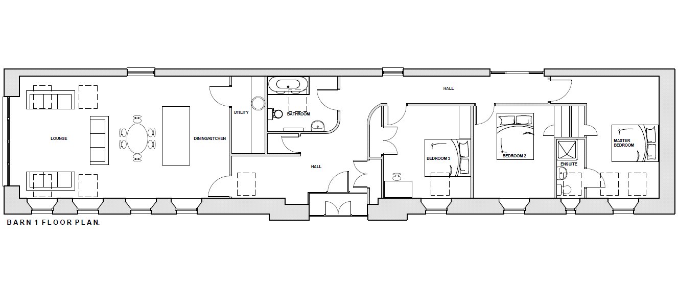
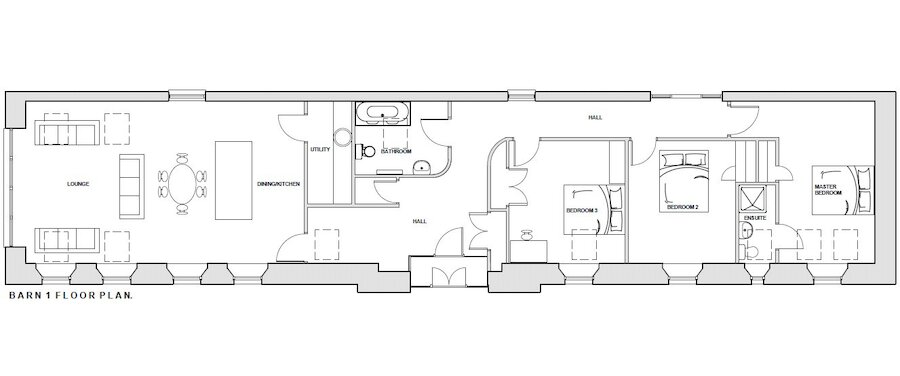
Proposed Summary Of Accommodation

Ground Floor: Entrance Vestibule, Entrance Hall, Open Plan Kitchen-Dining-Sitting Room, Utility Room, Principal Bedroom with En Suite Shower Room, Two further Double Bedrooms, a Bathroom and Two Hall Cupboards.

Garden: A garden plot.

Parking: Two parking spaces.

Garage: (Planning consent for a garage.)

About: 0.26 Acres

Planning Ref: Consent 05/02215/FUL for 8 houses with amendment
to add additional 2.

Warrant Ref: 20/00437

More Details

Situation: Private Garden
Council Tax Band: Contact branch
Tenure: Freehold

Request More Details

Paul Banyard Cert CII (MP)

Paul Banyard Cert CII (MP)

Mortgage & Protection Advisor
Mortgage Calculator
Monthly payments
Please set an interest rate.

Your home may be repossessed if you do not keep up repayments on your mortgage.

There may be a fee for mortgage advice. The actual amount you pay will depend upon your circumstances. The fee is up to 1% but a typical fee is 0.3% of the amount borrowed.

Tax Calculator
LBTT calculator for properties purchased in Scotland. Stamp Duty calculator for properties purchased in England.
Land & buildings transaction tax (LBTT)
= £0
New build house with stone and timber cladding

Looking To Sell Or Let?

Rettie is one of the most trusted and well-respected names in property. Our unrivalled market knowledge helps people from around the world buy, sell, let and develop property in Scotland and the North East of England - from city apartments and rural cottages to large townhouses and prime country homes, farms and estates. We deal with some of the most prestigious properties on the market, but provide the same exceptional standards of service and value for money to all our clients.