Property Description
A gorgeous, two bedroomed ground floor flat situated in the heart of Shawlands.
This beautiful flat has undergone a total refurbishment to create a home of outstanding quality; a must for viewing in order to be appreciated.
This red sandstone tenement building is accessed via secure door entry system into a well-kept communal close, where the flat is accessed on the right.
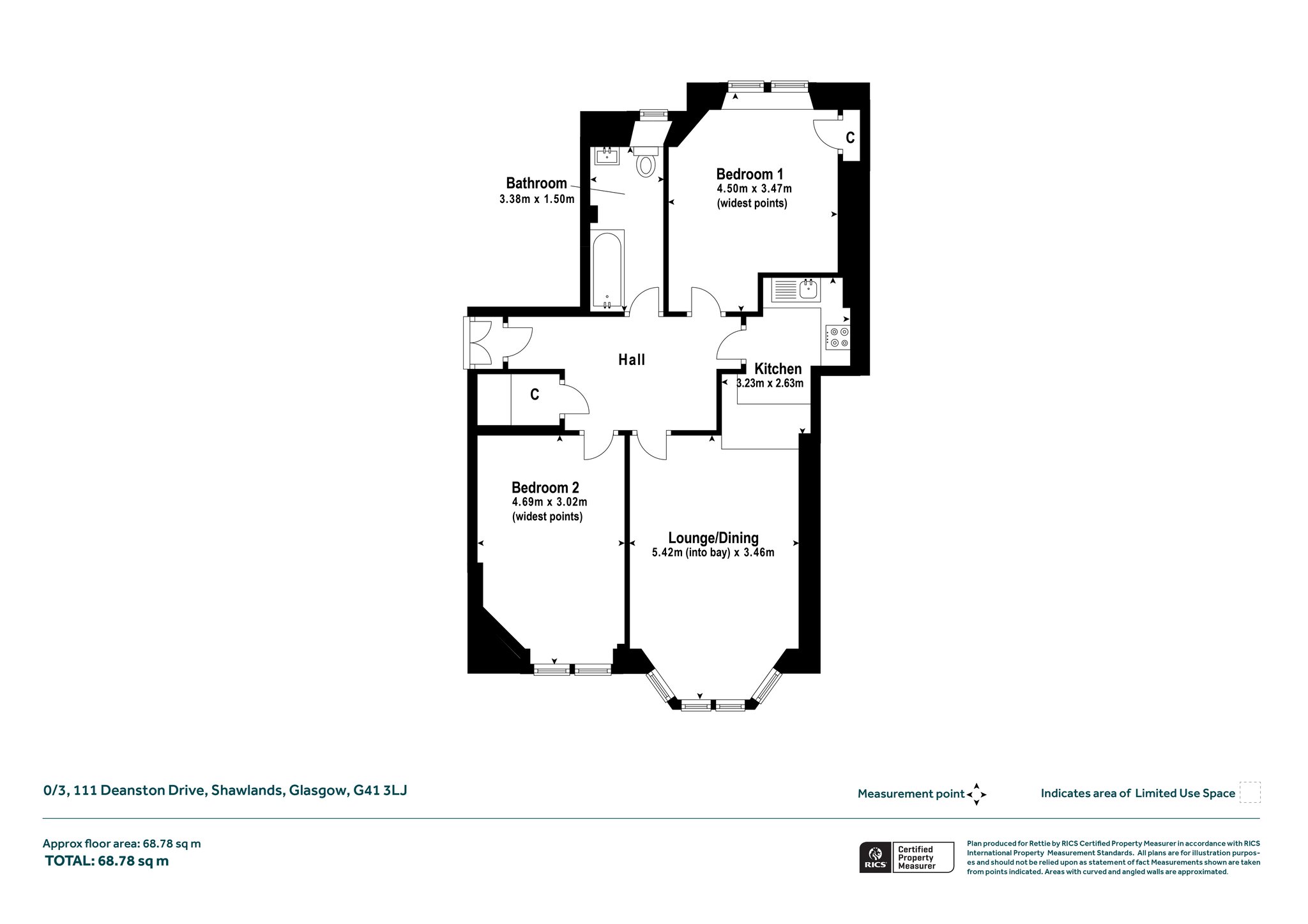
The accommodation of the flat itself comprises welcoming reception hallway with large cupboard off, delightful bay windowed lounge, kitchen with a range of integrated appliances, base and wall mounted units and breakfast bar opening into the lounge, double sized bedroom one to the rear of the flat, second double sized bedroom to the front that could be utilised very flexibly and fabulous tiled bathroom with panelling, three piece suite, vanity unit and heated towel rail.
The property also benefits from double glazing, gas central heating, refurbished floorboards, high quality floor coverings and attractive, contemporary decor throughout. Externally there is a communal rear garden.
Shawlands is considered by many to be the "brunch capital" of Glasgow. While the brunch spots are excellent and numerous, there are also a wide range of other amenities including restaurants, bars, parks and much more. This flat is perfectly situated to enjoy everything that Shawlands has to offer, including Queens Park at the end of the street as well as excellent transport links with Pollokshaws East and Crossmyloof a short walk away.
More Details
Council Tax - Band C
Tenure - Freehold
EPC - Band C
Your home may be repossessed if you do not keep up repayments on your mortgage. There may be a fee for mortgage advice. The actual amount you pay will depend upon your circumstances.
Similar Properties
Looking To Sell Or Let?
Rettie is one of the most trusted and well-respected names in property. Our unrivalled market knowledge helps people from around the world buy, sell, let and develop property in Scotland and the North East of England - from city apartments and rural cottages to large townhouses and prime country homes, farms and estates. We deal with some of the most prestigious properties on the market, but provide the same exceptional standards of service and value for money to all our clients.
