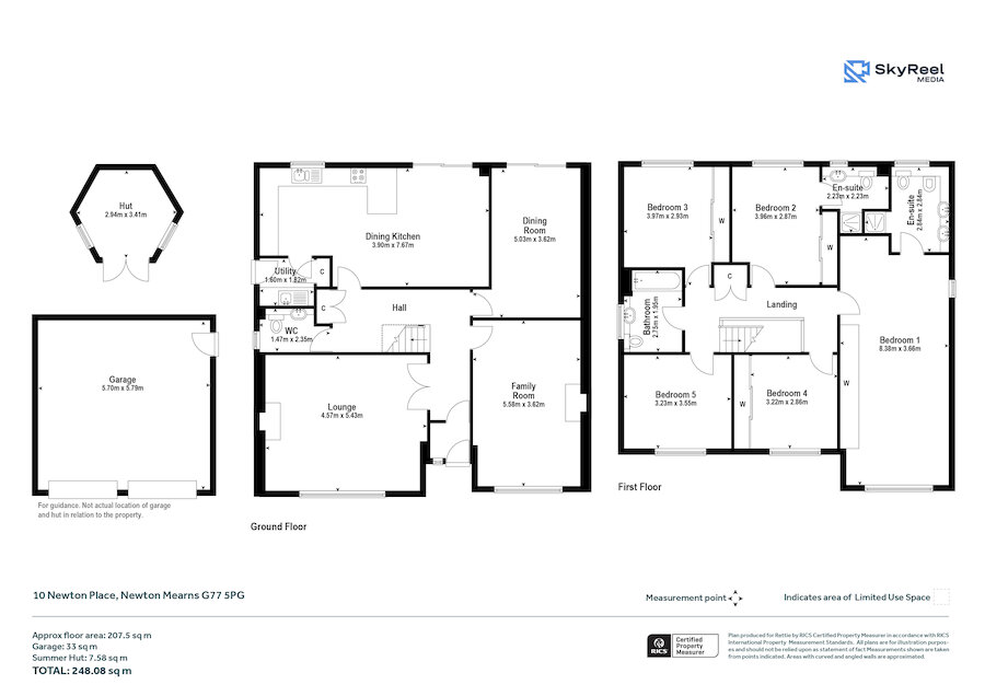
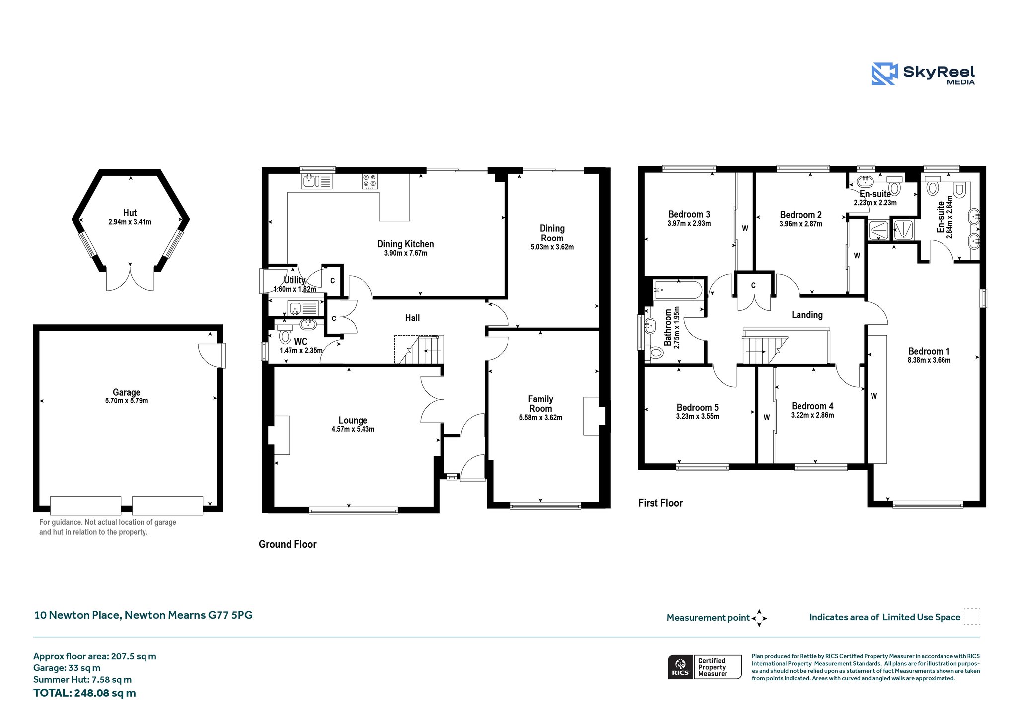
10 Newton Place, Newton Mearns, Glasgow, G77 5PG
Property Description
Tucked away within a peaceful Newton Mearns culdesac, this impressive family home sits on a generous plot with extensive gardens, a large driveway, and a detached double garage, offering an exceptional level of space both inside and out.
The welcoming hallway gives access to a bright and spacious lounge overlooking the front gardens. To the rear, a superb kitchen/dining room provides a fantastic central hub for everyday family life, complete with ample worktop space and direct access out to the garden. A separate formal dining room offers additional entertaining space, while the charming family room adds versatility - perfect as a TV room, snug, or home office. A useful WC, utility area, and several storage cupboards complete the ground floor accommodation.
The upper level offers excellent bedroom provision with five wellproportioned rooms. The spacious and striking principal bedroom benefits from fitted wardrobes and a modern ensuite shower room. Bedrooms two and three are spacious doubles, while bedrooms four and five offer great flexibility as children’s rooms, guest rooms, or dedicated workspaces. A wellappointed family bathroom and additional landing storage complete the first floor.
This impressive home further benefits from gas central heating, double glazing, and substantial storage throughout. The property is also fitted with solar panels, offering an additional modern energy feature. Externally, the home sits on a generous plot with extensive driveway parking and a detached double garage, ideal for vehicles, storage, or use as a workshop. The surrounding gardens are a real highlight - beautifully maintained, offering excellent privacy, and providing superb outdoor space for families, gardeners, or those who love to entertain. There is also a charming garden hut/summer house, perfect for relaxing or enjoying the garden in all seasons.
Newton Mearns is one of East Renfrewshire’s most prestigious and wellestablished residential areas, known for its excellent schooling, wide range of amenities, and strong commuter links. The area benefits from convenient access to shops, cafés, supermarkets, parks, golf clubs, and leisure facilities. With plentiful walking routes and green spaces nearby, it’s an ideal location for those seeking a balance of convenience and a highquality suburban lifestyle.
Freehold
EPC C
More Details
Situation: Private Garden
Council Tax Band: G
Tenure: Freehold
Your home may be repossessed if you do not keep up repayments on your mortgage.
There may be a fee for mortgage advice. The actual amount you pay will depend upon your circumstances. The fee is up to 1% but a typical fee is 0.3% of the amount borrowed.
Similar Properties
Looking To Sell Or Let?
Rettie is one of the most trusted and well-respected names in property. Our unrivalled market knowledge helps people from around the world buy, sell, let and develop property in Scotland and the North East of England - from city apartments and rural cottages to large townhouses and prime country homes, farms and estates. We deal with some of the most prestigious properties on the market, but provide the same exceptional standards of service and value for money to all our clients.
