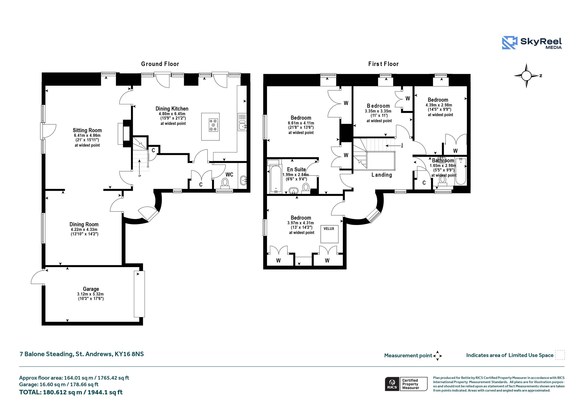
7 Balone Steading, St. Andrews, KY16 8NS

St. Andrews, KY16 8NS
Sold
Pin View on map

Offers Over £595,000

House

Semi Detached House

Bed

4 Bedrooms

Bathroom

2 Bathrooms

Reception

2 Reception Rooms

Tree

Private Garden

Garage

Garage

Telephone

Property Description

Forming part of an attractive steading conversion just outside St Andrews, this beautifully presented semi-detached home offers spacious, light-filled interiors and an appealing blend of contemporary comfort and traditional character. The property comprises four double bedrooms (one en-suite), two versatile reception rooms, a generous dining kitchen, a family bathroom, and a convenient ground-floor WC/utility. It is further complemented by a well-maintained, south-facing garden, an attached single garage, and a private driveway.

The home is entered via a charming stone turret into a welcoming reception hall with useful built-in storage and a cloakroom/WC. From here, double doors open into the elegant open-plan living and dining room; a wonderful space for both family living and entertaining. Dual-aspect windows, including a near full-height arched feature window with garden access, flood the space with natural light and frame pleasant outlooks. A contemporary fireplace adds a focal point to the living area, while the adjoining dining space offers ample room for formal gatherings.

The kitchen, conveniently accessed from the living area, is appointed with modern gloss-white cabinetry, generous worksurfaces, and a central island, complemented by quality integrated appliances. French doors open to a west-facing patio, providing a delightful spot for outdoor dining. The ground floor WC doubles as a utility area with fitted cabinetry and laundry space.

Upstairs, a bright landing leads to four well-proportioned bedrooms, each benefiting from built-in wardrobes. Bedroom one enjoys a private en-suite bathroom, while a separate family bathroom completes the accommodation, featuring a bath with an overhead shower and a glazed screen. Gas central heating and double glazing ensure year-round comfort and efficiency.

Externally, the property boasts a neatly landscaped, south-facing rear garden with a manicured lawn, patio terrace, and colourful planting. Excellent private parking is provided by an attached single garage and a private driveway.

More Details

EPC Rating - C
Council Band - G
Tenure - Freehold

Summary of Accommodation

  • Attractive semi-detached home within a charming steading conversion
  • Peaceful setting just outside St Andrews
  • Welcoming reception hall with storage and WC/utility room
  • Elegant open-plan living and dining room with garden access
  • Stylish contemporary kitchen with island and integrated appliances
  • Four double bedrooms, all with built-in wardrobes
  • Bedroom one with en-suite bathroom
  • Modern family bathroom
  • Landscaped, south-facing garden with patio seating area
  • Attached single garage and private driveway
  • Gas central heating and double glazing throughout

Location
World-renowned for its ancient university, historic golf courses, and stunning coastline, St Andrews is one of Scotland’s most sought-after towns. Steeped in history and character, its cobbled streets are lined with beautiful period architecture, independent boutiques, artisan cafés, and quality restaurants. Alongside its vibrant town centre, St Andrews offers excellent local amenities including supermarkets, leisure facilities, and picturesque green spaces.

The town enjoys international fame as The Home of Golf, with the iconic Old Course and St Andrews Links drawing visitors from across the globe. Of particular interest to golf enthusiasts, the property address will shortly fall within the area of St Andrews qualifying for a resident's Links ticket. Other notable attractions include the medieval ruins of St Andrews Cathedral and Castle, as well as the Botanic Garden and nearby beaches.

St Andrews provides excellent educational opportunities with highly regarded state and private schools, including St Leonards School and the University of St Andrews. Ideally situated in the East Neuk of Fife, the town is well connected by road and public transport, with Dundee approximately 30 minutes away and Edinburgh within a 90-minute drive. Dundee Airport offers direct daily flights to London, while a regular bus network serves the surrounding area.

General Remarks & Information

Fixtures and Fittings:
Only appliances specifically mentioned in the sales particulars are included in the sale price. In all other aspects the treatment of fixtures and fittings within the relevant Conveyancing Standard Clauses apply.

Services:
Gas heating, mains water, electricity, broadband, telephone (subject to telephone providers’ regulations).

Viewing:
By appointment through St Andrews. 28 Bell Street, St Andrews, KY16 9UX. Email: standrews@rettie.co.uk Tel: 01334 237 700

Offers:
Offers should be submitted in Scottish Legal Form to the selling agents Rettie & Co. A closing date by which offers must be submitted may be fixed later. Please note that interested parties are advised to register their interest with the selling agents in order that they may be advised should a closing date be set. The seller reserves the right to accept any offer at any time.

Council Tax Band:
G

EPC Rating:
C

Postcode:
KY16 8NS

Tenure:
Freehold

Particulars Prepared:
8th October 2025

Internet Website
This property and other properties offered by Rettie & Co. & Rettie LLP's. can be viewed on our website at www.rettie.co.uk as well as Rightmove, OnTheMarket and The London Office.

Servitude Rights, Burdens & Wayleaves
The property is sold subject to and with the benefit of all servitude rights, burdens, reservations and wayleaves including rights of access and rights of way, whether public or private, light, support, drainage, water and wayleaves for masts, pylons, stays, cable, drains and water, gas and other pipes whether contained in the title deeds or informally constituted and whether or not referred to above.

Important Notice
rettie, Their Clients And Any Joint Agents Give Notice That

They are not authorised to make or give any representations or warranties in relation to the property either in writing or by word of mouth. Any information given is entirely without responsibility on the part of the agents or the sellers. These particulars do not form part of any offer or contract and must not be relied upon as statements or representations of fact.
All Rettie floorplans are drawn to RICS standard. The text, photographs and plans are for guidance only and are not necessarily comprehensive and it should not be assumed that the property remains as photographed. Any error, omission or mis-statement shall not annul the sale or entitle any party to compensation or recourse to action at law. It should not be assumed that the property has all necessary planning, building regulation or other consents, including for its current use. Rettie & Co. & Rettie LLP’s have not tested any services, equipment or facilities. Purchasers must satisfy themselves by inspection or otherwise and ought to seek their own professional advice.
All descriptions or references to condition are given in good faith only. Whilst every endeavour is made to ensure accuracy, please check with us on any points of especial importance to you, especially if intending to travel some distance. No responsibility can be accepted for expenses incurred in inspecting properties which have been sold or withdrawn.
Proof and source of Funds/Anti Money Laundering

Under the HMRC Anti Money Laundering legislation all offers to purchase a property on a cash basis or subject to mortgage require evidence of source of funds. This may include evidence of bank statements/funding source, mortgage or confirmation from a solicitor the purchaser has the funds to conclude the transaction.

All individuals involved in the transaction are required to produce proof of identity and proof of address. Rettie use electronic verification, if this is not possible original documents are acceptable.
Misrepresentations

The property is sold with all faults and defects, whether of condition or otherwise and neither the seller nor Rettie & Co. or Rettie LLP’s, the selling agent, are responsible for such faults and defects, nor for any statement contained in the particulars of the property prepared by the said agent.
The Purchaser(s) shall be deemed to acknowledge that they have not entered into contract in reliance on the said statements, that they are satisfied themselves as to the content of each of the said statements by inspection or otherwise and that no warranty or representation has been made by the seller or the said agents in relation to or in connection with the property.
Any error, omission or misstatement in any of the said statements shall not entitle the purchaser(s) to rescind or to be discharged from this contract, nor entitle either party to compensation or damages nor in any circumstances to give either party any cause for action.

Contact Us

Caitlin Wishart

Caitlin Wishart

Senior Sales Negotiator
Bob Duncan Cert CII (MP)

Bob Duncan Cert CII (MP)

Managing Director
Mortgage Calculator
Monthly payments
Please set an interest rate.

Your home may be repossessed if you do not keep up repayments on your mortgage.

There may be a fee for mortgage advice. The actual amount you pay will depend upon your circumstances. The fee is up to 1% but a typical fee is 0.3% of the amount borrowed.

Tax Calculator
LBTT calculator for properties purchased in Scotland. Stamp Duty calculator for properties purchased in England.
Land & buildings transaction tax (LBTT)
= £0
New build house with stone and timber cladding

Looking To Sell Or Let?

Rettie is one of the most trusted and well-respected names in property. Our unrivalled market knowledge helps people from around the world buy, sell, let and develop property in Scotland and the North East of England - from city apartments and rural cottages to large townhouses and prime country homes, farms and estates. We deal with some of the most prestigious properties on the market, but provide the same exceptional standards of service and value for money to all our clients.