5A Ellice Place, St. Andrews, Fife, KY16 9HU

St. Andrews, Fife, KY16 9HU
New
Pin View on map

Offers Over £445,000

House

First Floor Apartment

Bed

2 Bedrooms

Bathroom

1 Bathroom

Reception

1 Reception Room

Parking

On Street/Permit

Telephone

Property Description

5A Ellice Place is a bright and inviting first-floor apartment forming part of an attractive traditional stone building in one of St Andrews’ most sought-after central locations. Positioned just moments from the University, world-famous Old Course, the beaches, and the town’s extensive range of amenities, the property offers well-balanced accommodation with generous ceiling heights, period cornicing, and good natural light throughout.

The welcoming reception hall leads to a spacious lounge/dining room, featuring a handsome fireplace and a large sash window overlooking the lively streetscape below. French doors open into a well-appointed fitted kitchen, offering ample storage, a four-burner gas hob, and space for appliances, an excellent layout for modern living or student lets. The property benefits from two good-sized bedrooms, each with attractive proportions, alongside a bright shower room. In addition, a locked storage cupboard is located under the communal staircase on the ground floor, offering valuable extra storage space.

Currently operating as a successful let, the flat offers an excellent investment opportunity in a consistently high-demand rental area. Its superb central position, close to the coastline and within easy reach of the world-famous Old Course, also makes it an ideal second home or a perfectly placed base in one of Scotland’s most desirable coastal towns.

More Details

EPC Rating - C
Council Band - D
Tenure - Freehold

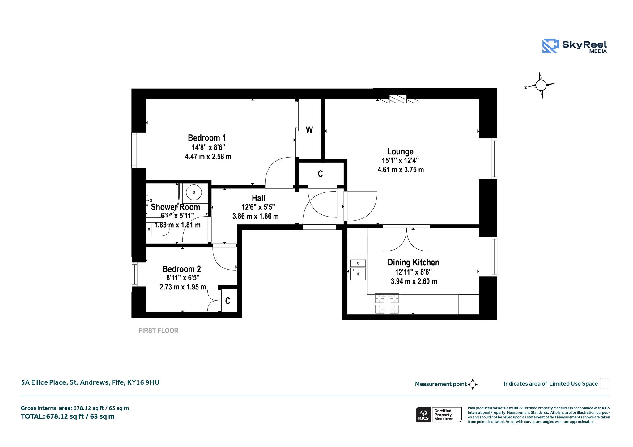
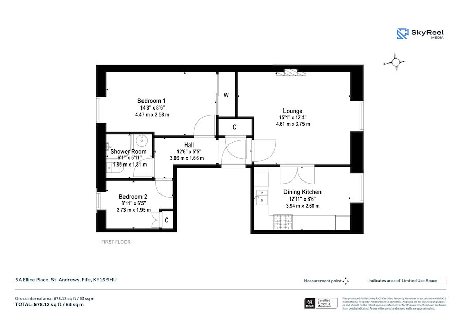
Summary of Accommodation

First Floor
• Entrance Hall
• Lounge / Dining Room with feature fireplace and outlook to the street
• Fitted Kitchen with French doors, ample storage, and gas hob
• Bedroom 1 (double)
• Bedroom 2 (single/small double)
• Shower Room
• Locked storage cupboard - located under the communal staircase on the ground floor
• Close proximity the world-famous Old Course

Location
Ellice Place occupies a premium setting in the heart of St Andrews, a vibrant coastal town internationally celebrated for its historic university, beautiful beaches, and world class golf facilities. The apartment sits just a short walk from a wealth of independent shops, cafés, restaurants, galleries, and essential amenities, including supermarkets and leisure facilities. The University of St Andrews is interwoven throughout the town, and many of its academic buildings, libraries, and student hubs are within easy reach, making this an exceptionally convenient location for students and staff alike.

The property is ideally positioned for enjoying St Andrews’ natural surroundings, with West Sands Beach, East Sands Beach, and the scenic coastal path all accessible on foot. The famous Old Course and a number of other outstanding golf courses are close by, along with historic landmarks such as St Andrews Cathedral and St Andrews Castle.

Excellent transport links connect the town to Dundee, Cupar, Edinburgh, and the wider Fife region, with frequent bus services and rail connections available nearby. Whether for everyday living, university life, leisure activities, or holiday enjoyment, this is a highly desirable and versatile location offering the very best of St Andrews on the doorstep.

General Remarks & Information

Fixtures and Fittings:
Only appliances specifically mentioned in the sales particulars are included in the sale price. In all other aspects the treatment of fixtures and fittings within the relevant Conveyancing Standard Clauses apply.

Services:
Mains gas, electric, water, broadband, telephone (subject to telephone providers’ regulations).

Viewing:
By appointment through Rettie St Andrews. 28 Bell Street, St Andrews, KY16 9UX. Email: standrews@rettie.co.uk Tel: 01334 237 700

Offers:
Offers should be submitted in Scottish Legal Form to the selling agents Rettie & Co. A closing date by which offers must be submitted may be fixed later. Please note that interested parties are advised to register their interest with the selling agents in order that they may be advised should a closing date be set. The seller reserves the right to accept any offer at any time.

Council Tax Band:
D

EPC Rating:
C

Postcode:
KY16 9HU

Tenure:
Freehold

Particulars Prepared:
17th March 2026

Internet Website
This property and other properties offered by Rettie & Co. & Rettie LLP's. can be viewed on our website at www.rettie.co.uk as well as Rightmove, OnTheMarket and The London Office.

Servitude Rights, Burdens & Wayleaves
The property is sold subject to and with the benefit of all servitude rights, burdens, reservations and wayleaves including rights of access and rights of way, whether public or private, light, support, drainage, water and wayleaves for masts, pylons, stays, cable, drains and water, gas and other pipes whether contained in the title deeds or informally constituted and whether or not referred to above.

Important Notice

Rettie, their clients and any joint agents give notice that:
They are not authorised to make or give any representations or warranties in relation to the property either in writing or by word of mouth. Any information given is entirely without responsibility on the part of the agents or the sellers. These particulars do not form part of any offer or contract and must not be relied upon as statements or representations of fact.

All Rettie floorplans are drawn to RICS standard. The text, photographs and plans are for guidance only and are not necessarily comprehensive and it should not be assumed that the property remains as photographed. Any error, omission or mis-statement shall not annul the sale or entitle any party to compensation or recourse to action at law. It should not be assumed that the property has all necessary planning, building regulation or other consents, including for its current use. Rettie & Co. & Rettie LLP’s have not tested any services, equipment or facilities. Purchasers must satisfy themselves by inspection or otherwise and ought to seek their own professional advice.

All descriptions or references to condition are given in good faith only. Whilst every endeavour is made to ensure accuracy, please check with us on any points of especial importance to you, especially if intending to travel some distance. No responsibility can be accepted for expenses incurred in inspecting properties which have been sold or withdrawn.

Proof and source of Funds/Anti Money Laundering
Under the HMRC Anti Money Laundering legislation all offers to purchase a property on a cash basis or subject to mortgage require evidence of source of funds. This may include evidence of bank statements/funding source, mortgage or confirmation from a solicitor the purchaser has the funds to conclude the transaction.

All individuals involved in the transaction are required to produce proof of identity and proof of address. Rettie use electronic verification, if this is not possible original documents are acceptable.

Misrepresentations
The property is sold with all faults and defects, whether of condition or otherwise and neither the seller nor Rettie & Co. or Rettie LLP’s, the selling agent, are responsible for such faults and defects, nor for any statement contained in the particulars of the property prepared by the said agent.

The Purchaser(s) shall be deemed to acknowledge that they have not entered into contract in reliance on the said statements, that they are satisfied themselves as to the content of each of the said statements by inspection or otherwise and that no warranty or representation has been made by the seller or the said agents in relation to or in connection with the property.

Any error, omission or misstatement in any of the said statements shall not entitle the purchaser(s) to rescind or to be discharged from this contract, nor entitle either party to compensation or damages nor in any circumstances to give either party any cause for action.

Request More Details

Cora Johnson

Cora Johnson

Sales Consultant
Bob Duncan Cert CII (MP)

Bob Duncan Cert CII (MP)

Managing Director
Mortgage Calculator
Monthly payments
Please set an interest rate.

Your home may be repossessed if you do not keep up repayments on your mortgage.

There may be a fee for mortgage advice. The actual amount you pay will depend upon your circumstances. The fee is up to 1% but a typical fee is 0.3% of the amount borrowed.

Tax Calculator
LBTT calculator for properties purchased in Scotland. Stamp Duty calculator for properties purchased in England.
Land & buildings transaction tax (LBTT)
= £0
New build house with stone and timber cladding

Looking To Sell Or Let?

Rettie is one of the most trusted and well-respected names in property. Our unrivalled market knowledge helps people from around the world buy, sell, let and develop property in Scotland and the North East of England - from city apartments and rural cottages to large townhouses and prime country homes, farms and estates. We deal with some of the most prestigious properties on the market, but provide the same exceptional standards of service and value for money to all our clients.