Garden Flat, Kincaple House, Kincaple, St. Andrews, KY16 9SH

Kincaple House, Kincaple, St. Andrews, KY16 9SH
Pin View on map

Offers Over £285,000

House

Ground Floor Apartment

Bed

3 Bedrooms

Bathroom

1 Bathroom

Reception

1 Reception Room

Tree

Communal Garden

Parking

Off Street Parking

Telephone

Property Description

A fabulous three-bedroom garden apartment forming part of the distinguished B-Listed 19th-century Kincaple House, peacefully positioned within the small hamlet of Kincaple, just outside St Andrews. Garden Flat, Kincaple House enjoys a wonderfully tranquil rural setting while remaining only 2.5 miles from the centre of St Andrews, with generous accommodation, mature shared gardens and two allocated parking spaces. With a short-term let licence already in place, it presents an excellent opportunity as a permanent home, second home, or holiday-let investment close to Scotland’s famed coastal town.

Originally built in 1879 for Alexander Meldrum and sympathetically remodelled in 1928 by respected architect John Donald Mills, Kincaple House is an imposing stone mansion characterised by its handsome façade, pitched slate roofs and elegant period detailing. Approached via a shared private driveway and surrounded by magnificent mature trees, the property sits within leafy, established grounds with a charming sense of seclusion.

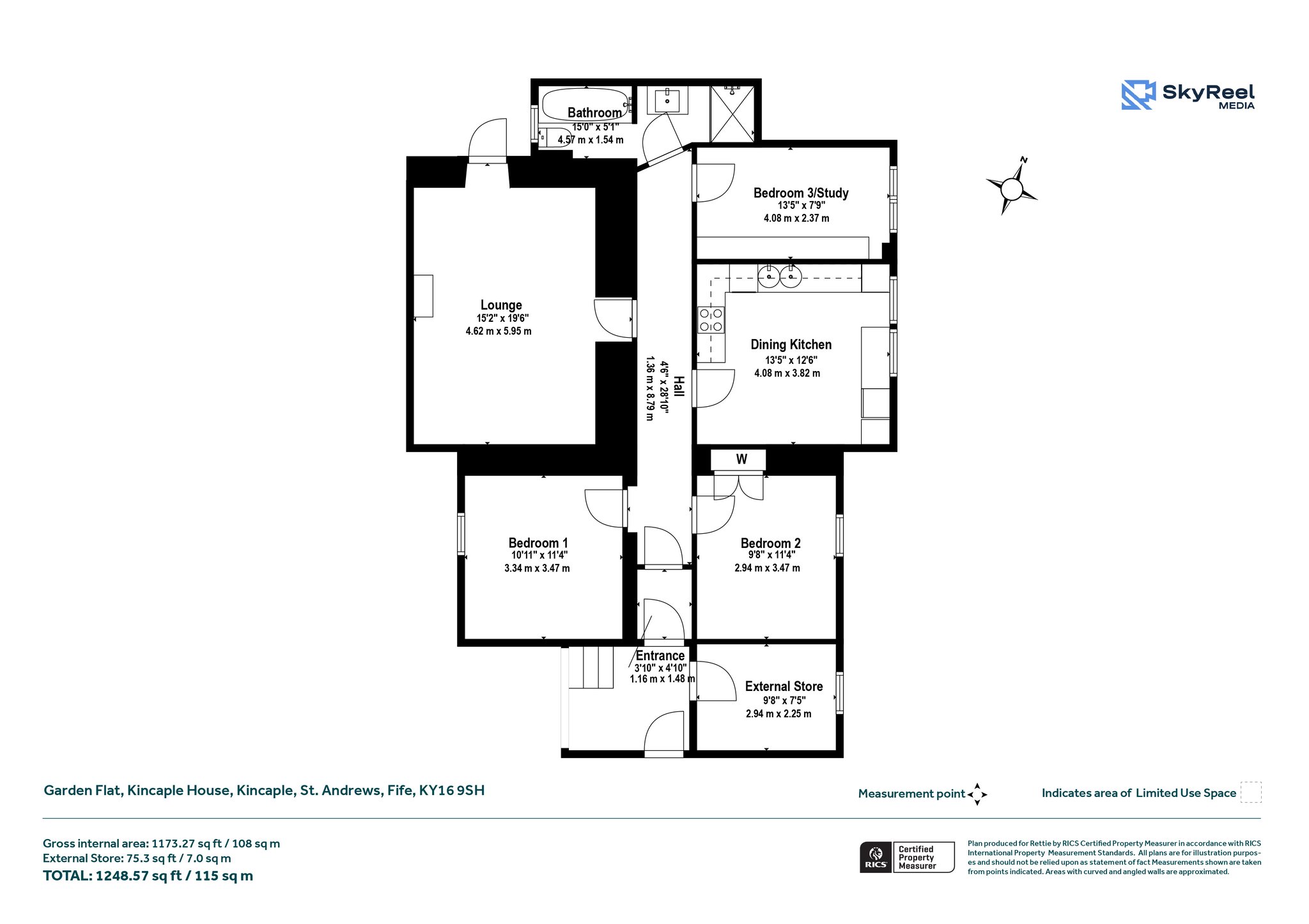
Occupying the lower ground floor of the southeast wing, the garden flat is accessed via an external flight of steps leading to the front door. The accommodation includes a spacious lounge with a gas fire and French door opening to a patio, a dining kitchen, three bedrooms and a well-appointed bathroom. A useful external store cupboard sits directly opposite the entrance within the communal hall. Shared garden grounds, used by only two other properties, provide a pleasant lawned area bordered by hedging and the driveway.

More Details

EPC Rating - F
Council Band - D
Tenure - Freehold

Summary of Accommodation

  • Lower ground floor garden apartment within B Listed mansion house
  • Spacious lounge with gas fire, spotlights, and French door to patio
  • Dining kitchen with Hisense oven, induction hob, extractor fan, and integrated washing machine
  • Two generous double bedrooms (one with built in wardrobe)
  • Third bedroom ideal as a study or home office
  • Bathroom with bath and separate electric shower
  • External store cupboard in communal hallway
  • Shared garden with lawn and mature surroundings
  • Two allocated parking spaces
  • Quiet hamlet setting close to St Andrews
  • Short term let licence in place

Location
Garden Flat, Kincaple House is located within the peaceful hamlet of Kincaple, a small rural community set amidst rolling Fife countryside and just 2.5 miles from historic St Andrews. Approached via a private driveway and surrounded by mature woodland, the property enjoys a wonderfully quiet and leafy setting with glimpses towards the Eden Estuary. Despite the tranquillity, everyday amenities, coastal walks and recreational facilities are all easily reached. A tarmac walking and cycling path, forming part of the Fife Coastal Path, provides a direct off road link to St Andrews.

St Andrews is internationally recognised as the “Home of Golf” and attracts visitors from around the world to the Old Course, the Royal and Ancient Golf Club and the West Sands beach. The town offers an array of further championship golf courses, along with excellent cafés, restaurants, boutique shops and cultural attractions. It is also home to Scotland’s oldest university, founded in 1413.

Nearby Strathkinness and Guardbridge provide local amenities, including a primary school, village pub and restaurant. Secondary schooling is available in St Andrews at Madras College, with independent options at St Leonards, while Dundee High School is also within reach.

Transport links are excellent: Leuchars railway station (2 miles) offers regular mainline services to Edinburgh, Dundee, Aberdeen and London. Road connections to the wider area are straightforward, and Edinburgh Airport is around 50 miles away.

General Remarks & Information

Fixtures and Fittings:
Only appliances specifically mentioned in the sales particulars are included in the sale price. In all other aspects the treatment of fixtures and fittings within the relevant Conveyancing Standard Clauses apply.

Services:
Electric wet central heating, mains water, private drainage, electricity, broadband, telephone (subject to telephone providers’ regulations).

Viewing:
By appointment through Rettie St Andrews. 28 Bell Street, St Andrews, KY16 9UX. Email: standrews@rettie.co.uk Tel: 01334 237 700

Offers:
Offers should be submitted in Scottish Legal Form to the selling agents Rettie & Co. A closing date by which offers must be submitted may be fixed later. Please note that interested parties are advised to register their interest with the selling agents in order that they may be advised should a closing date be set. The seller reserves the right to accept any offer at any time.

Council Tax Band:
D

EPC Rating:
F

Postcode:
KY16 9SH

Tenure:
Freehold

Particulars Prepared:
19th February 2026

Internet Website
This property and other properties offered by Rettie & Co. & Rettie LLP's. can be viewed on our website at www.rettie.co.uk as well as Rightmove, OnTheMarket and The London Office.

Servitude Rights, Burdens & Wayleaves
The property is sold subject to and with the benefit of all servitude rights, burdens, reservations and wayleaves including rights of access and rights of way, whether public or private, light, support, drainage, water and wayleaves for masts, pylons, stays, cable, drains and water, gas and other pipes whether contained in the title deeds or informally constituted and whether or not referred to above.

Important Notice
rettie, Their Clients And Any Joint Agents Give Notice That

They are not authorised to make or give any representations or warranties in relation to the property either in writing or by word of mouth. Any information given is entirely without responsibility on the part of the agents or the sellers. These particulars do not form part of any offer or contract and must not be relied upon as statements or representations of fact.

All Rettie floorplans are drawn to RICS standard. The text, photographs and plans are for guidance only and are not necessarily comprehensive and it should not be assumed that the property remains as photographed. Any error, omission or mis-statement shall not annul the sale or entitle any party to compensation or recourse to action at law. It should not be assumed that the property has all necessary planning, building regulation or other consents, including for its current use. Rettie & Co. & Rettie LLP’s have not tested any services, equipment or facilities. Purchasers must satisfy themselves by inspection or otherwise and ought to seek their own professional advice.

All descriptions or references to condition are given in good faith only. Whilst every endeavour is made to ensure accuracy, please check with us on any points of especial importance to you, especially if intending to travel some distance. No responsibility can be accepted for expenses incurred in inspecting properties which have been sold or withdrawn.

Proof and source of Funds/Anti Money Laundering
Under the HMRC Anti Money Laundering legislation all offers to purchase a property on a cash basis or subject to mortgage require evidence of source of funds. This may include evidence of bank statements/funding source, mortgage or confirmation from a solicitor the purchaser has the funds to conclude the transaction.

All individuals involved in the transaction are required to produce proof of identity and proof of address. Rettie use electronic verification, if this is not possible original documents are acceptable.

Misrepresentations
The property is sold with all faults and defects, whether of condition or otherwise and neither the seller nor Rettie & Co. or Rettie LLP’s, the selling agent, are responsible for such faults and defects, nor for any statement contained in the particulars of the property prepared by the said agent.
The Purchaser(s) shall be deemed to acknowledge that they have not entered into contract in reliance on the said statements, that they are satisfied themselves as to the content of each of the said statements by inspection or otherwise and that no warranty or representation has been made by the seller or the said agents in relation to or in connection with the property.

Any error, omission or misstatement in any of the said statements shall not entitle the purchaser(s) to rescind or to be discharged from this contract, nor entitle either party to compensation or damages nor in any circumstances to give either party any cause for action.

Request More Details

Jill McCulley

Jill McCulley

Associate Director
Bob Duncan Cert CII (MP)

Bob Duncan Cert CII (MP)

Managing Director
Mortgage Calculator
Monthly payments
Please set an interest rate.

Your home may be repossessed if you do not keep up repayments on your mortgage.

There may be a fee for mortgage advice. The actual amount you pay will depend upon your circumstances. The fee is up to 1% but a typical fee is 0.3% of the amount borrowed.

Tax Calculator
LBTT calculator for properties purchased in Scotland. Stamp Duty calculator for properties purchased in England.
Land & buildings transaction tax (LBTT)
= £0
New build house with stone and timber cladding

Looking To Sell Or Let?

Rettie is one of the most trusted and well-respected names in property. Our unrivalled market knowledge helps people from around the world buy, sell, let and develop property in Scotland and the North East of England - from city apartments and rural cottages to large townhouses and prime country homes, farms and estates. We deal with some of the most prestigious properties on the market, but provide the same exceptional standards of service and value for money to all our clients.