9 Montgomerie Drive, Stewarton, Kilmarnock, East Ayrshire, KA3 3AP
Property Description
Lainshaw House, 9 Montgomerie Drive is a stunning first floor apartment located within a historic "B" listed renovated mansion set within the beautifully landscaped grounds of the Lainshaw Estate.
This mid 19th century landmark building was extensively and sympathetically converted into luxury apartments with each property retaining the buildings remarkable heritage and identity whilst introducing the best of contemporary living.
Lainshaw House dates back to the 13th century and occupies a prominent position overlooking Annick Water southwest of Stewarton. Lainshaw and associated lands were originally the gift of King James II of Scotland and passed through many notable owners. William Cunninghame (a Glasgow tobacco baron) acquired the property through inheritance in 1799. He re-modelled the property extensively and took up residence in 1804. On his death in 1849 it remained within the family, until being sold to Ayr County Council. The house was vacated in 1993 and lay empty until it was sucessfully brought back to life and extensively redeveloped in 2008.
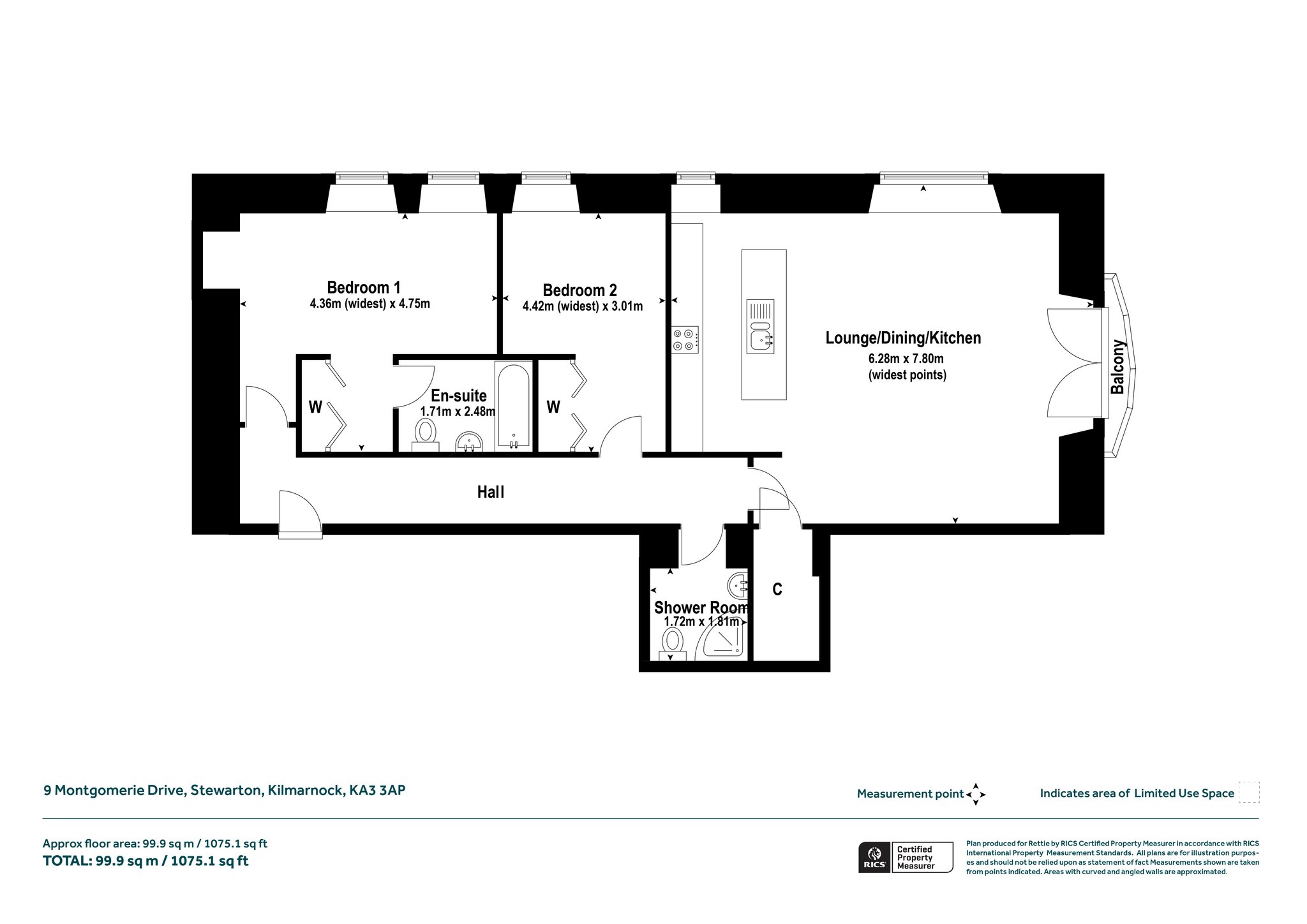
This stunning apartment is presented to the market in excellent decorative order throughout. It occupies a prominent first floor corner position and provides naturally bright, generously proportioned accommodation enjoying pleasant open outlook over the grounds.
Access to the main building is via a communal secure door entry system which leads to the reception. The first floor can be reach with by a staircase or elevator.
On entering the apartment you get an immediate sense of the quality finishes and the care and attention that has been taken to retain many of the original features such as the raised skirting, sash and case windows and ceiling coving.
The open plan lounge/kitchen is the heart of the home, beatifully appointed and with a comprehensive range of wall and base storgae units, integrated appliances and centre island. This opens up into a stunning sitting area which is flooded with natural light and enjoys lovely views to the front and side. The focal point of the room is the imposing original fireplace.
The innerhallway leads to a utilty/storage space and shower room. The spacious principle bedroom comes with a contemporary en-suite comprising bath with shower over, wc, wash hand basin and heated towel rail and there is a further front facing double bedroom with storage.
The apartment is set within formal gardens shared by all of the residents of the estate. There is allocated parking directly outside the property.
1st floor contemporary apartment.
Stunning period features.
Contemporary Living.
Secure entry system.
Private parking.
Landscaped garden grounds.
Excellent transport links.
Stewarton is a charming and thriving town set amidst the rolling countryside of East Ayrshire. Known as the "Bonnet Toun" for its textile heritage, Stewarton blends historic character with modern amenities, making it a sought-after location for families, commuters, and those seeking a blend of rural tranquillity and urban connectivity.
Direct ScotRail trains to Glasgow Central take on average 37 minutes, with some as quick as 27 minutes.
Alternative routes include car (approx. 25 min via M77), bus, or taxi, offering flexibility for commuting.
Stewarton benefits from a Sainsbury’s supermarket, alongside a diverse selection of independent shops, cafés, and eateries. Stewarton Academy is the town’s co-educational secondary school.
There are endless outdoor pursuits available locally such as woodland trails, riverside paths within Lainshaw Woods and the surrounding area.
EPC : BAND C
COUNCIL TAX : BAND D
TENURE : FREEHOLD
More Details
Situation: Communal Garden
Council Tax Band: D
Tenure: Contact Branch
Your home may be repossessed if you do not keep up repayments on your mortgage.
There may be a fee for mortgage advice. The actual amount you pay will depend upon your circumstances. The fee is up to 1% but a typical fee is 0.3% of the amount borrowed.
Similar Properties
Looking To Sell Or Let?
Rettie is one of the most trusted and well-respected names in property. Our unrivalled market knowledge helps people from around the world buy, sell, let and develop property in Scotland and the North East of England - from city apartments and rural cottages to large townhouses and prime country homes, farms and estates. We deal with some of the most prestigious properties on the market, but provide the same exceptional standards of service and value for money to all our clients.
