15/6 Sloan Street, Edinburgh, Midlothian, EH6 8PL

Edinburgh, Midlothian, EH6 8PL
New
Pin View on map

Monthly Rental £1,250 PCM

House

Upper Floor Apartment

Bed

1 Bedroom

Bathroom

1 Bathroom

Reception

1 Reception Room

Furnishing

Furnished

Calendar

Available From 17/10/2025

Size

71 sq.m

Tree

Communal Garden

Telephone

Property Description

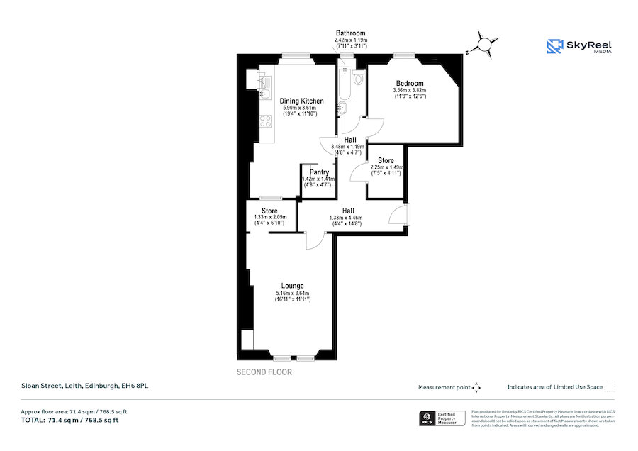
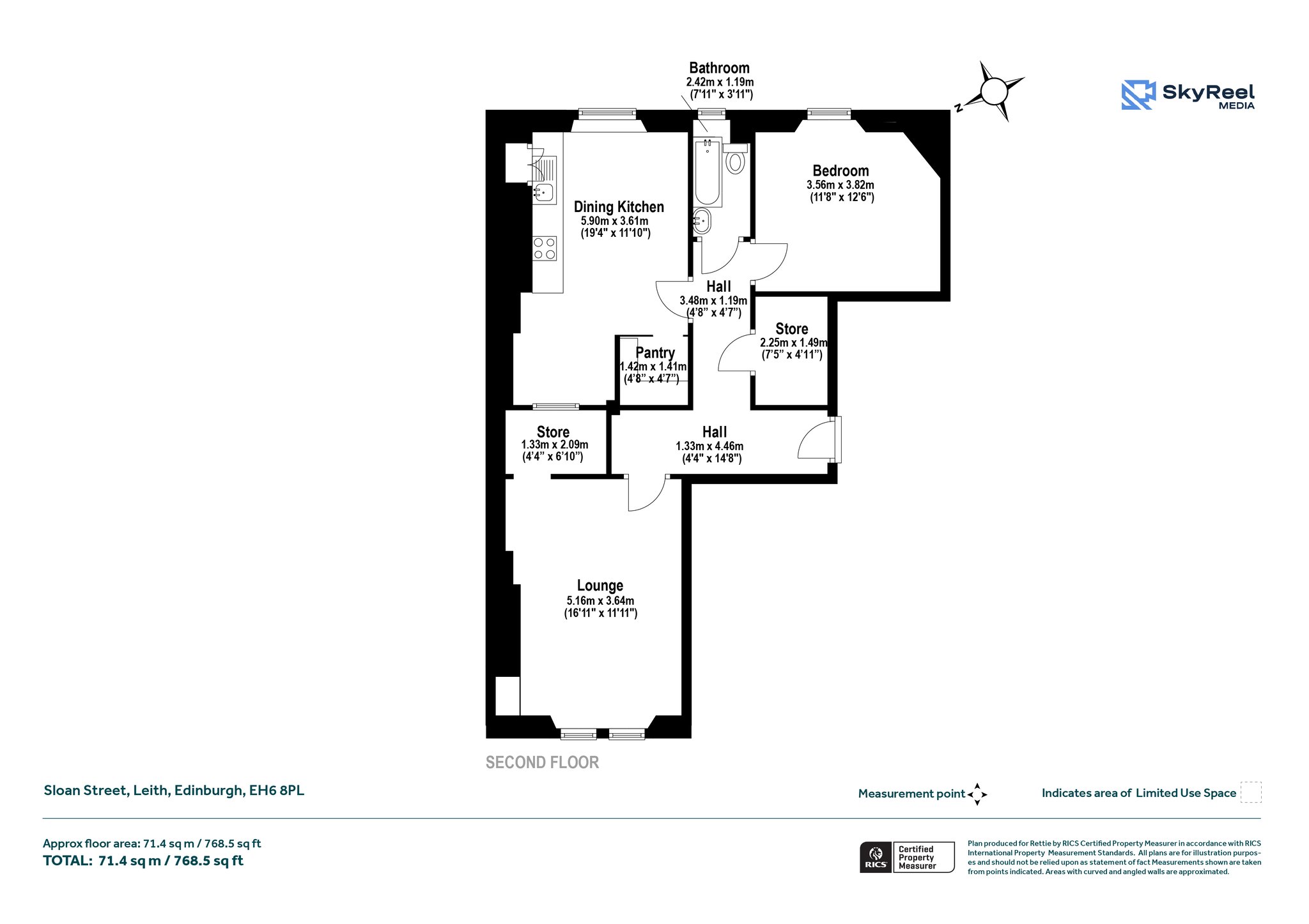
Situated on the upper floor of a traditional tenement in the popular are of Leith in Edinburgh, this well-presented one-bedroom flat is offered fully furnished and available to let. The property features a spacious double bedroom, a bright and comfortable lounge, and a separate dining kitchen equipped with modern appliances and ample space for cooking and dining. Contemporary bathroom with shower over bath.

In addition to the main living areas, the flat benefits from two internal storage cupboards and a separate pantry, providing excellent storage throughout. Tenants will also enjoy access to a shared garden at the rear of the property, ideal for relaxing outdoors. This home combines period character with practical living and is well-suited to a professional individual or couple seeking a peaceful yet well-connected location in the city.

Sloan Street is set in the vibrant Leith area of Edinburgh, just over a mile east of Princes Street and close enough to walk into the city centre in around 15 minutes. The location strikes a good balance between urban convenience and residential calm. Public transport is excellent: you’ll find frequent buses along Leith Walk and Easter Road providing easy access to central Edinburgh and beyond

More Details

Deposit: £1450
Furnished
EPC: C
Council Tax Band: B
Landlord Registration: 1790075/230/30092
LARN1903047

Request More Details

Michael Logan

Michael Logan

Portfolio Manager
modern detached house with stone and timber cladding

Looking To Sell Or Let?

Rettie is one of the most trusted and well-respected names in property. Our unrivalled market knowledge helps people from around the world buy, sell, let and develop property in Scotland and the North East of England - from city apartments and rural cottages to large townhouses and prime country homes, farms and estates. We deal with some of the most prestigious properties on the market, but provide the same exceptional standards of service and value for money to all our clients.