102/72 Commercial Street, Edinburgh, Midlothian, EH6 6LT

Edinburgh, Midlothian, EH6 6LT
Pin View on map

Monthly Rental £1,400 PCM

House

Apartment

Bed

2 Bedrooms

Bathroom

1 Bathroom

Reception

1 Reception Room

Furnishing

Unfurnished

Calendar

Available Now

Size

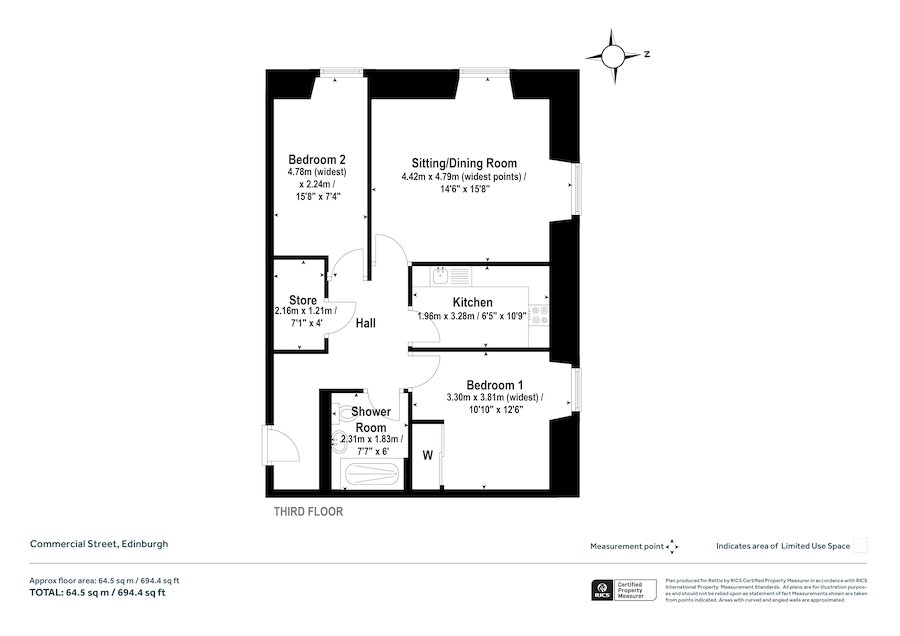
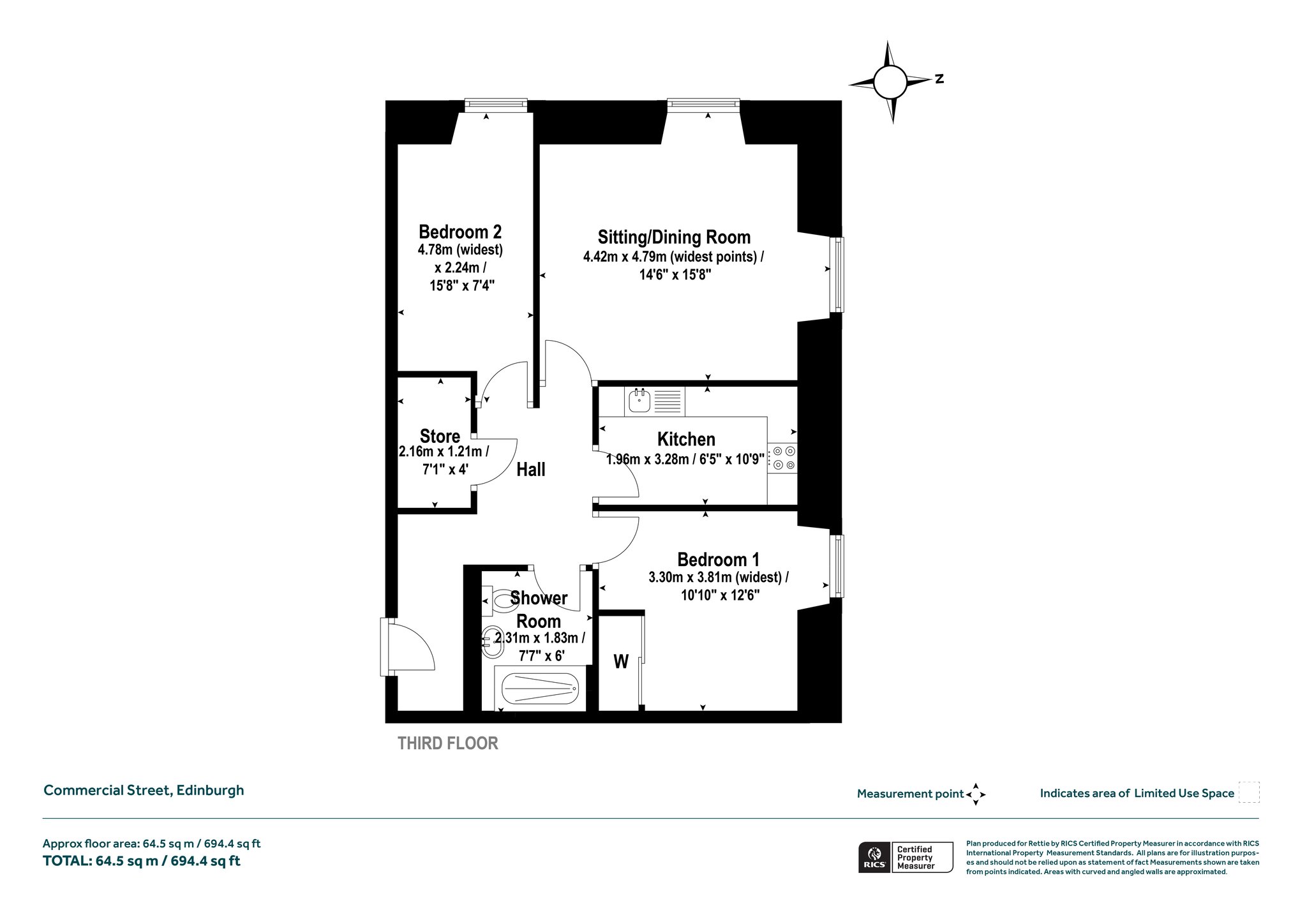
65 sq.m

Parking

Off Street Parking

Telephone

Property Description

A bright and spacious two-bedroom apartment with allocated parking space, situated on the third floor of a converted bonded warehouse in Leith.

The property is presented in good condition and has been decorated in neutral colours throughout, creating a bright and inviting space in a highly sought-after location.

Accommodation Comprises

Spacious welcoming hallway; Generous sitting room with dual-aspect windows; Well-equipped kitchen with ample storage and workspace; Two double bedrooms; Stylish newly fitted shower room.

The property further benefits from electric heating, lift access, secure entry phone system and an allocated parking space.

Commercial Street is ideally located for city living, with a wide range of local amenities right on the doorstep, including supermarkets, independent shops, cafés, bars and excellent restaurants, including The Kitchin, Fishers and Teuchters Landing. The area also benefits from nearby green spaces and cultural attractions, making it a vibrant and desirable place to live.

The property is well-served by excellent public transport links. Regular bus services provide quick and easy access to the city centre and surrounding areas, while nearby tram connections ensure convenient commuting across the city and beyond. Major road links are also easily accessible for those travelling by car.

More Details

Deposit: £1,600
Unfurnished
Council Tax Band: D
EPC Rating: C
Landlord Registration: 155343/230/07530
LARN1903047

Request More Details

Fraser Jamieson

Fraser Jamieson

Portfolio Manager
modern detached house with stone and timber cladding

Looking To Sell Or Let?

Rettie is one of the most trusted and well-respected names in property. Our unrivalled market knowledge helps people from around the world buy, sell, let and develop property in Scotland and the North East of England - from city apartments and rural cottages to large townhouses and prime country homes, farms and estates. We deal with some of the most prestigious properties on the market, but provide the same exceptional standards of service and value for money to all our clients.