Property Description
- Stunningly presented three bedroomed apartment
- Top (second) floor position with south facing balcony and beautiful leafy aspects
- Part of popular Netherblane development in Blanefield
- Extensively remodelled, stylishly finished throughout
- Large tandem garage with power and remotely controlled door
- Established residents’ gardens and feature ‘Lochan’
A simply beautiful, extensively refurbished three bedroomed apartment that could easily be argued as one of the best examples of its kind to reach the open market in years.
No.17 Netherblane occupies as highly appealing situation in the development, with an appealing, tucked away position in one of the buildings that feature south facing balconies overlooking the beautifully kept residents’ gardens. The property is in strong material condition, with quality flooring, a recently replaced kitchen and a contemporary bathroom combining to great effect. Stylistically, our clients have employed a really cool and contemporary yet understated decorative palette that will offer appeal to a wide range of potential buyers – touches like the engineered oak parquet flooring through much of the property (well insulated for noise) really do separate this from other properties in the development. Heating is provided via a modern wet electric heating system.
Initial access to the building is provided via a security-controlled entry system which leads to a carpeted reception hallway (stair access to upper floors).
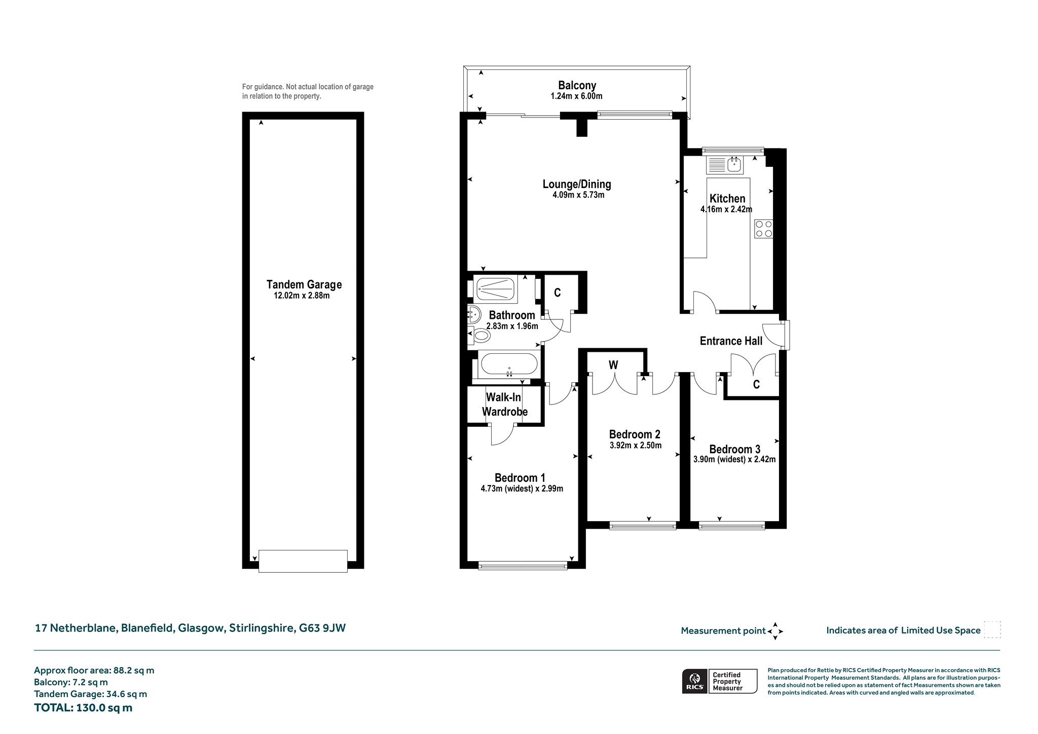
Summary of Accommodation
Our suite of HDR photographs, video, 360° matterport tour and floorplan provide ample material for desktop review, with a summary of the accommodation to be found as follows:-
- Reception hallway with storage off
- Large open plan lounge/dining area – sliding doors out to balcony
- Contemporary fitted kitchen – Neff/Bosch appliances, selection of wall/base mounted units, Silestone worktops
- Tiled three-piece family bathroom, separate walk in shower enclosure with ‘deluge fitting’ from mains, integrated sanitary ware
- Three double bedrooms
The development is noted for its delightful setting amidst extensive residents’ gardens that include the Blane Burn running into, and out of, its own private lochan – a delightful spot around which is a lovely wooded walk, with seating. The property also comes with a fabulous tandem garage – fitted for power/electricity and with a remotely operated door.
*It should be noted that our clients plan on removing the room separator (currently fitted between the hallway and lounge/dining area) at the point of sale. Would only be available via separate negotiation.*
Situation
The village of Blanefield sits dramatically at the foot of The Campsie Fells and is surrounded by lovely countryside, not far from Mugdock Country Park. Despite its village setting, it is only 4 miles from the town of Milngavie, with Glasgow City Centre around a 30 minute drive away. The village, and its immediate neighbour Strathblane, has a General Store and a well-stocked branch of Greens. There is a Village Hall, Tennis and Bowling Club, newly built Thomas Graham library and an excellent Village Primary School. Nearby is a well-stocked Delicatessen with Café/Coffee House.
Sat Nav Ref: G63 9jw
EPC : Band D
COUNCIL TAX : BAND E
TENURE : FREEHOLD
More Details
Situation: BalconyCommunal Garden
Council Tax Band: E
Tenure: Freehold
Your home may be repossessed if you do not keep up repayments on your mortgage.
There may be a fee for mortgage advice. The actual amount you pay will depend upon your circumstances. The fee is up to 1% but a typical fee is 0.3% of the amount borrowed.
Similar Properties
Looking To Sell Or Let?
Rettie is one of the most trusted and well-respected names in property. Our unrivalled market knowledge helps people from around the world buy, sell, let and develop property in Scotland and the North East of England - from city apartments and rural cottages to large townhouses and prime country homes, farms and estates. We deal with some of the most prestigious properties on the market, but provide the same exceptional standards of service and value for money to all our clients.
