Property Description
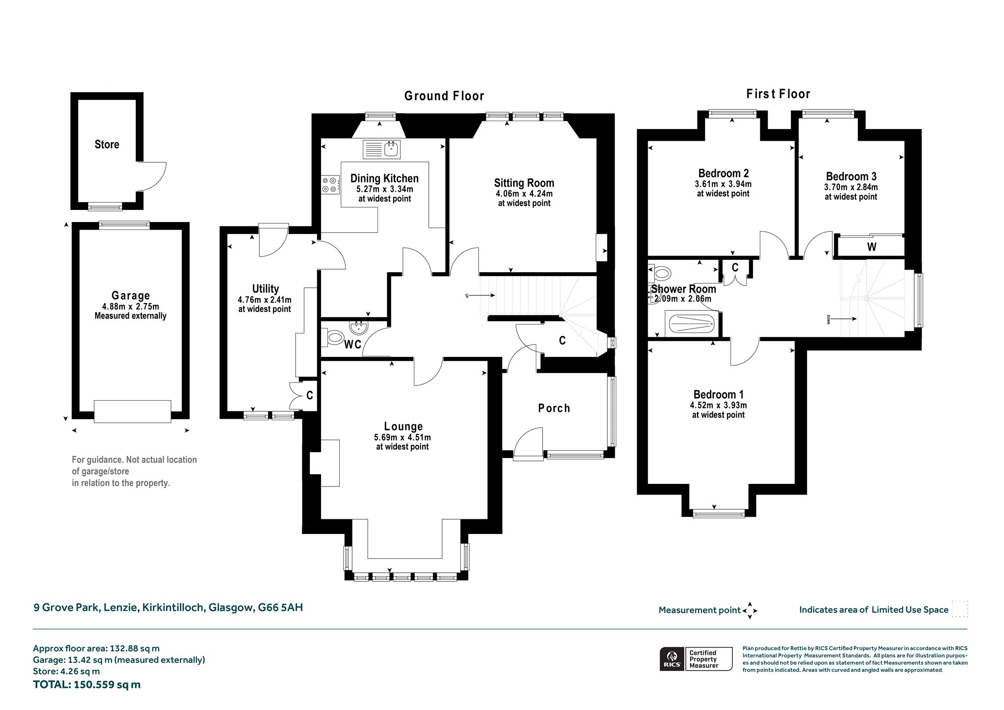
Situated at the far end of the crescent in a beautiful garden, which is south facing to the rear, number 9 is a beautiful home with some really lovely features, extending in total to some 1,430 sq. ft. It will appeal to families but will equally appeal to couples as well and is likely to be a “lifetime home” for its lucky new custodian.
The subjects comprise a very pretty entrance portico that leads to an entrance vestibule, off which is a useful storage area with window. The reception hall has a ground floor guest toilet with w.c. and w.h.b. There are then three main public rooms comprising, principally, a seven framed box bay windowed lounge with traditional fireplace at its focal point. Separately, there is a sitting room, a dining kitchen and off the kitchen a large utility with access on to the rear garden. The kitchen has a range of cupboard units with laminate worktops and free standing appliances.
Upstairs, a return flight staircase ascends past a bright half landing window to a good size first floor hall, off which there are three bedrooms all with wardrobes and a shower room. There is a gas central heating system and, outside, a detached single garage and brick store room/shed.
It is fair to say that the property will require some modernisation but, it represents a rare opportunity to make a property purchase in this most highly regarded and sought after conservation corner.
The central residents’ park is a real feature and an absolute delight – a great asset.
The property is conveniently located off Glenhead Road and is handy, therefore, for the village centre and Lenzie Railway Station, which provides regular services into Glasgow City Centre, as well as eastbound to Edinburgh.
EPC : BAND D
COUNCIL TAX : BAND G
TENURE : FREEHOLD
More Details
Situation: Private Garden
Council Tax Band: G
Tenure: Freehold
Your home may be repossessed if you do not keep up repayments on your mortgage.
There may be a fee for mortgage advice. The actual amount you pay will depend upon your circumstances. The fee is up to 1% but a typical fee is 0.3% of the amount borrowed.
Similar Properties
Looking To Sell Or Let?
Rettie is one of the most trusted and well-respected names in property. Our unrivalled market knowledge helps people from around the world buy, sell, let and develop property in Scotland and the North East of England - from city apartments and rural cottages to large townhouses and prime country homes, farms and estates. We deal with some of the most prestigious properties on the market, but provide the same exceptional standards of service and value for money to all our clients.
