Property Description
An exceptional, traditional sandstone mid terraced villa in the tree lined Rowallan Gardens, one of the most desirable addresses in the Broomhill district.
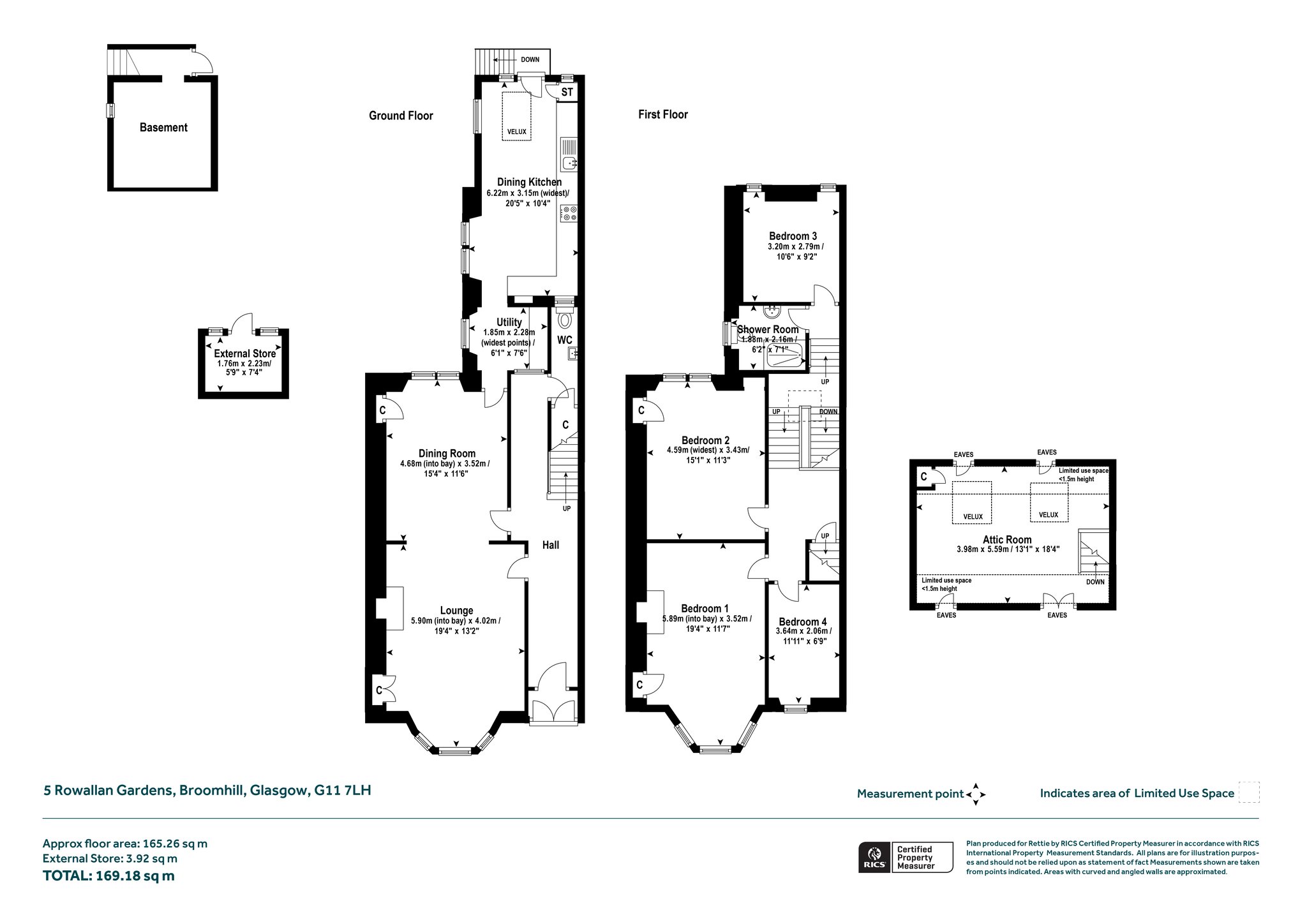
With an extremely spacious interior which is full of traditional character, this charming 6/7 apartment West End family home was built in the late 1800’s. The rear projection provides a fabulous, modern fitted dining kitchen for the family and there is a versatile attic room accessed from the first floor landing.
With the advantage of a private front garden, on street parking as well as a south facing rear garden, we would also highlight numerous other notable features, including a ground floor w.c, main family bathroom, a peaceful bay windowed lounge, a fabulous ‘through and through’ dining room, several sanded/ varnished floors and wood finishes to most of the internal doors and the elegant original staircase.
Accommodation:
- Entrance vestibule with panelled storms doors.
- Reception hall with sanded floor.
- Charming main lounge with three section window to the front, corner press, focal point fireplace with wood burning stove, sanded floor and access to the dining room.
- Formal dining room which is open plan to the lounge, has two section window to the rear, corner press and sanded floors.
- Utility area between the dining room and the kitchen which has a window to the side.
- Fabulous, bright dining kitchen with two section window to the side, a further window to the side and a glazed door with adjacent glazed section to the rear. Generous storage units, worktops, appliances and a rooflight window bringing further daylight.
- Downstairs w.c with glazed brick window.
- Understair storage.
- Stairway from reception hall to half and upper landings.
- Half landing shower room with window to the side.
- Half landing bedroom three with two windows to the rear.
- Upper landing which gives access to the attic,
- Bedroom one with three section window to the front, corner press and focal point fire surround.
- Bedroom two with two section window to the rear and corner press.
- Bedroom four with window to the front.
- Large, floored attic room with two velux windows and access to eaves storage space.
- External store, which is accessed from the rear garden.
- Gas Central Heating.
- Private gardens to front and rear.
- Useful cellar/storage accessed from the back garden.
EPC: D
Council Tax: F
Tenure : Freehold
More Details
Situation: Private Garden
Council Tax Band: F
Tenure: Freehold
Your home may be repossessed if you do not keep up repayments on your mortgage. There may be a fee for mortgage advice. The actual amount you pay will depend upon your circumstances.
Similar Properties
Looking To Sell Or Let?
Rettie is one of the most trusted and well-respected names in property. Our unrivalled market knowledge helps people from around the world buy, sell, let and develop property in Scotland and the North East of England - from city apartments and rural cottages to large townhouses and prime country homes, farms and estates. We deal with some of the most prestigious properties on the market, but provide the same exceptional standards of service and value for money to all our clients.
