Property Description
An attractive and spacious one-bedroom traditional tenement apartment, set on the second floor of a well-maintained red sandstone building in the ever-popular Thornwood district of Glasgow’s vibrant West End. This bright and comfortable home benefits from generously proportioned apartments, high ceilings, and large windows that flood the interior with natural light.
The building itself is factored by a reputable management company, ensuring that the communal areas and rear gardens are kept to a high standard. Entry to the property is by secure buzzer system, and to the rear of the building residents enjoy use of a neat shared drying green, well-tended lawns, and convenient refuse storage facilities.
Fairlie Park Drive occupies a highly convenient location just a short walk from an excellent array of local amenities. The nearby West End Retail Park hosts a Sainsbury’s supermarket and a Marks & Spencer Food Hall, making day-to-day shopping exceptionally easy. Partick Rail, Underground, and Bus Stations are all within approximately 0.5 miles of the property, providing swift access throughout Glasgow and beyond. The property is also ideally positioned for students attending the University of Glasgow, which is located just over a mile away.
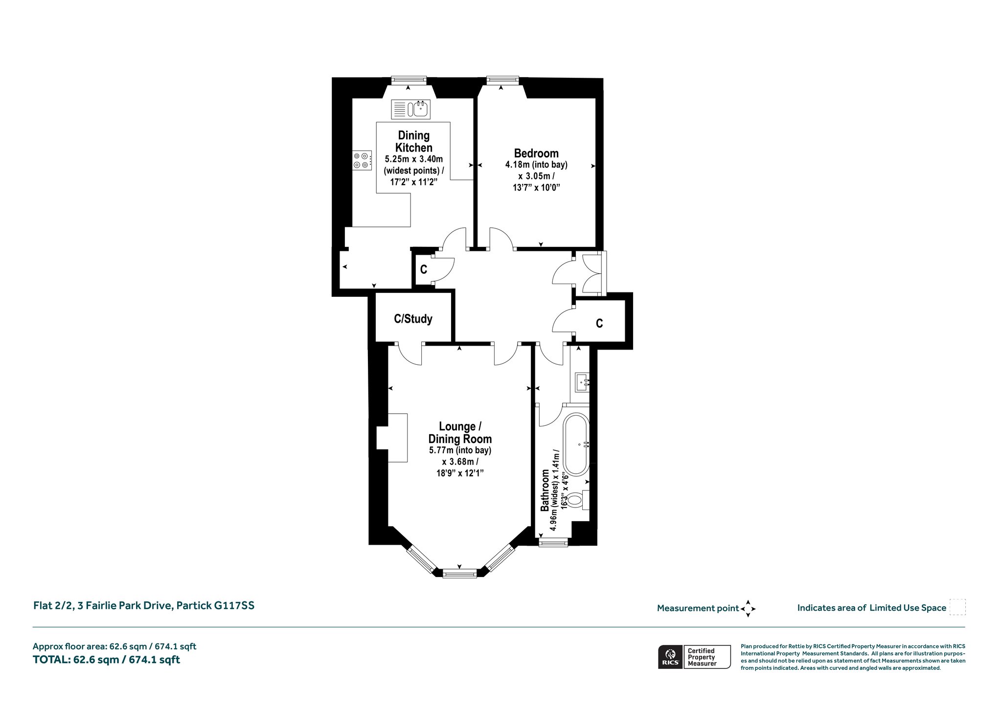
Internally, the accommodation is extremely comfortable, offering a bright and airy living environment. The traditional layout comprises a welcoming reception hallway, an impressive bay-windowed lounge, a generously sized dining kitchen, a spacious double bedroom, and a neatly presented three-piece bathroom. The property has been carefully maintained by the current owner and will appeal to a wide variety of buyers, including first-time purchasers, students, professionals, and investors.
________________________________________
Attributes:
- Second floor traditional tenement flat
- Well-maintained red sandstone building with professional factoring
- Secure entry with buzzer access
- Bright and spacious one-bedroom accommodation
- Generous bay-windowed living room
- Dining-sized kitchen with ample space for table and chairs
- High ceilings and large windows throughout
- Well-presented interior, maintained to a good standard
- Good levels of storage space in the form of two cupboards
- Access to neat, shared rear drying green and gardens
- West End Retail Park (Sainsbury’s and Marks & Spencer Food Hall) nearby
- Approximately 0.5 miles to Partick Rail, Underground, and Bus Stations
- Around 1.1 miles to the University of Glasgow
- Ideal for students, first-time buyers, professionals, and investors
EPC: C
Council Tax: C
Tenure : Freehold
More Details
Situation: Communal Garden
Council Tax Band: C
Tenure: Freehold
Your home may be repossessed if you do not keep up repayments on your mortgage. There may be a fee for mortgage advice. The actual amount you pay will depend upon your circumstances.
Similar Properties
Looking To Sell Or Let?
Rettie is one of the most trusted and well-respected names in property. Our unrivalled market knowledge helps people from around the world buy, sell, let and develop property in Scotland and the North East of England - from city apartments and rural cottages to large townhouses and prime country homes, farms and estates. We deal with some of the most prestigious properties on the market, but provide the same exceptional standards of service and value for money to all our clients.
