Flat 21 Lower Ground Floor, 35 Lynedoch Street, Park, Glasgow, G3 6AA
Property Description
A bright and well-appointed two-bedroom lower ground floor apartment which offers bright, comfortable accommodation within an iconic building near Park Circus, at the edge of Kelvingrove Park.
Lynedoch Street is a distinguished address located in the Park district of Glasgow's West End. This area is renowned for its elegant 19th-century architecture, picturesque, cobbled streets and highly convenient setting between the West End and City centre.
The building at 35 Lynedoch Street is known as Trinity House and was once described as 'an example of the finest piece of architecture of the mid-19th century'. Designed by the renowned architect Charles Wilson who also planned the layout of the neighbouring terraces in the area, the building was originally opened in 1857 as a Free Church College. Later in the 1980s the building was transformed into 21 private dwellings.
These apartments are arranged around the building's central atrium with water feature, which is a notable feature of the interior. The conversion preserved many of the building's original architectural elements, including its impressive columns, stained glass windows, and ornate cornices. The building is being maintained to a high standard by the appointed factor and as such, the development is instantly impressive when you arrive.
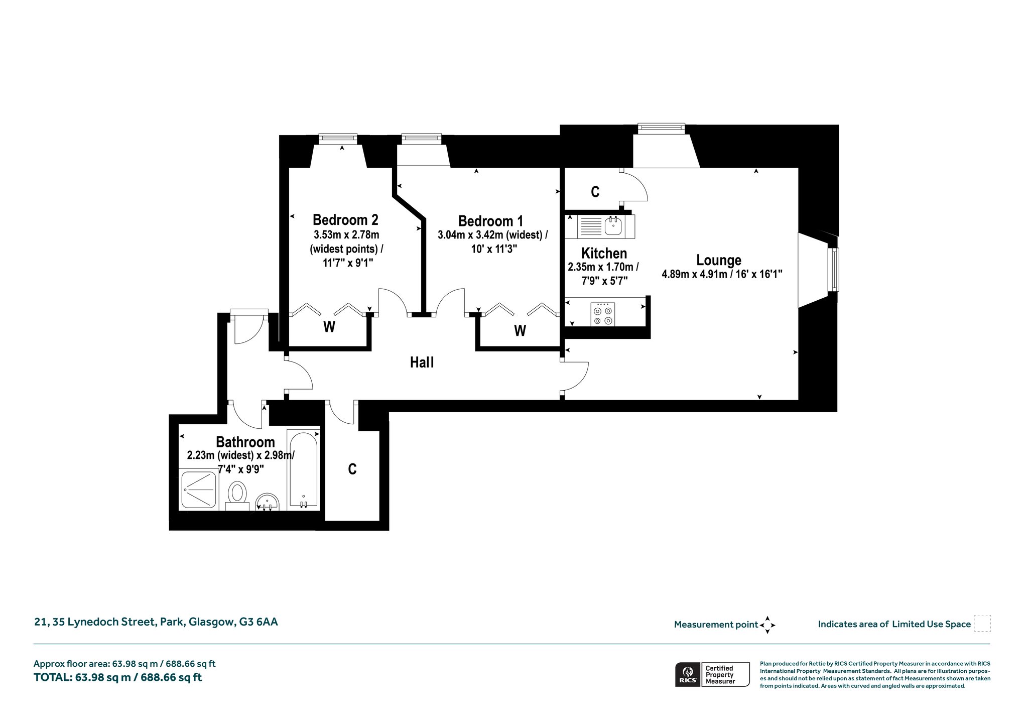
The home for sale is positioned in the South-West most corner of the building, at lower ground level. As you will see from the attached photographs, HD video, floorplan and Matterport Tour – the property is presented in fresh, neutral tones throughout and the accommodation is ready to be moved into and enjoyed. In brief the accommodation extends to; entrance hall, living room which is open plan to the fitted kitchen with appliances, two double bedrooms that both have wardrobes and there is an internal bathroom with attractive tiling and white, four-piece suite.
Architectural & Historical Details
- Originally built in 1857 as the Free Church College
- Designed by Charles Wilson, one of Glasgow's finest 19th-century architects
- Converted into 21 private apartments in the 1980s
- Notable for its grand central atrium with a water feature, impressive columns, stained glass, and ornate cornicing
- Widely regarded as a Category A-listed building of historical and architectural significance
- Maintained to a high standard by a professional factor________________________________________ Location:
- Park District – one of Glasgow's most prestigious and tranquil urban areas
- Near Park Circus and beside Kelvingrove Park
- Situated between Glasgow’s West End and the City Centre and therefore handy for amenities in each
- Access to cobbled streets, leafy surroundings, and close proximity to cultural landmarks like:
O University Of Glasgow
o Kelvingrove Art Gallery & Museum
o Charing Cross And Finnieston Dining Scenes
o Easy Walking Distance To Byres Road Or Sauchiehall Street
________________________________________
Ideal For
- Professionals or downsizers looking for classic architecture with modern comfort
- Anyone seeking a quiet, stylish home in the heart of the city
- Buy-to-let investors or those seeking a long-term residential West End base
EPC: C
Council Tax: E
Tenure : Freehold
More Details
Situation: Contact branch
Council Tax Band: E
Tenure: Freehold
Your home may be repossessed if you do not keep up repayments on your mortgage. There may be a fee for mortgage advice. The actual amount you pay will depend upon your circumstances.
Similar Properties
Looking To Sell Or Let?
Rettie is one of the most trusted and well-respected names in property. Our unrivalled market knowledge helps people from around the world buy, sell, let and develop property in Scotland and the North East of England - from city apartments and rural cottages to large townhouses and prime country homes, farms and estates. We deal with some of the most prestigious properties on the market, but provide the same exceptional standards of service and value for money to all our clients.
