Property Description
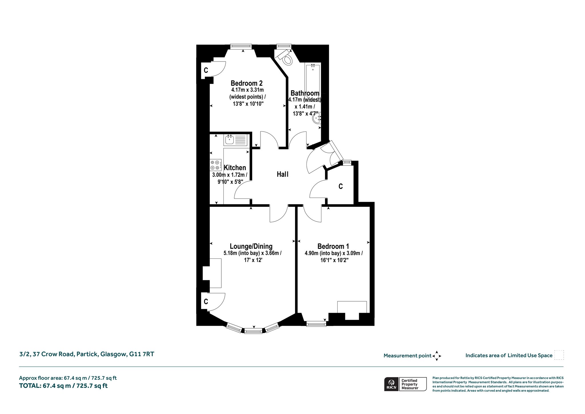
Occupying a prominent third floor position within a traditional red sandstone tenement building on the corner of Crow Road and Fairlie Park Drive, this is an appealing two bedroom situated in the highly popular and convenient Partick area. The internal accommodation enjoys excellent natural light, is well presented throughout and has a comfortable feel with notable highlights including a fabulous bay windowed lounge/dining room, a separate kitchen off the reception hall, two double bedrooms and a three-piece bathroom. Additional features include focal point fireplaces in the lounge and bedroom one together with a pleasant outlook due east from the lounge and bedroom one.
37 Crow Road occupies a particularly convenient West End location close to an outstanding selection of local amenities on Crow Road (including Crow Road Retail Park), Dumbarton Road and Byres Road together with excellent transport links and easy access to The University of Glasgow.
Accommodation:
- Security entry system
- Communal entrance close
- Storm door entrance vestibule leading into broad and welcoming reception hall with useful storage cupboard off
- Superb lounge/dining room with three section bay window, focal point fireplace and shelved press
- Separate kitchen off the reception hall complete with a range of base and wall units and appliances
- Bedroom one with window to the front and focal point fireplace
- Bedroom with window to the rear
- Three-piece bathroom comprising bath, over bath shower, toilet and wash hand basin. Window to the rear
- Gas central heating
- Double glazing
EPC: D
Council Tax: C
Tenure : Freehold
More Details
Situation: Contact branch
Council Tax Band: C
Tenure: Freehold
Your home may be repossessed if you do not keep up repayments on your mortgage. There may be a fee for mortgage advice. The actual amount you pay will depend upon your circumstances.
Similar Properties
Looking To Sell Or Let?
Rettie is one of the most trusted and well-respected names in property. Our unrivalled market knowledge helps people from around the world buy, sell, let and develop property in Scotland and the North East of England - from city apartments and rural cottages to large townhouses and prime country homes, farms and estates. We deal with some of the most prestigious properties on the market, but provide the same exceptional standards of service and value for money to all our clients.
