Property Description
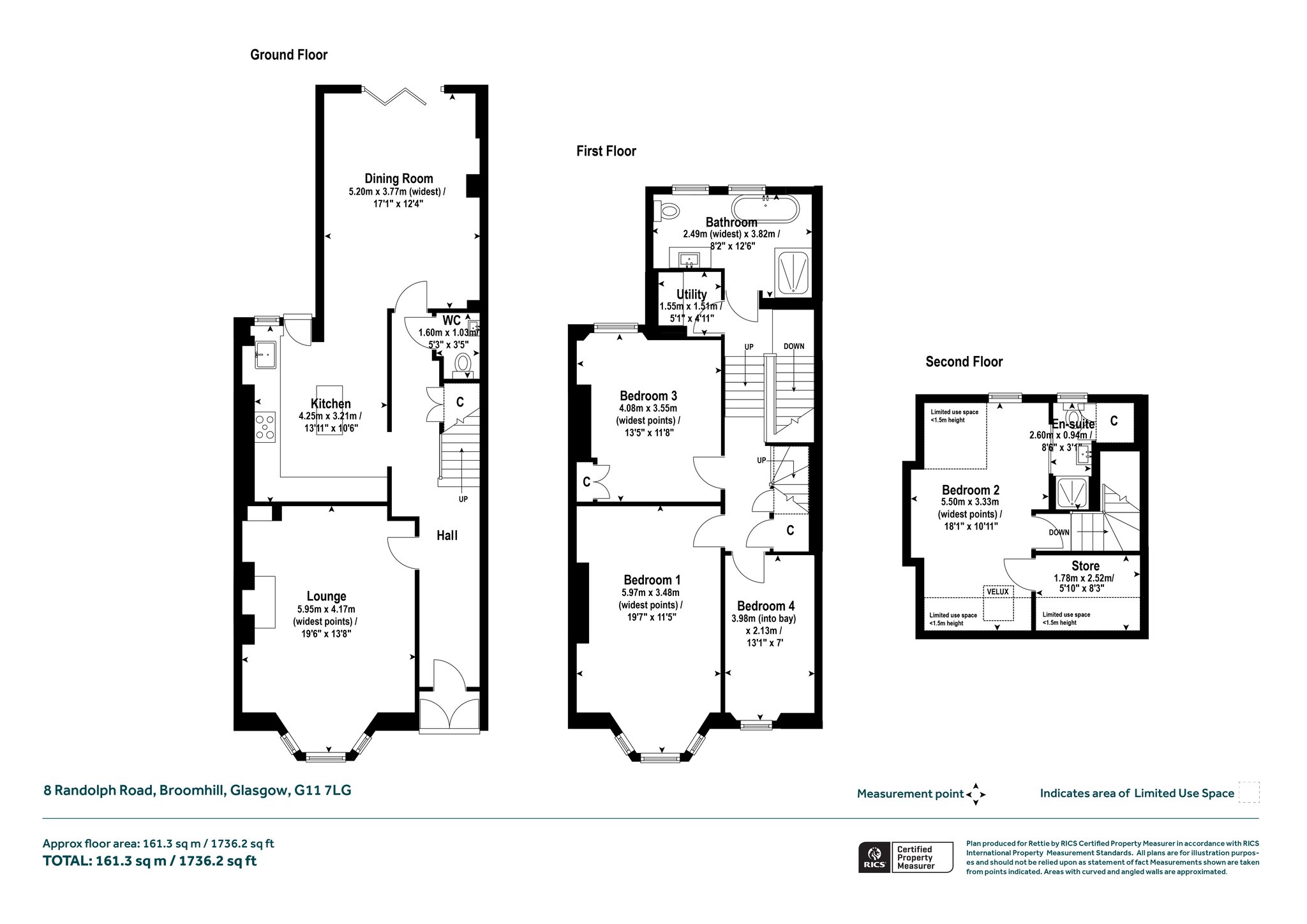
An absolutely exceptional four-bedroom, traditional red sandstone family home which is in immaculate condition, has been cleverly reconfigured internally, has an innovative extension to the rear, and has a fabulous attic conversion.
Randolph Road is one of Broomhill’s most sought-after addresses, and number 8 is one of the finest examples of its type. From the moment you enter this property there is an immediate sense of quality with an elegant lounge at the front and then the fantastic re-fitted kitchen flows beautifully into the impressive extension (sitting/dining room) which feels totally connected to the garden from the full-height glazed doors.
Upstairs, the house has a luxurious bathroom, a utility room and three bedrooms, and then a quality stairway leads to the additional second-floor bedroom which has an en suite shower room.
Externally, the same quality continues with a mature garden to the front and a comprehensively landscaped garden to the rear with decking, further raised garden and paved patio.
Broomhill is a beautiful, leafy district in the West End of Glasgow and offers an excellent range of amenities with many shops, cafes, delicatessens, restaurants and an exceptional primary school in the vicinity. It is only a short walk to Hyndland Railway Station, Hyndland Secondary School and further amenities on Clarence Drive, Hyndland Road and Byres Road. Public transport is available by bus, rail and underground. There are also good road links to the City Centre, Glasgow International Airport and beyond.
Accommodation
- Entrance vestibule with storm doors.
- Bright, welcoming reception hall with wooden flooring and under-stair storage.
- Beautifully presented lounge with three section bay window to the front, focal point fireplace with wood-burning stove, wooden flooring and ornate cornicing.
- Stunning re-tiled contemporary kitchen of superb quality. The kitchen has extensive units, worktops, feature lighting, quality appliances, substantial window to the rear, glazed door to the deck and wooden flooring throughout.
- Outstanding extension which allows a superb sitting/dining room on a semi-open basis to the kitchen and has full height three section doors directly to the back garden. Wooden flooring.
- Downstairs W.C. off the reception hall.
- Lovely traditional stairway leading to the bay landing.
- Luxurious bathroom with four-piece white suite and two windows to the rear.
- Fantastic utility room which cleverly serves the four bedrooms.
- Upper landing with stairway to the second floor and window/storage.
- Bedroom one (principal) with three section bay window to the front and ornate cornicing.
- Bedroom three with two section window to the rear.
- Bedroom four with window to the front (currently used as a dressing room).
- Stairway up to the second floor landing.
- Superbly created bedroom three with Velux window to the front and dormer window to the rear.
- En suite shower room with three-piece white suite, electric shower and dormer window to the rear.
- Gas central heating.
- Double glazing.
- Private garden to the front and an amazing “wraparound” garden to the rear which is thoughtfully landscaped and includes a “L shaped” lower deck and a slightly raised main garden, with a really private corner paved patio.
EPC: D
Council Tax: G
Tenure : Freehold
More Details
Situation: Private Garden
Council Tax Band: G
Tenure: Freehold
Your home may be repossessed if you do not keep up repayments on your mortgage. There may be a fee for mortgage advice. The actual amount you pay will depend upon your circumstances.
Similar Properties
Looking To Sell Or Let?
Rettie is one of the most trusted and well-respected names in property. Our unrivalled market knowledge helps people from around the world buy, sell, let and develop property in Scotland and the North East of England - from city apartments and rural cottages to large townhouses and prime country homes, farms and estates. We deal with some of the most prestigious properties on the market, but provide the same exceptional standards of service and value for money to all our clients.
