The Penthouse, 337 Glasgow Harbour Terraces, Glasgow Harbour, Glasgow, G11 6BH
Offers Over £495,000
Penthouse Apartment
3 Bedrooms
3 Bathrooms
1 Reception Room
2,607 sq.ft
Communal Garden
Off Street Parking, Secure Parking, Underground Parking
Property Description
Offered to the market for the very first time since the flagship Glasgow Harbour Development was originally launched, this totally unique 2,600+ sq. ft Penthouse offers an exceptional standard of contemporary living complemented with breathtaking views, extensive outdoor space and the significant advantage of 2 allocated car park spaces.
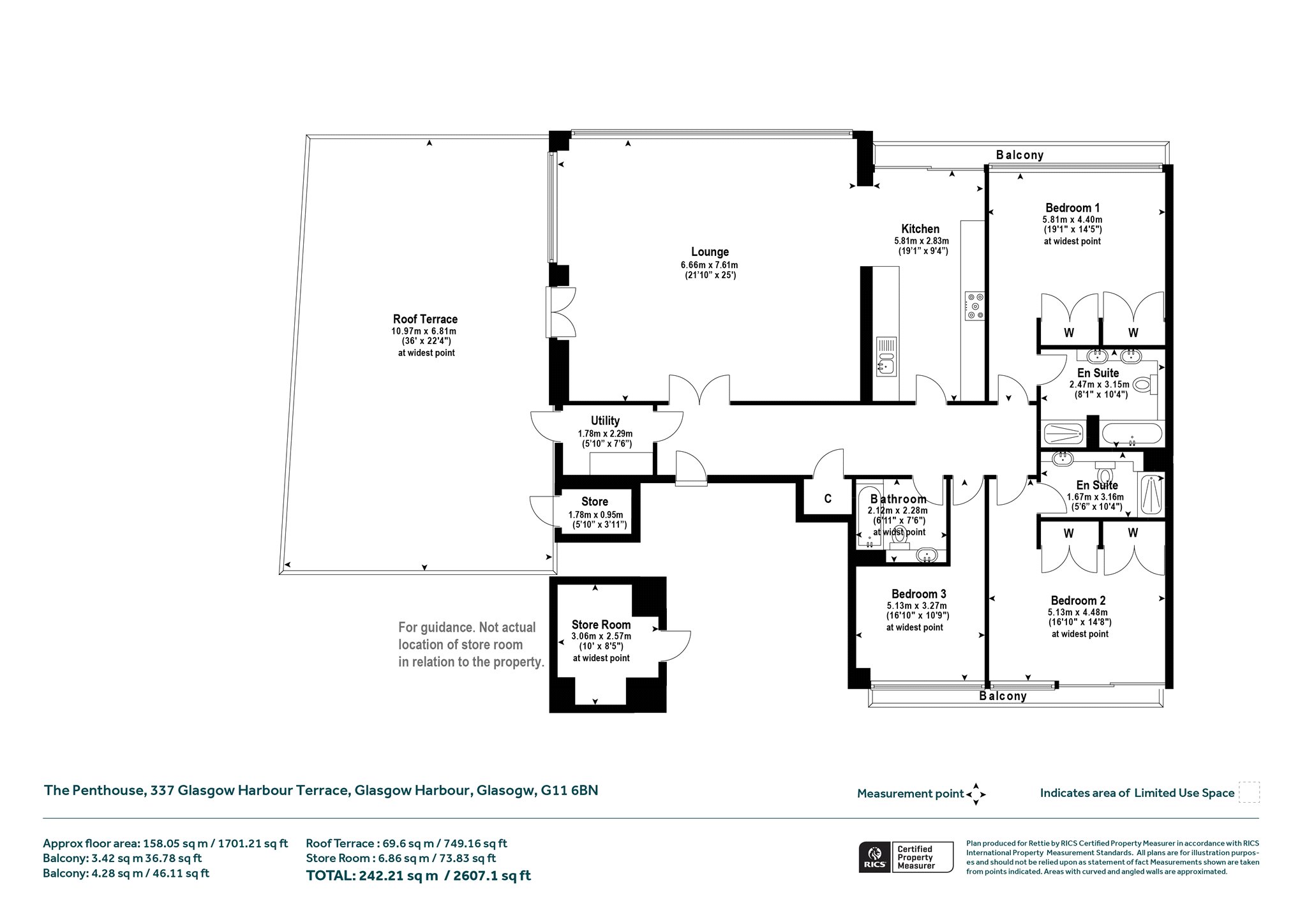
Occupying the entire top floor, and boasting approximately 1820 square feet of immaculately presented internal accommodation, this impressive home also features a vast private terrace extending to circa 785 square feet, which makes for perfect a space for entertaining or simply enjoying the views of the River Clyde, The West End of Glasgow, South Glasgow and beyond. In addition, two private balconies provide additional outdoor space directly accessible from the kitchen and second bedroom, allowing natural light to flood the apartment throughout the day.
The internal accommodation is magnificent in scale and includes a broad and welcoming reception hall, a superb main lounge/dining room, a semi open plan kitchen, three spacious and versatile double bedrooms, a five-piece en-suite bathroom, an en-suite shower room and a three-piece bathroom off the reception hall. In addition, there is an abundance of storage throughout including an invaluable utility room with new condensing boiler, cloak room, fitted wardrobes in the principal bedroom and bedroom two and considerable external storage off the 8th floor landing. Additional features include lift access to each level including internally down to the residents’ underground car park, well maintained communal areas and an invaluable on-site concierge service.
Set within the prominent Glasgow Harbour Development, the property offers the best of both riverside tranquillity and city convenience. There is convenient local access to Broomhill Shopping Centre (Co-op; Boots; Dry Cleaners; Greggs); Crow Rd., Retail Park (M&S Food Hall; Sainsburys; Superdrug; Boots) and a Morrisons and Lidl situated just along the road at the Partick Transport Interchange. Just moments from the vibrant West End, you will find a fantastic selection of cafés, bars, award-winning restaurants, and independent shops. Cultural attractions such as the SEC, Hydro, The Riverside Museum, and Kelvingrove Art Gallery & Museum are all within easy reach. Excellent transport links include nearby Partick Train and Subway Station, regular bus services, and swift access to the Clyde Tunnel and the M8, M73 and M74 Motorways.
Accommodation:
- 2,600+ sq ft total accommodation
- 2 allocated car parking spaces
- New Condensing Boiler + Hive Thermostat (April 2025)
- Security entry system
- Communal entrance hall with lift and stair access to each level
- Broad and welcoming reception hall with storage cupboard off
- Invaluable utility room off the reception hall with direct access to the roof terrace
- Cloaks cupboard off the reception hall
- Incredible main lounge/dining room with five section window to the rear, two additional windows to the side and double doors providing access to the private terrace
- Semi open plan kitchen complete with a range of base and wall units, quality NEFF appliances and breakfasting bar. Sliding door to private south facing balcony
- Principal bedroom with three section window to the rear and fitted wardrobes
- Generous en-suite bathroom comprising Kaldewei bathtub, separate shower enclosure, toilet, and dual Laufen hand basins with Hans Grohe taps
- Bedroom two with window to the front and sliding door to private balcony
- En-suite shower room comprising three piece suite
- Versatile third bedroom with two section window to the front
- Three-piece bathroom off main hallway
- Gas central heating
- Double glazing
- Outstanding roof terrace
- Lift access to each level
- 7-day on-site Concierge service – 12 hours per day
- Useful external storage room off the 8th floor landing
- Access to well-maintained shared garden/courtyard to the rear of the building
- Access to the landscaped “Linear Park” gardens & River Walkway which surround the Glasgow Harbour Riverside Development
EPC: C
Council Tax: G
Freehold: Tenure
More Details
Situation: Communal Garden
Council Tax Band: G
Tenure: Freehold
Your home may be repossessed if you do not keep up repayments on your mortgage.
There may be a fee for mortgage advice. The actual amount you pay will depend upon your circumstances. The fee is up to 1% but a typical fee is 0.3% of the amount borrowed.
Similar Properties
Looking To Sell Or Let?
Rettie is one of the most trusted and well-respected names in property. Our unrivalled market knowledge helps people from around the world buy, sell, let and develop property in Scotland and the North East of England - from city apartments and rural cottages to large townhouses and prime country homes, farms and estates. We deal with some of the most prestigious properties on the market, but provide the same exceptional standards of service and value for money to all our clients.
