6/3, 302 Meadowside Quay Walk, Glasgow Harbour, Glasgow, G11 6AX
Offers Over £155,000
Apartment
1 Bedroom
1 Bathroom
1 Reception Room
630 sq.ft
Secure Parking
Property Description
This immediately impressive one bedroom apartment occupies a prominent sixth-floor position within the popular development at Glasgow Harbour. Benefiting from a glorious outlook over the river. Encompassing views to the south of Glasgow, with further far reaching views both to the east and west of the property, from a private balcony. The property enjoys a naturally bright interior, whilst situated south facing, enjoying the sunlight all day. It is generously proportioned while offering private secure underground parking.
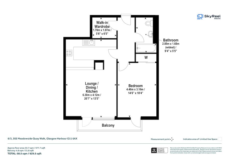
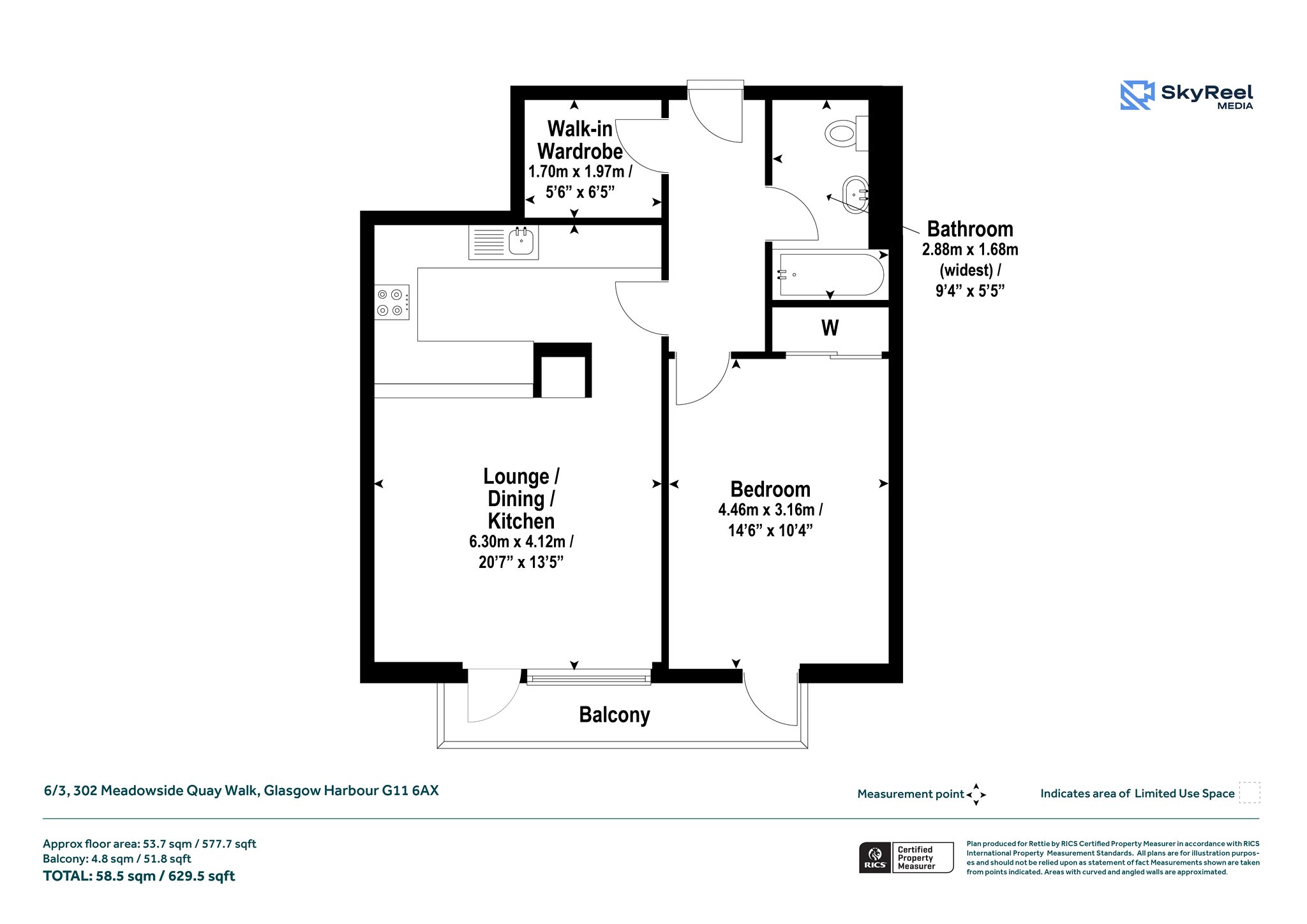
Particular highlights include a superb open-plan lounge/dining room with direct access to a private balcony, a well-appointed fitted kitchen, a spacious double bedroom, and a modern three-piece bathroom. The apartment also provides plentiful storage by way of a walk-in-wardrobe, in addition to fitted wardrobes located in the bedroom, a feature infrequently found in modern apartments and something that would undoubtedly appeal to discerning buyers. Located within the open planned kitchen/living area is a beautifully designed and built bespoke bookcase, recently installed to maximise storage as well as giving the property that unique feel.
302 Meadowside Quay Walk forms part of the Glasgow Harbour Development constructed by The Park Lane Group and benefits from excellent natural light and enjoys exceptional views of The River Clyde and over towards The Transport Museum, The Tall Ship, SSEC, Glasgow’s West End and Glasgow City Centre. The location offers easy links to the West End, including Byres Road and excellent walking/cycling connections into the City Centre and across the River Clyde with the newly installed Govan-Partick Link bridge, with convenient access to the University of Glasgow and the heart of Partick. A five minute walk from the property is Partick transport hub. The Subway, Low Level Railway Station, which takes you directly to both Glasgow Central and Glasgow Queen Street within 10 minutes and bus Links, to the Queen Elizabeth University Hospital, are all located here.
Accommodation
- Secure entry to a communal hall with lift and stair access to each level.
- Welcoming reception hall with storage off.
- Pleasant lounge/dining room with door access to the private south-facing balcony.
- Open-plan kitchen with a range of wall/base units and integrated appliances.
- Generous double bedroom with fitted wardrobes and south facing window and access to the private balcony.
- Three-piece bathroom.
- Gas central heating.
- Double glazing.
- Allocated parking within the secure residents’ car park.
- On site management.
More Details
EPC: B
Council Tax: E
Tenure: Freehold
Your home may be repossessed if you do not keep up repayments on your mortgage. There may be a fee for mortgage advice. The actual amount you pay will depend upon your circumstances.
Similar Properties
Looking To Sell Or Let?
Rettie is one of the most trusted and well-respected names in property. Our unrivalled market knowledge helps people from around the world buy, sell, let and develop property in Scotland and the North East of England - from city apartments and rural cottages to large townhouses and prime country homes, farms and estates. We deal with some of the most prestigious properties on the market, but provide the same exceptional standards of service and value for money to all our clients.
