2/3, 301 Glasgow Harbour Terraces, Glasgow Harbour, Glasgow, G11 6BP
Offers Over £165,000
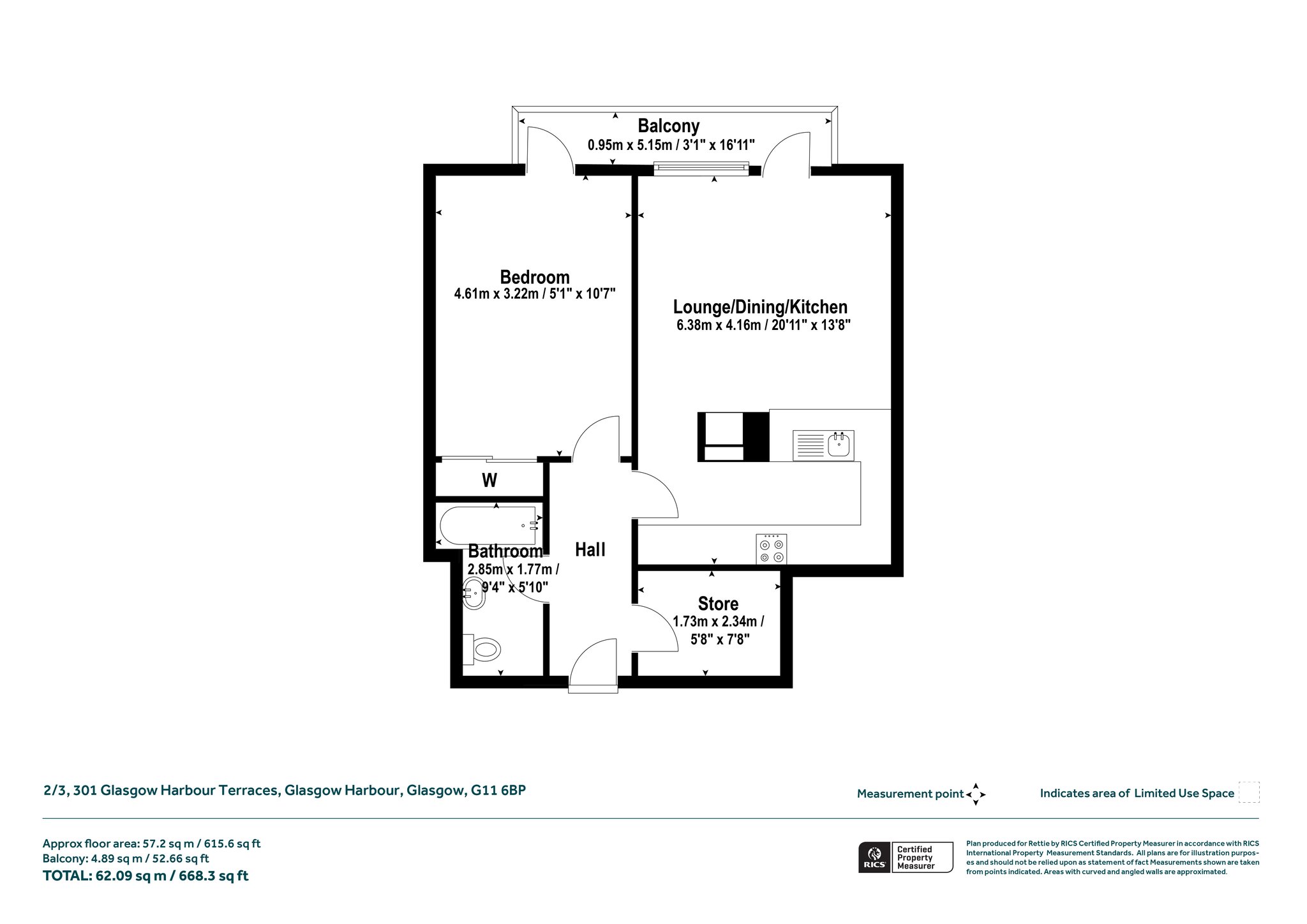
Upper Floor Apartment
1 Bedroom
1 Bathroom
1 Reception Room
668 sq.ft
Underground Parking
Property Description
This particularly stylish and immaculately presented one bedroom second floor flat is contained within the landmark Glasgow Harbour development. This particular building was completed by Park Lane in 2006 and is the flagship building of the entire Harbour development. The property benefits from excellent natural light and enjoys exceptional views of The River Clyde and over towards The Transport Museum, The Tall Ship, SSEC, Glasgow’s West End and Glasgow City Centre.
The internal accommodation is naturally bright, has a comfortable feel and is presented in walk in condition throughout. The interior includes a fabulous lounge/dining room, a semi open plan kitchen, a generous double bedroom and a three-piece bathroom off the reception hall. In addition, there is ample storage off the reception hall together with fitted wardrobes in the bedroom. We would also highlight the significant advantages of a private balcony accessed from the lounge and bedroom, an allocated parking space, lift access to each level, well maintained communal courtyard to the rear of the building and concierge service.
Accommodation:
- Security entry system
- Communal entrance hall with lift and stair access to each level including the secure residents’ car park
- Welcoming reception hall with invaluable storage cupboard off
- Superb main lounge/dining room with large picture window to the front and door to private balcony
- Semi open plan kitchen complete with a range of base and wall units, integrated appliances and breakfasting bar
- Generous double bedroom with fitted wardrobes and door to private balcony
- Stylish three-piece bathroom comprising bath, over bath shower, toilet and wash hand basin
- Gas central heating
- Double glazing
- Lift access to each level
- Allocated parking space within secure residents’ car park
- Concierge service
- Well maintained shared courtyard to the rear of the building
EPC: B
Council Tax: E
Tenure : Freehold
More Details
Situation: Balcony
Council Tax Band: E
Tenure: Freehold
Your home may be repossessed if you do not keep up repayments on your mortgage. There may be a fee for mortgage advice. The actual amount you pay will depend upon your circumstances.
Similar Properties
Looking To Sell Or Let?
Rettie is one of the most trusted and well-respected names in property. Our unrivalled market knowledge helps people from around the world buy, sell, let and develop property in Scotland and the North East of England - from city apartments and rural cottages to large townhouses and prime country homes, farms and estates. We deal with some of the most prestigious properties on the market, but provide the same exceptional standards of service and value for money to all our clients.
