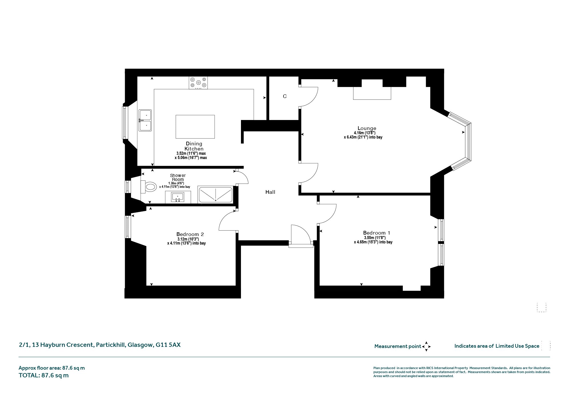
2/1, 13 Hayburn Crescent, Partickhill, Glasgow, G11 5AX
Property Description
Situated in a really peaceful yet incredibly convenient West End address, this absolutely immaculate two bedroom flat occupies a second floor position which forms part of a traditional blonde sandstone building.
Located in the highly desirable Partickhill district, 13 Hayburn Crescent is a quiet, leafy location yet is close to countless amenities on Clarence Drive and Hyndland Road. There are excellent transport links and the flat is a short walk to Hyndland Railway Station. Hayburn Park is a stone’s throw away and offers a fantastic outdoor amenity. The property’s location is also very handy for those associated with The University of Glasgow.
Regarding the interior, on entering the bright, welcoming reception hall, buyers will immediately realise the love and care that has been put into this flat. There is a beautiful elegant lounge with bay window, fireplace and ornate cornicing and the dining kitchen provides a wonderful statement of quality having been totally re-fitted by the present owner and having a fabulous central island. The shower room is equally impressive and has W/C, large shower and a stunning wash hand basin with storage below. The main bedroom is to the front and there is a second double bedroom to the rear.
Overall, this is an outstanding flat of its type with a beautiful flow of light throughout.
Accommodation
- Welcoming entrance hallway with ornate cornice and original ceiling rose.
- Bright front lounge benefitting from lovely natural outlook from a large three section bay window. The room is completed by marble focal fireplace with log burning stove, stunning cornice and large walk-in cupboard.
- Gorgeous fitted kitchen with marble counter tops, range cooker, superb breakfasting/dining island, integrated appliances, Belfast sink and tall window to the rear.
- Principal (main) bedroom with double section window to the front, detailed cornice and centre ceiling rose.
- Bedroom two with large window the rear, currently utilised as an office/guest room, this space could also make a great dedicated double bedroom.
- Three piece contemporary shower room with gorgeous feature hand basin, light up mirror and window to the rear.
- Beech hardwood flooring in the hall, lounge and both bedrooms.
- Shared communal garden.
- Double glazing.
- Gas central heating.
- Availability of on-street residents’ parking.
EPC: D
Council Tax: D
Tenure : Freehold
More Details
Situation: Communal Garden
Council Tax Band: D
Tenure: Contact Branch
Your home may be repossessed if you do not keep up repayments on your mortgage. There may be a fee for mortgage advice. The actual amount you pay will depend upon your circumstances.
Similar Properties
Looking To Sell Or Let?
Rettie is one of the most trusted and well-respected names in property. Our unrivalled market knowledge helps people from around the world buy, sell, let and develop property in Scotland and the North East of England - from city apartments and rural cottages to large townhouses and prime country homes, farms and estates. We deal with some of the most prestigious properties on the market, but provide the same exceptional standards of service and value for money to all our clients.
