Property Description
Located in an incredibly convenient West End location, this immaculately presented two-bedroom flat on Caird Drive occupies a prominent third floor position within an elegant red sandstone tenement building. Positioned on the particularly desirable crescent section of Caird Drive, this appealing property is ideally suited to first-time buyers, professionals, or those seeking a stylish pied-à-terre in Glasgow’s vibrant West End.
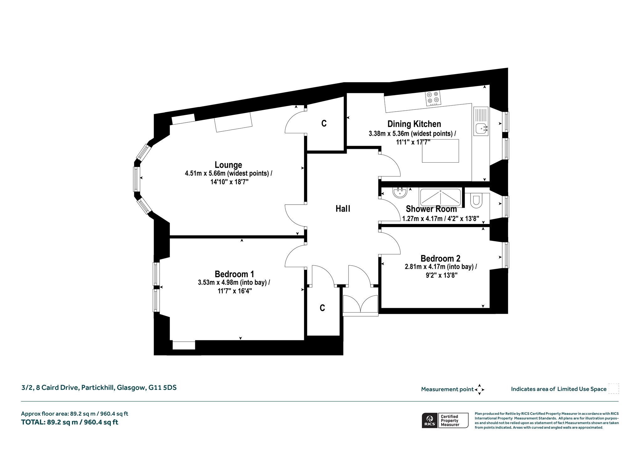
The internal accommodation is presented in walk in condition throughout, is of generous proportions and benefits from excellent natural light. Notable highlights include a superb
bay-windowed lounge, a separate dining kitchen two well-appointed double bedrooms and a modern three-piece shower room.
Caird Drive is ideally positioned within the ever-popular Partickhill area, a short stroll from the many attractions of Byres Road together with the vibrant Hyndland district. Residents can enjoy an array of independent cafés, bars, and restaurants, as well as excellent shopping options including boutique stores and supermarkets. The nearby Kelvingrove Park and Botanic Gardens offer green spaces for leisure and relaxation. For commuters, there are excellent transport links, with Partick Train and Subway Station nearby, providing swift access to the city centre and beyond. The area is also well served by bus routes and offers easy access to major road networks.
Accommodation:
- Security entry system
- Communal entrance close
- Storm door entrance vestibule leading into broad and welcoming reception hall with useful storage cupboard off
- Superb lounge with three section bay window, focal point fireplace, shelved press, ceiling cornice and storage cupboards
- Dining kitchen complete with a range of base and wall units, appliances, central island, recess area and two section window to the rear
- Bedroom one with two section window to the front, ceiling cornice and shelved press
- Bedroom two with window to the rear
- Modern three-piece shower room. Window to the rear
- Gas central heating
- Double glazing
- Shared garden to the rear of the building
- Availability of on street residents’ parking permit
More Details
EPC: D
Council Tax: D
Tenure: Freehold
Your home may be repossessed if you do not keep up repayments on your mortgage. There may be a fee for mortgage advice. The actual amount you pay will depend upon your circumstances.
Similar Properties
Looking To Sell Or Let?
Rettie is one of the most trusted and well-respected names in property. Our unrivalled market knowledge helps people from around the world buy, sell, let and develop property in Scotland and the North East of England - from city apartments and rural cottages to large townhouses and prime country homes, farms and estates. We deal with some of the most prestigious properties on the market, but provide the same exceptional standards of service and value for money to all our clients.
