1/5, 301 Glasgow Harbour Terraces, Glasgow Harbour, Glasgow, G11 6BP
Offers Over £185,000
Apartment
2 Bedrooms
2 Bathrooms
1 Reception Room
950 sq.ft
Secure Parking
Property Description
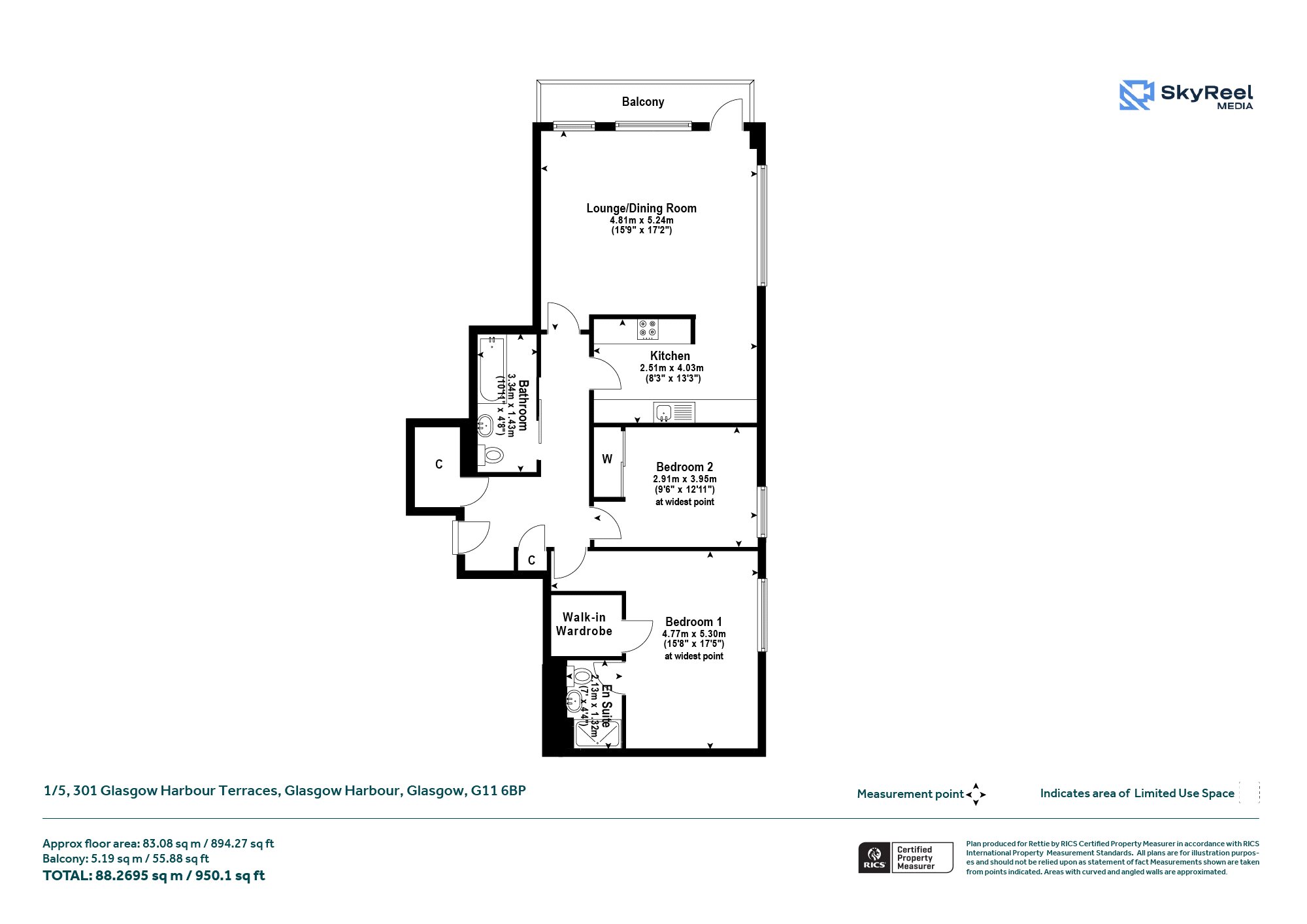
Contained within the landmark Glasgow Harbour development, this attractive two-bedroom first-floor apartment offers, well-appointed accommodation in a highly sought-after riverside setting.
The accommodation is naturally bright and generously proportioned with a superb lounge/dining room forming the heart of the home. This inviting space flows seamlessly into a semi-open plan kitchen, creating an ideal layout for both everyday living and entertaining. There are two spacious double bedrooms, with the principal bedroom benefiting from an en suite shower room, while a modern three-piece bathroom is access off the reception hall. A private balcony provides a pleasant outlook over towards The River Clyde and Glasgow City Centre. Further features include lift access to all levels, the added bonus an allocated parking space and the added convenience of a concierge service, all contributing to a secure and comfortable lifestyle.
Glasgow Harbour is perfectly positioned to take advantage of the best of the West End and city living. A wide selection of local amenities can be found nearby, including cafes, bars, restaurants and shops, with Finnieston, Partick and the vibrant West End all within easy reach. Excellent transport links are available via road, rail and bus services, providing swift access to the city centre, the International Financial Services District and beyond. Scenic riverside walks, leisure facilities and cultural attractions such as the Riverside Museum further enhance the appeal of this exceptional location.
Accommodation:
- Security entry system
- Communal entrance hall with stair and lift access to each level
- Welcoming reception hall with storage cupboard off
- Superb main lounge/dining room with three large picture windows to the rear, additional picture window to the side and door to private balcony
- Semi open plan kitchen complete with a range of base and wall units and appliances
- Bedroom one with two section window to the rear and fitted wardrobes
- En suite shower room comprising three-piece suite
- Bedroom two with window to the rear and fitted wardrobes
- Modern three-piece bathroom comprising bath, over bath shower, toilet and wash hand basin
- Gas central heating
- Double glazing
- Lift access to each level
- Allocated parking space within secure residents’ car park
- Concierge service
- Well maintained shared courtyard to the rear of the building
More Details
Situation: Balcony
Council Tax Band: F
Tenure: Freehold
Your home may be repossessed if you do not keep up repayments on your mortgage.
There may be a fee for mortgage advice. The actual amount you pay will depend upon your circumstances. The fee is up to 1% but a typical fee is 0.3% of the amount borrowed.
Similar Properties
Looking To Sell Or Let?
Rettie is one of the most trusted and well-respected names in property. Our unrivalled market knowledge helps people from around the world buy, sell, let and develop property in Scotland and the North East of England - from city apartments and rural cottages to large townhouses and prime country homes, farms and estates. We deal with some of the most prestigious properties on the market, but provide the same exceptional standards of service and value for money to all our clients.
