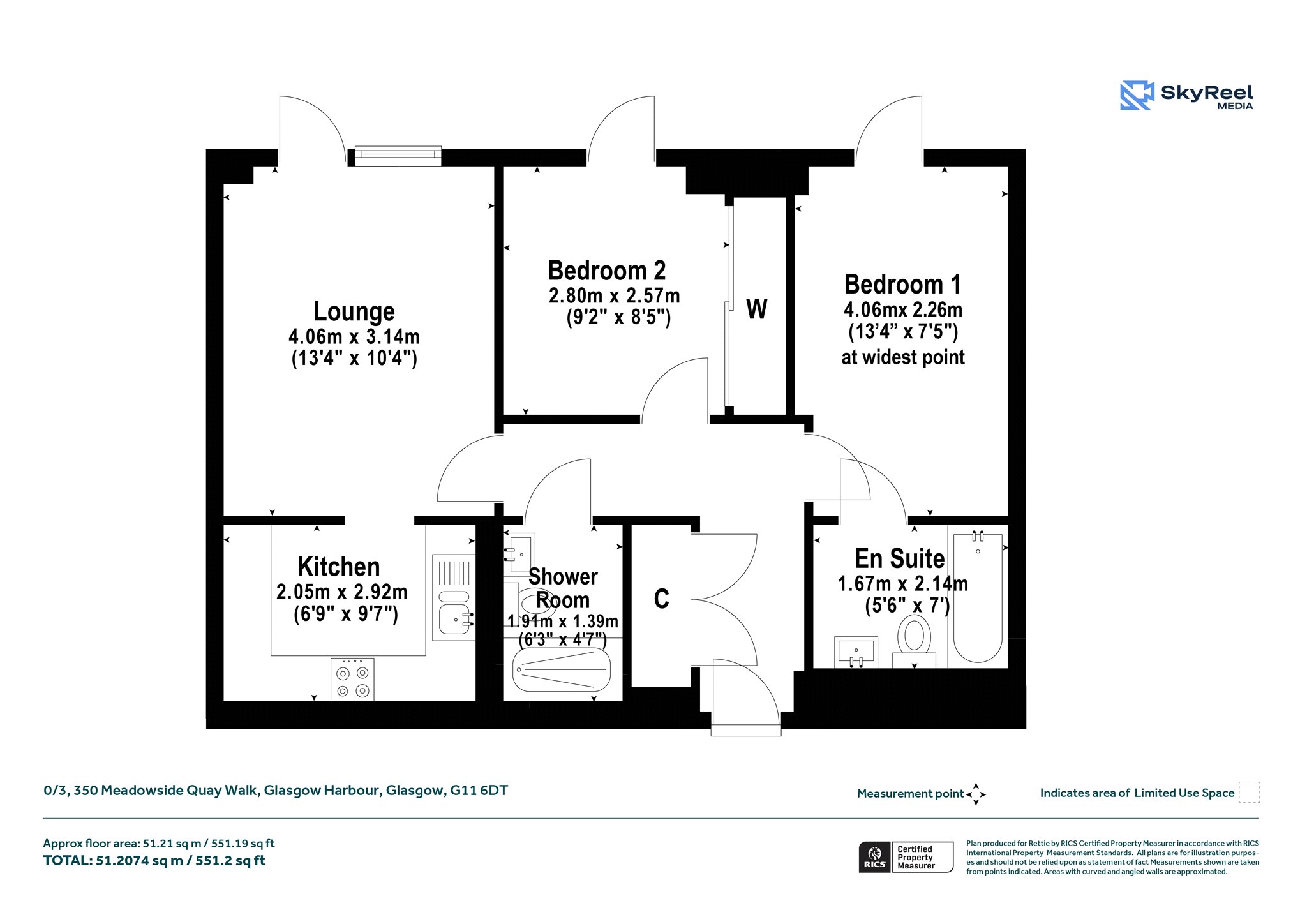
0/3, 350 Meadowside Quay Walk, Glasgow Harbour, Glasgow, G11 6DT
Offers Over £169,000
Ground Floor Apartment
2 Bedrooms
2 Bathrooms
1 Reception Room
551 sq.ft
Secure Parking
Property Description
This impressive two-bedroom modern apartment occupies a ground-floor position within the landmark Glasgow Harbour development.
The apartment is well presented, has a comfortable feel and benefits from excellent natural light. Notable highlights include a spacious lounge/dining room, a semi open plan kitchen, two double bedrooms, an en suite bathroom and a three-piece shower room off the reception hall. Addiitonal features include ample storage off the reception hall and bedroom two, access to a large private terrace from the lounge/dining room and both bedrooms, lift access to each level and the significant advantage of an allocated parking space within the secure underground residents’ car park.
The property is ideally positioned to take advantage of a wide range of local amenities. Glasgow Harbour offers riverside walks and cycle paths, while nearby Partick and Finnieston provide an excellent selection of shops, cafés, bars and restaurants. Excellent public transport links are available, including bus, rail and underground services at Partick, along with easy access to the Clydeside Expressway and motorway network. The location is also well placed for the West End, the University of Glasgow, and the city centre, making this an ideal home for a variety of buyers.
Accommodation:
- Security entry system
- Communal entrance hall with lift and stair access to each level
- Reception hall with useful storage cupboard off
- Bright and spacious lounge/dining room with door to private terrace
- Semi-open plan kitchen complete with a range of base and wall units and integrated appliances
- Bedroom one with door to private terrace
- Modern en suite bathroom comprising bath, over bath shower, toilet and wash hand basin
- Bedroom two with fitted wardrobes and door to private terrace
- Stylish shower room comprising three-piece suite
- Electric heating
- Double glazing
- Allocated parking space within secure underground residents’ car park
More Details
EPC: D
Council Tax: E
Tenure: Freehold
Your home may be repossessed if you do not keep up repayments on your mortgage. There may be a fee for mortgage advice. The actual amount you pay will depend upon your circumstances.
Similar Properties
Looking To Sell Or Let?
Rettie is one of the most trusted and well-respected names in property. Our unrivalled market knowledge helps people from around the world buy, sell, let and develop property in Scotland and the North East of England - from city apartments and rural cottages to large townhouses and prime country homes, farms and estates. We deal with some of the most prestigious properties on the market, but provide the same exceptional standards of service and value for money to all our clients.














































