Offers Over £129,000
Ground Floor Apartment
1 Bedroom
1 Bathroom
1 Reception Room
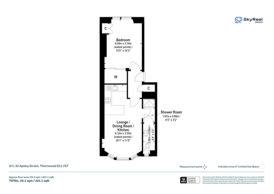
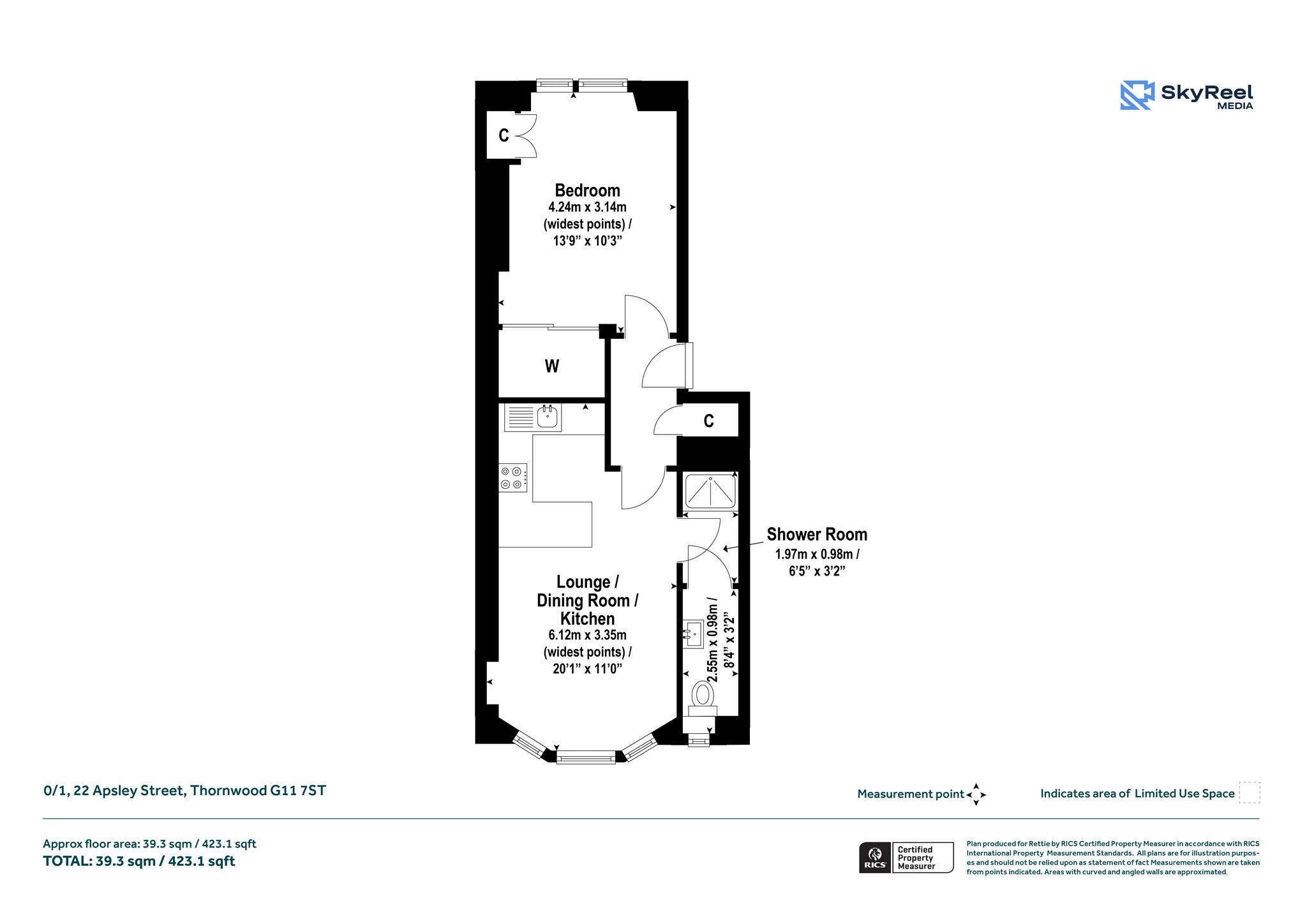
423 sq.ft
On Street/Permit
Property Description
This delightful one-bedroom apartment enjoys a ground floor position within a traditional sandstone tenement building and is located in the highly popular and convenient Partick area.
The property is immaculately presented throughout and benefits from excellent natural light, creating a bright and welcoming feel from the moment you step inside. The accommodation is thoughtfully arranged and includes a charming bay-windowed lounge/dining room, an ideal space for relaxing or entertaining, which flows seamlessly into a modern open-plan kitchen finished to a high standard. A generous double bedroom offers a calm and comfortable retreat, while the contemporary three-piece shower room completes the interior.
Apsley Street is superbly placed for enjoying everything Partick has to offer. A fantastic selection of local amenities can be found just a short stroll away, including independent cafés, popular bars, restaurants and a variety of shops along Dumbarton Road and nearby Byres Road. Excellent public transport links are close at hand, with Partick Underground and rail station providing easy access across the city, while several bus routes serve the area. Green spaces such as Kelvingrove Park and the riverside walkways are within easy reach, as are cultural attractions including the Riverside Museum and the University of Glasgow.
Accommodation:
- Security entry system
- Communal entrance close
- Reception hall with storage cupboard
- Spacious lounge/dining room with three section bay window to the front
- Impressive open plan kitchen complete with a range of base and wall units, appliances and breakfasting bar
- Generous double bedroom with two section window to the rear and large walk in wardrobe
- Three-piece shower room comprising three-piece suite. Window to the front
- Gas central heating
- Double glazing
- Private front garden
More Details
Situation: Contact branch
Council Tax Band: B
Tenure: Freehold
Your home may be repossessed if you do not keep up repayments on your mortgage. There may be a fee for mortgage advice. The actual amount you pay will depend upon your circumstances.
Similar Properties
Looking To Sell Or Let?
Rettie is one of the most trusted and well-respected names in property. Our unrivalled market knowledge helps people from around the world buy, sell, let and develop property in Scotland and the North East of England - from city apartments and rural cottages to large townhouses and prime country homes, farms and estates. We deal with some of the most prestigious properties on the market, but provide the same exceptional standards of service and value for money to all our clients.
