20 Lavender Drive, Newton Mearns, Glasgow, G77 6AF

Newton Mearns, Glasgow, G77 6AF
Under Offer
Pin View on map

Offers Over £420,000

House

Detached House

Bed

4 Bedrooms

Bathroom

3 Bathrooms

Reception

2 Reception Rooms

Tree

Private Garden

Telephone

Property Description

CLOSING DATE THURSDAY 26TH 12PM

Located within one of Newton Mearns’ most distinguished residential pockets, this impressive detached home on Lavender Drive offers a perfect balance of modern family living and thoughtful design. The property combines spacious accommodation with a flowing layout, creating an inviting environment ideal for both everyday life and entertaining. Presented in excellent condition, it delivers the style, flexibility and setting that buyers consistently seek in this highly coveted address.

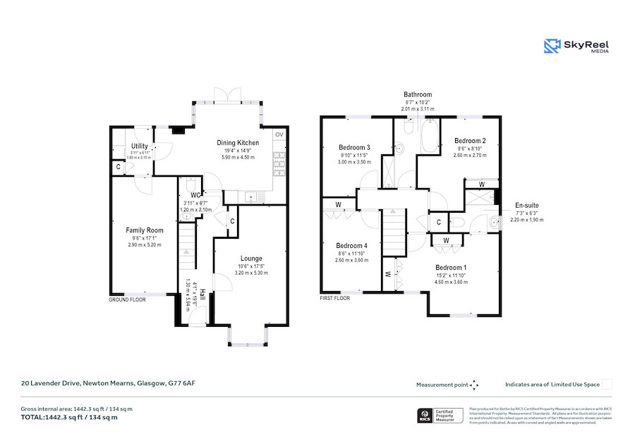
The accommodation begins with a welcoming entrance hallway leading to a bright front?facing lounge. To the rear, the impressive dining kitchen spans the full width of the property, offering excellent space for cooking, dining and entertaining with direct access to the garden. A spacious family room provides further versatility, ideal as a playroom, snug or home office. Completing the lower level is a useful utility room and a convenient WC.

The upper level provides four well?proportioned bedrooms, each benefitting from built?in storage. The principal bedroom features fitted wardrobes and a modern en?suite shower room. The remaining bedrooms are served by a stylish family bathroom, completing a well?balanced upper floor perfectly suited to family living.

The property is complemented by gas central heating, double glazing, a driveway with an electric car charging point, and a converted garage. Lovely landscaped garden to the rear, offering privacy and seclusion with a lawn area and terrace for entertainment.

Lavender Drive enjoys an enviable position close to Patterton Train Station, providing convenient rail links to Glasgow and beyond. The home sits within an excellent school catchment, known for some of East Renfrewshire’s highest-performing primary and secondary schools. Residents also benefit from easy access to Greenlaw Village Retail District, offering supermarkets, eateries and local amenities, along with superb connectivity via the M77 motorway, ensuring quick and straightforward commuting.

More Details

Council Tax: G
EPC: C
Tenure: Freehold

Contact Us

Erica McFarlane

Erica McFarlane

Senior Sales Negotiator
Roland Brownlee

Roland Brownlee

Mortgage & Protection Advisor
Mortgage Calculator
Monthly payments
Please set an interest rate.

Your home may be repossessed if you do not keep up repayments on your mortgage.

There may be a fee for mortgage advice. The actual amount you pay will depend upon your circumstances. The fee is up to 1% but a typical fee is 0.3% of the amount borrowed.

Tax Calculator
LBTT calculator for properties purchased in Scotland. Stamp Duty calculator for properties purchased in England.
Land & buildings transaction tax (LBTT)
= £0
New build house with stone and timber cladding

Looking To Sell Or Let?

Rettie is one of the most trusted and well-respected names in property. Our unrivalled market knowledge helps people from around the world buy, sell, let and develop property in Scotland and the North East of England - from city apartments and rural cottages to large townhouses and prime country homes, farms and estates. We deal with some of the most prestigious properties on the market, but provide the same exceptional standards of service and value for money to all our clients.