Property Description
Rettie are delighted to bring to the market this truly magnificent detached split-level villa, set within generous, beautifully landscaped gardens, just moments from Whitecraigs Tennis and Golf Clubs and a short walk to Whitecraigs Train Station.
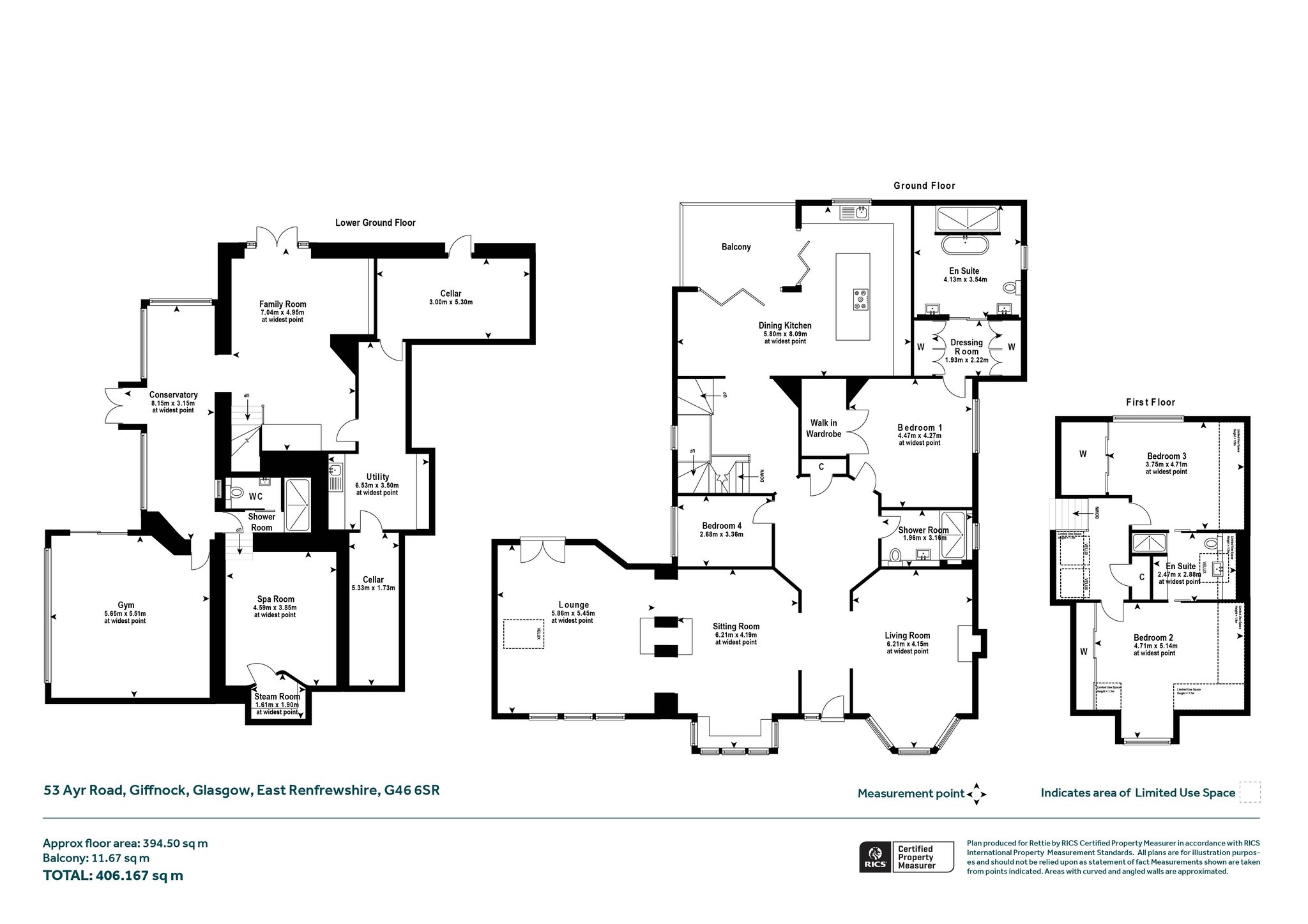
Inside, the home offers flexible and versatile accommodation over three levels, perfectly blending traditional character with contemporary finishes. Meticulously upgraded by the current owners, the property is presented to an exceptional standard.
From the front, the property’s façade gives little away about the impressive space within. A spacious, welcoming octagonal reception hallway with striking feature panelling sets the tone for the home. The generous bay-windowed dining room enjoys dual-aspect views and a fireplace, flowing seamlessly into a bright formal lounge with a Juliet balcony overlooking the rear gardens. The stylish, well-appointed kitchen and dining area is fitted with a range of wall-mounted and floor-standing units, integrated appliances, contemporary worktops, and an island unit. Bi-folding doors open onto a decked terrace, perfect for outdoor dining. The principal bedroom is a luxurious retreat, featuring two dressing rooms and a beautifully refitted ensuite with walk-in shower. A second bedroom and a stunning house shower room complete this level.
A bright landing on the upper floor leads to two further double bedrooms, connected by a stylish Jack & Jill ensuite shower room, plus a useful storage cupboard.
The lower level offers superb leisure and family space, including a generous family/games room with garden access, a garden room opening to the side terrace, and a versatile studio/gym with French doors to the garden. A spa area with steam room, shower, and WC adds a touch of luxury. A utility room and ample storage complete the floor.
The property is set back from Ayr Road, secured by automatic gates, and offers a driveway with space for several cars. The outstanding landscaped gardens provide exceptional privacy and include three distinct zones: a Japanese garden with ornamental pond and decking, a large lawn with colourful, well-stocked borders, and an extensive paved patio with a covered terrace — ideal for entertaining.
Additional benefits include gas central heating, double glazing, security alarm, and CCTV.
53 Ayr Road is located in close proximity from Glasgow City Centre. There are commuter routes via the M77, M8 and Glasgow Orbital motorway and regular train and bus services to Glasgow, and beyond. Whitecraigs together with Newton Mearns and Giffnock provide a fantastic range of local amenities which include healthcare facilities, banks, a range of supermarkets, shops, restaurants, and bars. Locally there is also sports and recreational facilities which include David Lloyd, Parklands Country Club, Cathcart and Whitecraigs Golf Clubs, Whitecraigs Tennis club, Rouken Glen Park, and its very own sports and leisure facilities at Eastwood Toll.
Ayr Road sits within the catchment area for East Renfrewshire’s primary and secondary schools. There is also a number of local collection and drop off points for private schools within the Glasgow area.
Freehold
More Details
Situation: Private Garden
Council Tax Band: H
Tenure: Freehold
Your home may be repossessed if you do not keep up repayments on your mortgage. There may be a fee for mortgage advice. The actual amount you pay will depend upon your circumstances.
Similar Properties
Looking To Sell Or Let?
Rettie is one of the most trusted and well-respected names in property. Our unrivalled market knowledge helps people from around the world buy, sell, let and develop property in Scotland and the North East of England - from city apartments and rural cottages to large townhouses and prime country homes, farms and estates. We deal with some of the most prestigious properties on the market, but provide the same exceptional standards of service and value for money to all our clients.
