Rosemount, 14 Lethington Road, Giffnock, Glasgow, East Renfrewshire, G46 6TB
Property Description
A Masterpiece of Modern Elegance in Historic Whitecraigs.
Rosemount, 14 Lethington Road, Whitecraigs
Set on one of the most prestigious and sought-after addresses in Glasgow’s South Side, this exceptional four-bedroom residence at 14 Lethington Road represents a rare fusion of classic charm and contemporary design. Originally built in 1923, this landmark property has been expertly reimagined from the ground up — offering the discerning buyer a unique opportunity to own a fully renovated, turn-key home in the heart of affluent Whitecraigs.
Timeless Elegance Meets Contemporary Luxury
Set within an exclusive enclave renowned for its leafy surroundings and architectural heritage, this substantial villa makes an immediate impression. Grand bay windows framed in original stonework wrap around the ground floor, flooding the interior with natural light and lending the exterior a stately, castle-like presence that pays homage to Glasgow’s rich architectural tradition.
Inside, no detail has been spared. Painstakingly restored and modernised by the current owners, the home now offers a flawless fusion of period charm and contemporary sophistication. Key features include:
Brand new raw oak flooring throughout
Two Chesney of London limestone fireplaces
Two Energy efficent log burners with extended flu
A spacious, elegant formal lounge and dining room
A versatile additional reception room, ideal for family living or entertaining
A bespoke dining kitchen with breakfasting island and granite worktops
A dedicated laundry/utility room and guest WC
A luxurious new Porcelanosa bathroom and principal suite
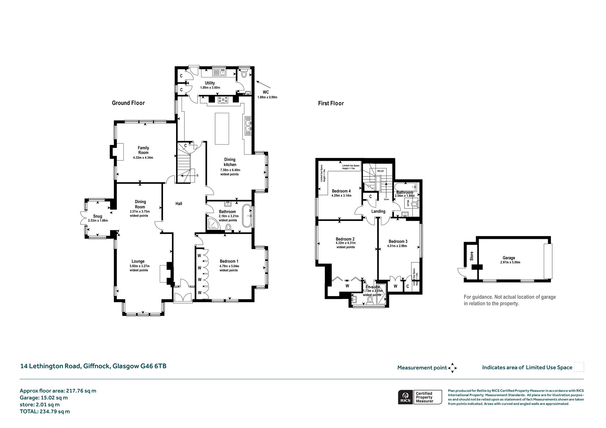
At the heart of the home is the traditional dining kitchen — expertly designed with bespoke cabinetry, a large breakfasting island, and polished granite work surfaces. This beautiful, functional space flows naturally into the informal dining area, perfect for both everyday living and entertaining.
A separate utility room with guest WC enhances practicality, while the ground floor also hosts a beautifully appointed four-piece family bathroom. The serene, bay-windowed principal bedroom offers tranquil views across the rear garden and delivers a true retreat feel.
Upstairs, the first floor offers three further generously proportioned double bedrooms. One enjoys a stylish new en-suite shower room and a newly extended wardrobe (increased from 1m to 4m) with integrated lighting and bespoke storage solutions. All bedrooms benefit from new ceilings, luxury carpets, and recessed spotlights. A chic family bathroom serves the remaining bedrooms, providing comfort and flexibility for guests and growing families.
From the rear rooms, leafy treetop views provide a rare sense of seclusion — an unexpected sanctuary so close to the city.
Newly Private Landscaped Gardens
Outside, the newly landscaped garden has been extended by approximately 170m², creating a generous and private outdoor space. Designed for both relaxation and entertaining, the grounds feature multiple alfresco zones, mature trees, and high hedging that enhance both privacy and visual appeal. The flow between indoors and outdoors has been thoughtfully maximised — making this home ideal for modern family life.
Location & Lifestyle
Ideally located within walking distance of Whitecraigs Tennis Club, Whitecraigs Golf Club, and the scenic Rouken Glen Park, this property also offers excellent transport links. Whitecraigs train station is just an eight-minute walk away, providing direct access to Glasgow City Centre in under 20 minutes.
This is a rare opportunity to acquire a bespoke family home in one of Glasgow’s most desirable residential settings — where period elegance meets every modern luxury.
Whitecraigs is a highly sought-after location just a short distance from Glasgow City Centre, offering excellent transport links via the M77, M8, and the Glasgow Orbital motorway. It is well-served by regular train and bus services, providing easy access to Glasgow and beyond. The surrounding area, including Newton Mearns and Giffnock, offers a wide range of amenities, from healthcare facilities and banks to supermarkets, shops, and a variety of restaurants and bars. For those who enjoy an active lifestyle, Whitecraigs provides excellent recreational options, including the David Lloyd Club, Parklands Country Club, Cathcart and Whitecraigs Golf Clubs, Whitecraigs Tennis Club, and the beautiful Rouken Glen Park. Eastwood Toll also offers its own sports and leisure facilities, making it a hub for fitness enthusiasts. Families will appreciate that Lethington Road has access to highly regarded primary and secondary schools within East Renfrewshire, including Kirkhill Primary, Mearns Castle High, and St. Ninian’s High School. Additionally, there are several convenient collection and drop-off points for private schools in the wider Glasgow area.
Freehold
EPC D
Early viewing is highly recommended
More Details
Situation: Private Garden
Council Tax Band: H
Tenure: Freehold
Your home may be repossessed if you do not keep up repayments on your mortgage. There may be a fee for mortgage advice. The actual amount you pay will depend upon your circumstances.
Similar Properties
Looking To Sell Or Let?
Rettie is one of the most trusted and well-respected names in property. Our unrivalled market knowledge helps people from around the world buy, sell, let and develop property in Scotland and the North East of England - from city apartments and rural cottages to large townhouses and prime country homes, farms and estates. We deal with some of the most prestigious properties on the market, but provide the same exceptional standards of service and value for money to all our clients.
