10 Crathie Place, Newton Mearns, Glasgow, East Renfrewshire, G77 5UG
Property Description
Unexpectedly Back On The Market
This beautifully presented three-bedroom semi-detached home, built by MacTaggart & Mickel, occupies a peaceful cul-de-sac in the highly desirable Newton Mearns area. Offering a superb combination of style and practicality, the property provides flexible accommodation across two levels, ideal for modern family living.
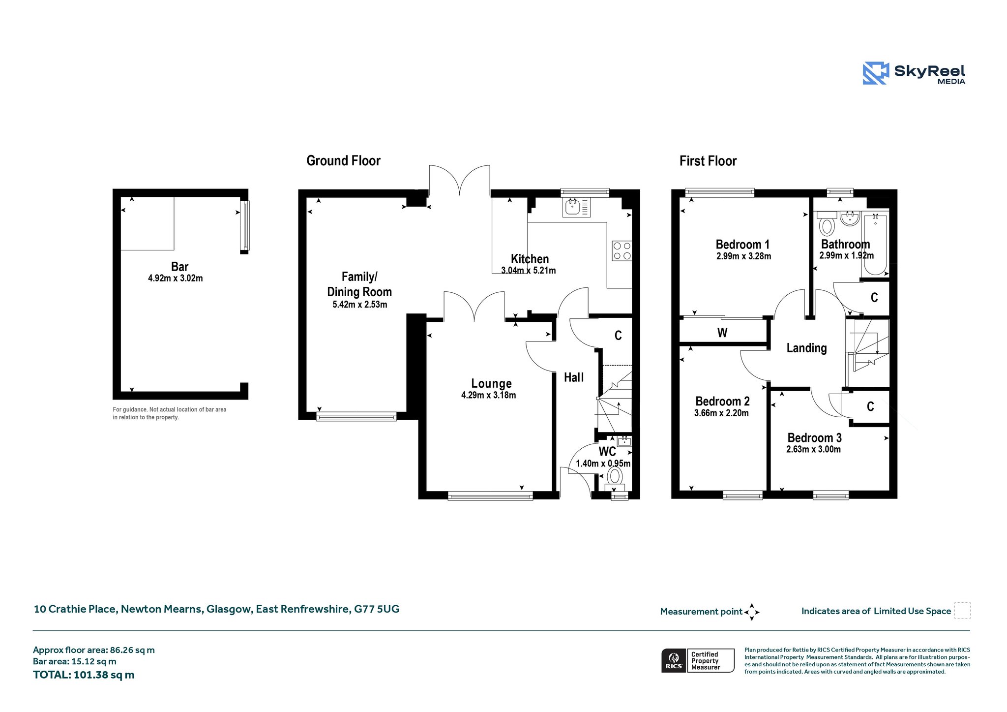
The property is entered via a welcoming covered porch into a spacious reception hallway, which includes a storage cupboard, staircase to the upper floor, and a convenient guest W.C. To the front, a bright lounge provides a comfortable and inviting space, while a dual-aspect family room connects seamlessly to the formal dining area, creating an open and sociable environment with direct access to the rear garden. The contemporary kitchen is fitted with a range of modern wall and base units and features French doors that lead directly to the garden, perfect for indoor-outdoor entertaining.
Upstairs, the principal bedroom benefits from fitted mirrored wardrobes, offering both style and practicality. Two further well-sized bedrooms are ideal for children, guests, or a home office. The floor is completed by a three-piece family bathroom with an over-bath shower.
Externally, the property features beautifully maintained gardens. The rear garden is private, fully enclosed, south-facing, and includes a charming summer house. The front garden is low-maintenance and accompanied by a large driveway providing ample off-street parking.
This home combines modern living with a sought-after location, making it a wonderful opportunity for families looking for space, style, and convenience in Newton Mearns.
Crathie place is superbly positioned for amenities, located within the catchment for the West of Scotlands highest attaining primary and secondary schooling with Mearns Castle High School only a stone’s throw from this property’s location. East Renfrewshire offers a wide variety of amenities banks, healthcare centres, libraries, supermarkets and is close to The Avenue shopping centre. Local sports and recreational facilities include Parklands Country Club, Cathcart, Williamwood and Whitecraigs Golf Clubs and several of private bowling, tennis, and rugby clubs along with East Renfrewshire Council's own excellent sports and leisure facilities at Eastwood Toll.
Newton Mearns is located approximately 9 miles from Glasgow City Centre. Commuter routes are served by the M77, M8 and Glasgow Orbital motorways which also provide 30-minute journey times to both Glasgow and Prestwick international airports. There are regular train and bus services to Glasgow, East Kilbride and the beautiful Ayrshire coast.
More Details
EPC: C
Council Tax: F
Tenure: Freehold
Your home may be repossessed if you do not keep up repayments on your mortgage. There may be a fee for mortgage advice. The actual amount you pay will depend upon your circumstances.
Similar Properties
Looking To Sell Or Let?
Rettie is one of the most trusted and well-respected names in property. Our unrivalled market knowledge helps people from around the world buy, sell, let and develop property in Scotland and the North East of England - from city apartments and rural cottages to large townhouses and prime country homes, farms and estates. We deal with some of the most prestigious properties on the market, but provide the same exceptional standards of service and value for money to all our clients.

