2/2, 4 Eastwoodmains Road, Giffnock, Glasgow, G46 6QF

Giffnock, Glasgow, G46 6QF
New
Pin View on map

Offers Over £335,000

House

Apartment

Bed

2 Bedrooms

Bathroom

3 Bathrooms

Reception

1 Reception Room

Garage

Garage

Parking

Secure Parking

Telephone

Property Description

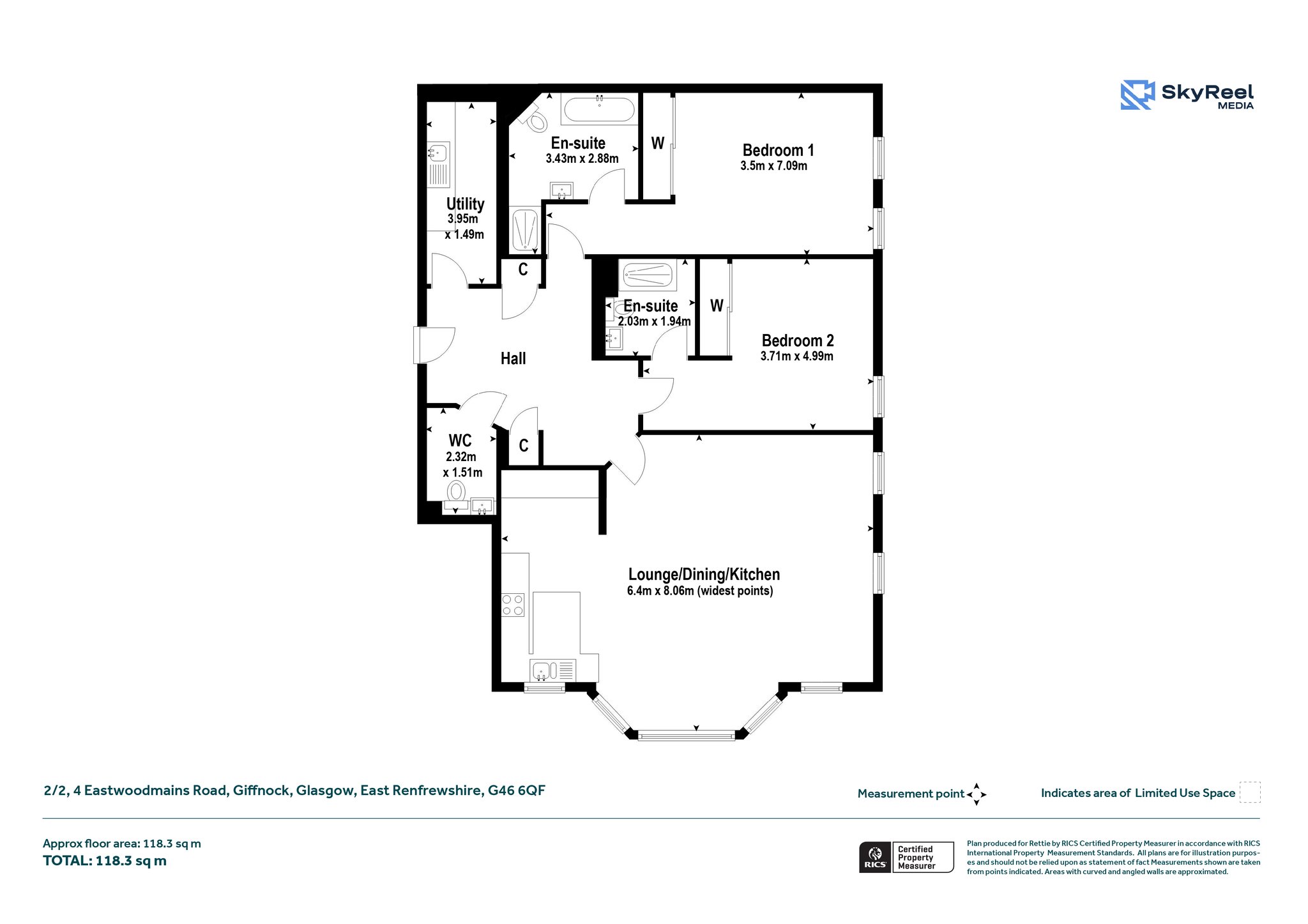
Set within Clan House Apartments, this exceptional second-floor apartment offers an exclusive lifestyle in one of Giffnock’s most sought-after addresses. With only four properties in the building, this home combines character with modern convenience, enjoying a favoured position within the block and open views towards Banco and Eastwood Toll.

Accessed via secure underground parking with electric doors and direct lift service to the second floor, the apartment is both private and practical, benefitting from two allocated spaces with an EV car charger included.

The accommodation is generously proportioned and beautifully presented throughout. A large, welcoming hallway with two storage cupboards leads to a guest WC and a spacious utility room, which in turn provides access to a private, partially floored attic space – ideal for additional storage. The principal bedroom is a luxurious retreat, featuring fitted wardrobes, a double window formation, and a stunning en suite bathroom complete with underfloor heating, a walk-in shower, and built-in television. The second double bedroom also benefits from fitted wardrobes and a stylish en suite shower room. At the heart of the apartment lies the impressive open-plan lounge, dining, and kitchen area. A striking bay window, complemented by a total of seven windows, floods the space with natural light while offering far-reaching views. The kitchen is equipped with an excellent range of wall and base units, integrated appliances, complementary granite worktops, and a breakfast bar – perfect for modern living and entertaining.

Further enhancing this exceptional property are double glazing, gas central heating, integrated Sonos sound system with ceiling speakers and the overall sense of space, light, and privacy rarely found in such a central location.

Giffnock remains one of Glasgow’s most sought-after residential suburbs. The area boasts outstanding public transport options with nearby bus routes and two train stations - Giffnock and Whitecraigs - as well as convenient motorway access (M77/M8), ensuring easy travel to Glasgow city centre and beyond. Residents can enjoy an array of independent shops, cafes, and restaurants just a short stroll away, along with fantastic leisure facilities including David Lloyd and Nuffield Health clubs, Whitecraigs Golf Club, local tennis clubs, and the award-winning Rouken Glen Park.

More Details

Council tax: F
EPC: C
Tenure: Freehold

Request More Details

Erica McFarlane

Erica McFarlane

Senior Sales Negotiator
Roland Brownlee

Roland Brownlee

Mortgage & Protection Advisor
Mortgage Calculator
Monthly payments
Please set an interest rate.

Your home may be repossessed if you do not keep up repayments on your mortgage. There may be a fee for mortgage advice. The actual amount you pay will depend upon your circumstances.

Tax Calculator
LBTT calculator for properties purchased in Scotland. Stamp Duty calculator for properties purchased in England.
Land & buildings transaction tax (LBTT)
= £0
New build house with stone and timber cladding

Looking To Sell Or Let?

Rettie is one of the most trusted and well-respected names in property. Our unrivalled market knowledge helps people from around the world buy, sell, let and develop property in Scotland and the North East of England - from city apartments and rural cottages to large townhouses and prime country homes, farms and estates. We deal with some of the most prestigious properties on the market, but provide the same exceptional standards of service and value for money to all our clients.