Flat B, 12 Buchanan Drive, Newton Mearns, Glasgow, East Renfrewshire, G77 6QN

Newton Mearns, Glasgow, East Renfrewshire, G77 6QN
Under Offer
Pin View on map

Fixed Price £169,000

House

Ground Floor Apartment

Bed

2 Bedrooms

Bathroom

1 Bathroom

Reception

1 Reception Room

Tree

Communal Garden

Garage

Garage

Telephone

Property Description

Ground Floor Apartment in the Heart of Newton Mearns.

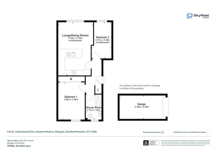
Located within a highly sought-after Newton Mearns address, this well presented two-bedroom ground floor apartment offers modern open plan living, generous room proportions, and the added benefit of a private garage. The property is ideal for first-time buyers, downsizers, or anyone looking for a well-located home close to excellent amenities.

The accommodation comprises a welcoming reception hallway with useful storage. The spacious open-plan lounge, dining and kitchen area forms the main hub of the home, featuring a bright layout perfect for relaxing or entertaining. The kitchen provides ample worktop space and modern units, with room for both dining and lounge furnishings.

There are two well-sized bedrooms, including a generous main bedroom with fitted wardrobe storage. Bedroom two offers flexibility and could be used as a guest room, home office, or nursery.

A contemporary shower room completes the internal layout.

Externally, the property benefits from a private garage, providing secure parking or additional storage. There are also generous communal gardens with open outlooks.

Newton Mearns is located approximately 9 miles from Glasgow City Centre. Commuter routes are served by the M77, M8 and Glasgow Southern Orbital motorways. Patterton Train Station is a short distance away. Newton Mearns is recognised for its standard of local amenities, providing an array of healthcare centres, banks and libraries and a broad range of supermarkets, boutique shops and restaurants, including The Avenue Shopping Centre and Greenlaw Retail Park which includes Waitrose, Tesco Metro, Aldi and a range of bars and restaurants and take aways. Buchanan Drive will allow access to some of Scotland's highest attaining primary and secondary schools, including Eastwood High and St. Ninian's High Schools.

Freehold
EPC: E
Council Tax: C

More Details

Situation: Communal Garden
Council Tax Band: C
Tenure: Contact Branch

Contact Us

Sophie Boyd

Sophie Boyd

Sales Negotiator
Roland Brownlee

Roland Brownlee

Mortgage & Protection Advisor
Mortgage Calculator
Monthly payments
Please set an interest rate.

Your home may be repossessed if you do not keep up repayments on your mortgage.

There may be a fee for mortgage advice. The actual amount you pay will depend upon your circumstances. The fee is up to 1% but a typical fee is 0.3% of the amount borrowed.

Tax Calculator
LBTT calculator for properties purchased in Scotland. Stamp Duty calculator for properties purchased in England.
Land & buildings transaction tax (LBTT)
= £0
New build house with stone and timber cladding

Looking To Sell Or Let?

Rettie is one of the most trusted and well-respected names in property. Our unrivalled market knowledge helps people from around the world buy, sell, let and develop property in Scotland and the North East of England - from city apartments and rural cottages to large townhouses and prime country homes, farms and estates. We deal with some of the most prestigious properties on the market, but provide the same exceptional standards of service and value for money to all our clients.