31 Bowmont Court, Heiton, Kelso, Scottish Borders, TD5 8JY

Heiton, Kelso, Scottish Borders, TD5 8JY
Pin View on map

Offers Over £655,000

House

Detached House

Bed

5 Bedrooms

Bathroom

3 Bathrooms

Reception

4 Reception Rooms

Size

2,723 sq.ft

Tree

Private Garden

Garage

Double Garage

Parking

Off Street Parking

Telephone

Property Description

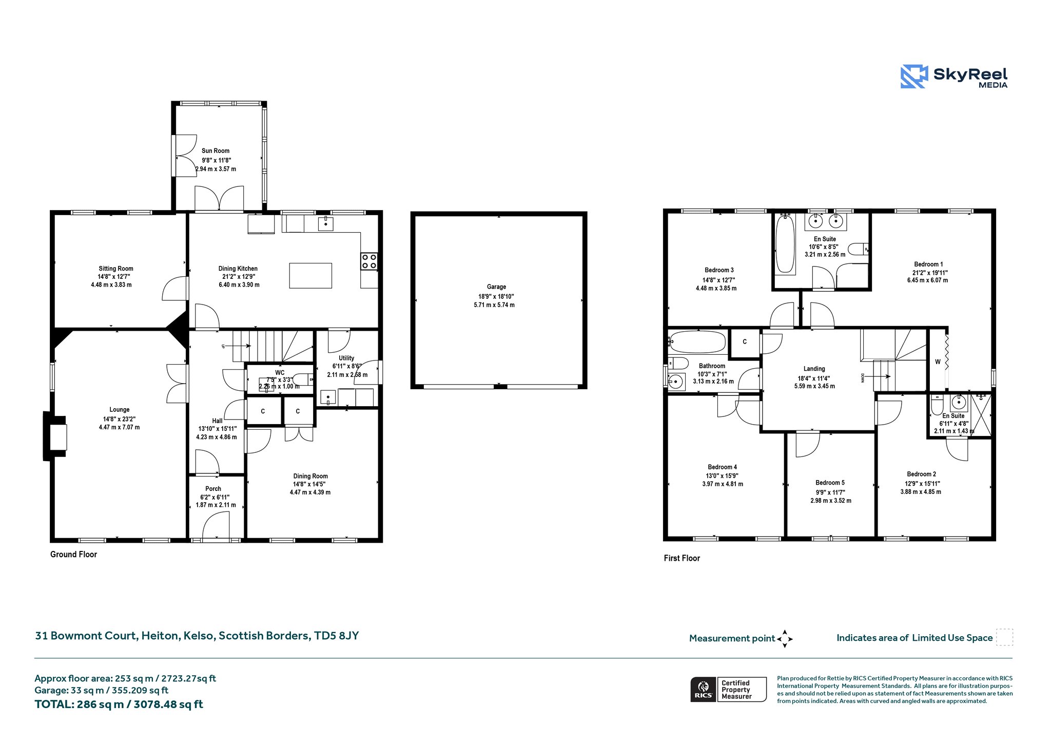
31 Bowmont Court is a charming and substantial five bedroom family home located within a peaceful residential development just 3 miles from the bustling Border town of Kelso. With fine views over the Roxburgh Viaduct, the property offers flexible family living over two principal floors:

Highlights Include

  • Three generous reception rooms.
  • Breakfasting kitchen with adjoining sunroom.
  • Five spacious bedroom spaces, two of which boast en-suite bathrooms.
  • Ample driveway parking and substantial double garage.
  • Large, south facing landscaped rear gardens.
  • Outstanding views over the River Tweed.
  • Peaceful residential location with easy access to green space.
  • 3 miles from the town centre of Kelso with its array of local amenities.
  • Excellent local schooling provision.

This family home is presented to the market in fine condition having been well maintained by the current owners. The property sits within walking distance to the Schloss Roxburghe Hotel with its championship golf course, spa and restaurant.

Set just a short distance from the Border town of Kelso, the property offers peaceful countryside living with the ease of access to local amenities, the A68 and the wider central Scottish Borders.

Accommodation Comprises

Ground Floor

Vestibule, Hallway, Drawing Room, Dining Room, Kitchen, Snug, Sun Room, Utility, WC & Cloakroom. Lift access to first floor from the rear sitting room to bedroom 3 on the first floor. (Note the current owners are happy to remove the lift and reinstate the ceiling prior to a new owner taking possession of the property.)

First Floor

Principal bedroom with en-suite, double bedroom with en-suite, two double bedrooms, single bedroom/study, family bathroom.

More Details

EPC: C
Council Tax Band: G
Tenure: Freehold

Viewing by appointment via Rettie & Co

Request More Details

Hugh Rettie

Hugh Rettie

Associate Director
Fraser Wardhaugh

Fraser Wardhaugh

Senior Sales Negotiator
Paul Banyard Cert CII (MP)

Paul Banyard Cert CII (MP)

Mortgage & Protection Advisor
Mortgage Calculator
Monthly payments
Please set an interest rate.

Your home may be repossessed if you do not keep up repayments on your mortgage.

There may be a fee for mortgage advice. The actual amount you pay will depend upon your circumstances. The fee is up to 1% but a typical fee is 0.3% of the amount borrowed.

Tax Calculator
LBTT calculator for properties purchased in Scotland. Stamp Duty calculator for properties purchased in England.
Land & buildings transaction tax (LBTT)
= £0
New build house with stone and timber cladding

Looking To Sell Or Let?

Rettie is one of the most trusted and well-respected names in property. Our unrivalled market knowledge helps people from around the world buy, sell, let and develop property in Scotland and the North East of England - from city apartments and rural cottages to large townhouses and prime country homes, farms and estates. We deal with some of the most prestigious properties on the market, but provide the same exceptional standards of service and value for money to all our clients.