Property Description
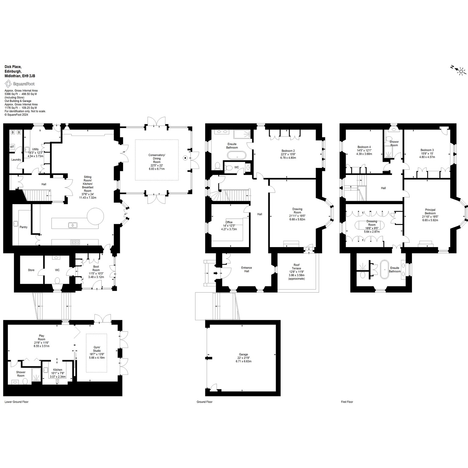
A rare opportunity to acquire an exceptional B-listed Victorian villa, situated on one of Edinburgh’s most enviable streets. This distinguished family home comprises over 6,000 sq ft of refined living space, complemented by expansive landscaped gardens. With ample space for entertaining and everyday living, the property creates a truly exclusive and private sanctuary within the affluent Grange area.
This detached villa boasts generously proportioned rooms that combine period charm with contemporary luxury. Thoughtfully finished to the highest standard, the kitchen benefits from state-of-the-art appliances. The property’s exterior has been entirely repointed and cleaned, while high-quality double-glazed windows enhance its appeal. The ground level has been reimagined with a spectacular orangery designed and built by Hampton Conservatories. Ensuring an advanced level of comfort, the home has been meticulously updated with smart home technology, CCTV and security systems.
The property features a remarkable annexe, complete with a guest suite and a versatile gym studio/office, ideal for both visitors and remote work. Residents can enjoy the tranquillity of generous gardens which include a large paddock, woodland and a delightful children’s play area, perfect for family gatherings or outdoor activities.
More Details
EPC: D
Council Tax Band: H
Tenure: Freehold
Viewing by appointment only.
Your home may be repossessed if you do not keep up repayments on your mortgage. There may be a fee for mortgage advice. The actual amount you pay will depend upon your circumstances.
Similar Properties
Looking To Sell Or Let?
Rettie is one of the most trusted and well-respected names in property. Our unrivalled market knowledge helps people from around the world buy, sell, let and develop property in Scotland and the North East of England - from city apartments and rural cottages to large townhouses and prime country homes, farms and estates. We deal with some of the most prestigious properties on the market, but provide the same exceptional standards of service and value for money to all our clients.
