Flat 3, 41 York Place, Edinburgh, EH1 3HP

Edinburgh, EH1 3HP
Under Offer
Pin View on map

Fixed Price £300,000

House

Upper Floor Apartment

Bed

1 Bedroom

Bathroom

1 Bathroom

Reception

1 Reception Room

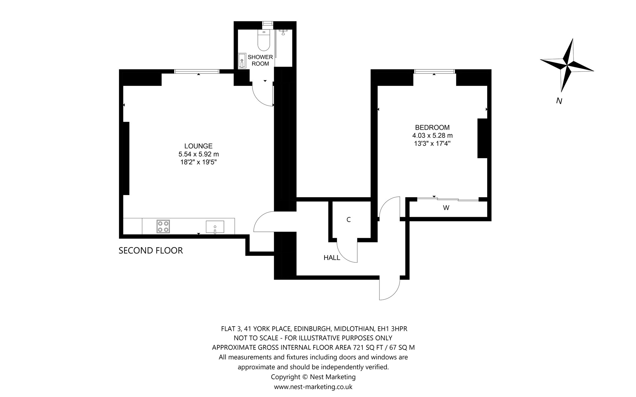
Size

721 sq.ft

Parking

On Street/Permit

Telephone

Property Description

Flat 3, 41 York Place is a beautifully presented second-floor apartment situated in the very heart of Edinburgh’s vibrant city centre. This immaculate one-bedroom property offers an exceptional blend of period charm, contemporary design, and unrivalled convenience — making it an ideal home for city professionals, first-time buyers, investors, or those seeking a refined pied-à-terre.

Occupying a prime position on York Place, the apartment benefits from soaring ceiling heights and a bright, south-facing aspect with direct views over the impressive St James Quarter — Edinburgh’s premier retail and lifestyle destination. The generous open-plan lounge and kitchen area spans nearly 6 metres in both width and length, providing a wonderfully light and airy living space perfect for relaxing or entertaining. The kitchen is sleek and modern, integrated neatly into the living space while still allowing for generous seating and dining zones.

The spacious double bedroom is equally impressive, with ample room for furnishings and a large window that continues the theme of abundant natural light. A stylish, fully tiled shower room and a practical storage cupboard off the hall complete the internal accommodation, all finished to an exceptionally high standard.

Summary Of Accommodation

Open plan sitting room, kitchen and dining room, double bedrooms with fitted wardrobe, bathroom with shower.

More Details

Tenure - Freehold
Council Tax - E
EPC - C

Contact Us

Brodie Ballantine

Brodie Ballantine

Senior Sales Negotiator/Valuer
Paul Banyard Cert CII (MP)

Paul Banyard Cert CII (MP)

Mortgage & Protection Advisor
Mortgage Calculator
Monthly payments
Please set an interest rate.

Your home may be repossessed if you do not keep up repayments on your mortgage.

There may be a fee for mortgage advice. The actual amount you pay will depend upon your circumstances. The fee is up to 1% but a typical fee is 0.3% of the amount borrowed.

Tax Calculator
LBTT calculator for properties purchased in Scotland. Stamp Duty calculator for properties purchased in England.
Land & buildings transaction tax (LBTT)
= £0
New build house with stone and timber cladding

Looking To Sell Or Let?

Rettie is one of the most trusted and well-respected names in property. Our unrivalled market knowledge helps people from around the world buy, sell, let and develop property in Scotland and the North East of England - from city apartments and rural cottages to large townhouses and prime country homes, farms and estates. We deal with some of the most prestigious properties on the market, but provide the same exceptional standards of service and value for money to all our clients.