Property Description
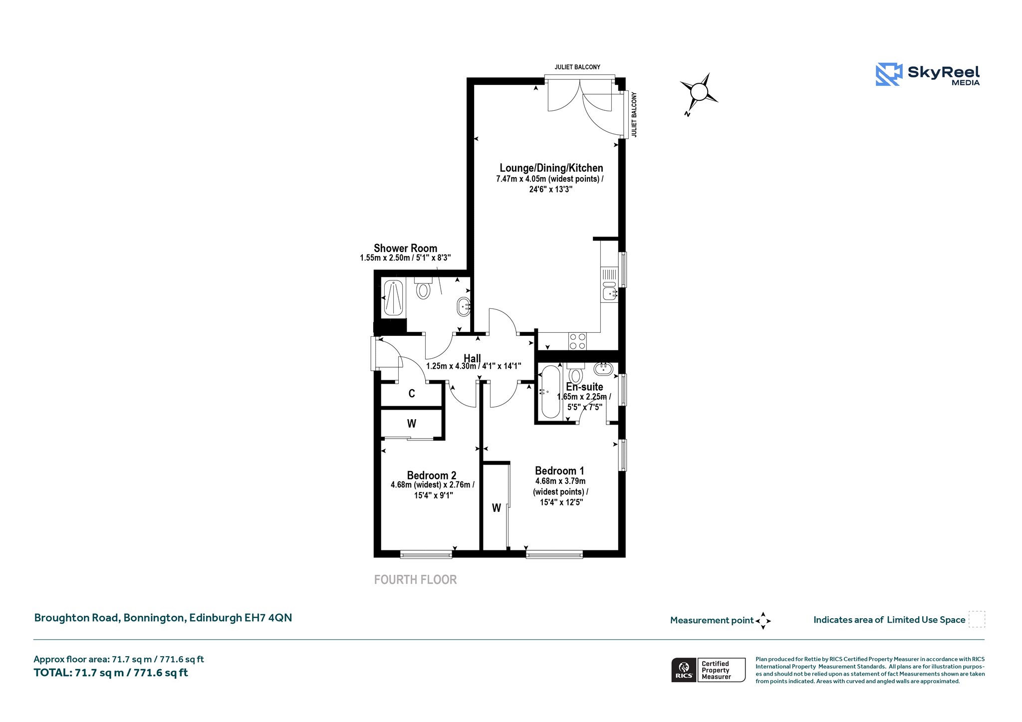
Flat 16, 201 Broughton Road is a spacious and bright fourth floor, modern apartment built in 2017 by Westpoint Homes, combining practicality with city centre convenience. Accessed via a secure entry phone system and communal stair with lift service, this two bedroom flat enjoys a bright, elevated position with dual aspect views across the surrounding neighbourhood to Arthur’s Seat, Calton Hill, and Edinburgh Castle. The accommodation flows with an open plan living/dining area, a modern kitchen, two well proportioned bedrooms and two bathrooms - ideal for professionals, couples or investors seeking quality city living.
Residents benefit from the added advantage of two permits for unallocated resident parking within the development, whilst on-street parking is also available in the neighbouring streets. Situated in a well maintained block, the property is just a short walk from local shops, cafés, transport links and green spaces in the vibrant Bonnington district. With its mixture of comfort, security and location, Flat 16 offers an excellent opportunity for those seeking a turn key home in the heart of the city.
Summary Of Accommodation
Shared Entry and Communal Stair with Lift Service and Secure Phone Entry System
Hall, Open Plan Sitting/Dining Room/Kitchen, Two Juliet Balconies, Principal Bedroom with ensuite Bathroom and Fitted Wardrobe, Double Bedroom Two with Fitted Wardrobe, Shower Room, Hall Cupboard
Residents Communal Gardens & Two Permits for Unallocated Residents Parking
More Details
EPC: C
Council Tax Band: E
Tenure: Freehold
Viewing by appointment.
Your home may be repossessed if you do not keep up repayments on your mortgage.
There may be a fee for mortgage advice. The actual amount you pay will depend upon your circumstances. The fee is up to 1% but a typical fee is 0.3% of the amount borrowed.
Similar Properties
Looking To Sell Or Let?
Rettie is one of the most trusted and well-respected names in property. Our unrivalled market knowledge helps people from around the world buy, sell, let and develop property in Scotland and the North East of England - from city apartments and rural cottages to large townhouses and prime country homes, farms and estates. We deal with some of the most prestigious properties on the market, but provide the same exceptional standards of service and value for money to all our clients.
