Offers Over £220,000
Duplex Apartment
1 Bedroom
1 Bathroom
1 Reception Room
700 sq.ft
Off Street Parking
Property Description
67/8 Giles Street is a beautifully presented one-bedroom duplex flat set within a highly sought-after location in Leith, offering stylish accommodation over two levels and presented in excellent condition throughout. The property enjoys a bright and well-maintained interior, making it an ideal home for professionals, couples or investors looking for a property in one of Edinburgh’s most vibrant and desirable areas.
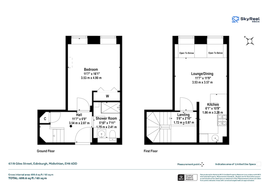
The ground floor accommodation comprises a welcoming entrance hall which provides access to a generously proportioned double bedroom and a contemporary shower room. The bedroom is well sized and filled with natural light, offering comfortable living space along with useful storage. The modern shower room is finished to a high standard and complements the overall excellent condition of the property.
On the upper level, the flat opens into a bright and airy lounge and dining area, creating a fantastic space for both relaxing and entertaining. The open feel of this level enhances the sense of space and light throughout the home. Adjacent to the living area is a well-designed kitchen fitted with modern units and appliances, providing both practicality and style for everyday cooking and dining.
A particularly appealing feature of this property is the inclusion of a private parking space, a highly valuable asset in this popular and central area. Having dedicated parking provides both convenience and peace of mind, adding significant appeal for residents and visitors alike.
Situated on Giles Street, the flat is perfectly positioned to enjoy the excellent range of cafés, restaurants, bars and independent shops that Leith is known for, while also benefiting from superb transport links to the city centre and surrounding areas. Combining a prime location, excellent condition throughout and the rare benefit of private parking, this attractive duplex flat represents a fantastic opportunity to acquire a home in one of Edinburgh’s most desirable neighbourhoods.
Accommodation Comprises
Ground Floor
Entrance hall with hall cupboard, principal bedroom with walk-in wardrobe, family shower room
First Floor
Internal stair leading to a landing, lounge / dining room, kitchen.
Outside Space:
Dedicated private parking.
Location
Leith is one of Edinburgh’s most vibrant and sought-after districts, celebrated for its rich maritime heritage, thriving cultural scene, and outstanding amenities. Centred around the historic Shore area, it offers a superb mix of award-winning restaurants, stylish bars, and independent cafés, along with galleries, boutique shops, and waterside walks.
The neighbourhood is well served by everyday conveniences, including supermarkets, gyms, and excellent public transport links- the tram now runs directly from Leith to the city centre and onward to Edinburgh Airport. Scenic green spaces such as Leith Links and the Water of Leith walkway provide welcome outdoor escapes, while Ocean Terminal shopping centre and the Royal Yacht Britannia are popular attractions nearby.
With its unique blend of history, community spirit, and contemporary living, Leith appeals to professionals, families, and creatives alike, making it one of Edinburgh’s most desirable places to call home.
More Details
EPC: D
Council Tax Band: C
Tenure: Freehold.
Viewing by appointment via Rettie & Co.
Your home may be repossessed if you do not keep up repayments on your mortgage.
There may be a fee for mortgage advice. The actual amount you pay will depend upon your circumstances. The fee is up to 1% but a typical fee is 0.3% of the amount borrowed.
Similar Properties
Looking To Sell Or Let?
Rettie is one of the most trusted and well-respected names in property. Our unrivalled market knowledge helps people from around the world buy, sell, let and develop property in Scotland and the North East of England - from city apartments and rural cottages to large townhouses and prime country homes, farms and estates. We deal with some of the most prestigious properties on the market, but provide the same exceptional standards of service and value for money to all our clients.
