Merchiston, Linton Bank Drive, West Linton, Scottish Borders, EH46 7DT
Offers Over £925,000
Detached House
4 Bedrooms
2 Bathrooms
3 Reception Rooms
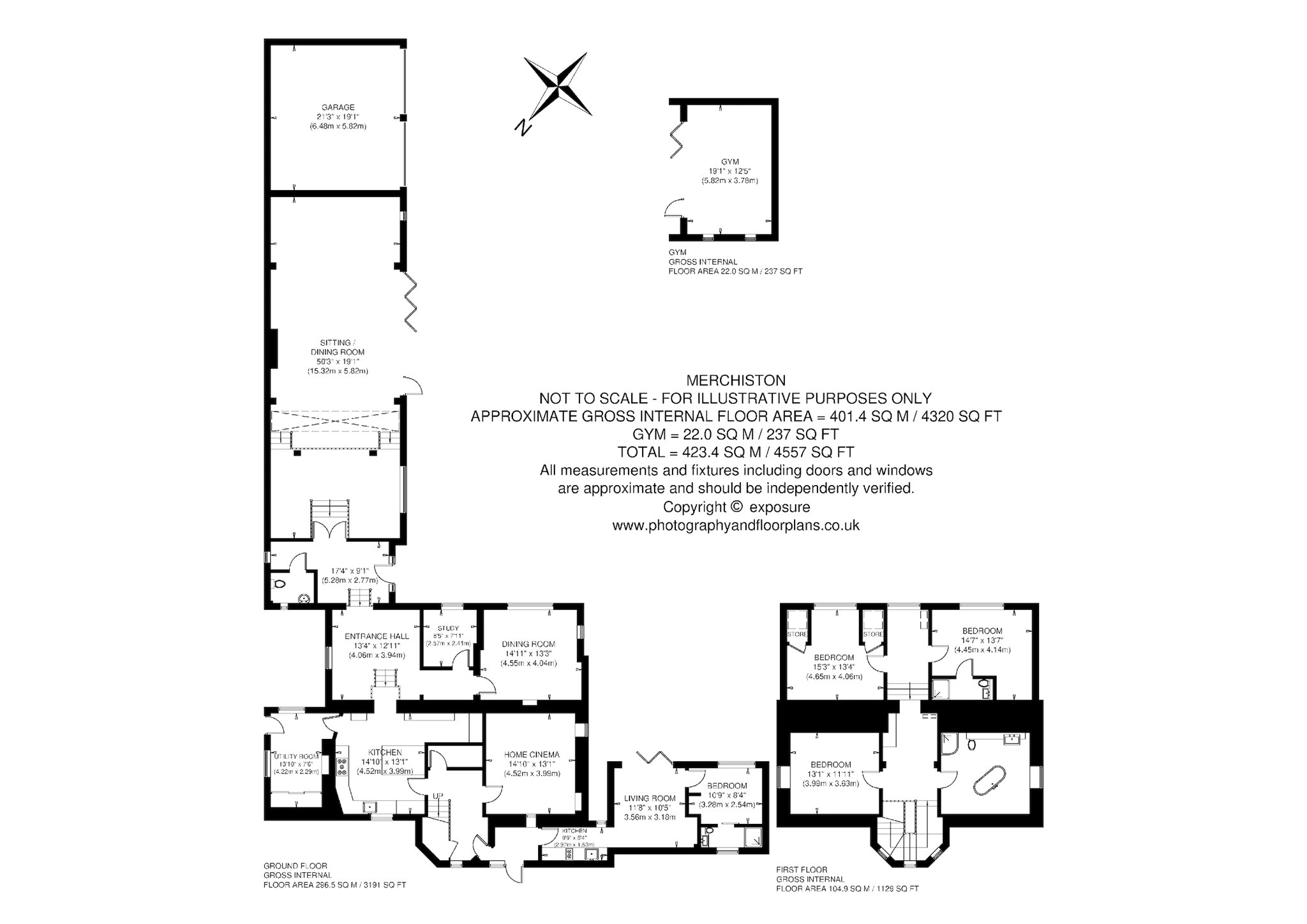
4,320 sq.ft
About 0.35 Acres
Private Garden
Double Garage
Property Description
A beautifully presented and highly individual detached home with 4 bedrooms inclusive of a separate studio/annexe, offering bright and versatile accommodation, set within private landscaped gardens just moments from the heart of West Linton and within commuting distance of Edinburgh.
Summary Of Accommodation
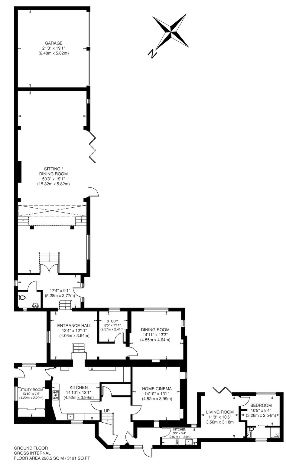
Ground Floor: Entrance Hall, Sitting Room, Dining Room, Kitchen- Breakfast Room, Cinema Room/Bedroom 5 Study and a Cloakroom.
Studio/Annexe: Open Plan Kitchenette-Sitting Area, Double Bedroom with En Suite Shower Room.
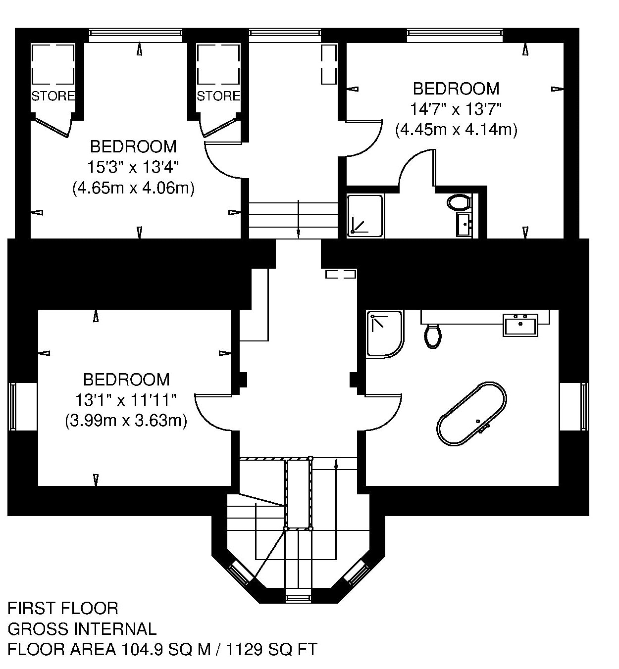
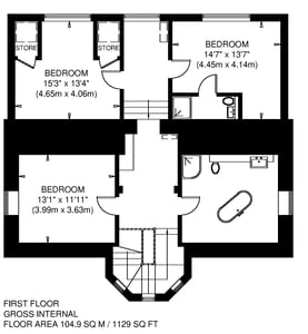
First Floor: Landing, Principal Bedroom with En Suite Shower, Two Further Double Bedrooms and a Family Bathroom.
Garden: A private enclosed front garden, predominantly laid to lawn, with a central feature pond. To the rear of the garden is a further area of garden which is planted and features a rockery garden.
Gym/Outbuildings: A gym/garden office, outdoor kitchen, covered outdoor seating area, bike shed and garden store.
Double Garage: A secure double garage with electric doors.
About: 0.35 Acres
More Details
EPC Band - Band G
Councl Tax Band - Band G
Tenure - Freehold
Your home may be repossessed if you do not keep up repayments on your mortgage.
There may be a fee for mortgage advice. The actual amount you pay will depend upon your circumstances. The fee is up to 1% but a typical fee is 0.3% of the amount borrowed.
Similar Properties
Looking To Sell Or Let?
Rettie is one of the most trusted and well-respected names in property. Our unrivalled market knowledge helps people from around the world buy, sell, let and develop property in Scotland and the North East of England - from city apartments and rural cottages to large townhouses and prime country homes, farms and estates. We deal with some of the most prestigious properties on the market, but provide the same exceptional standards of service and value for money to all our clients.
