Lanrigg Farm, Old Lindsaybeg Road, Chryston, Glasgow, North Lanarkshire, G69 9HB
Property Description
Lanrigg Farm is a rarely available, versatile smallholding offering a superb range of potential options including further development, hobby farm or equestrian opportunities.
Located on the edge of Chryston, 7 miles east of Glasgow the property is in circa 3.5 acres and includes and extensive range of outbuildings.
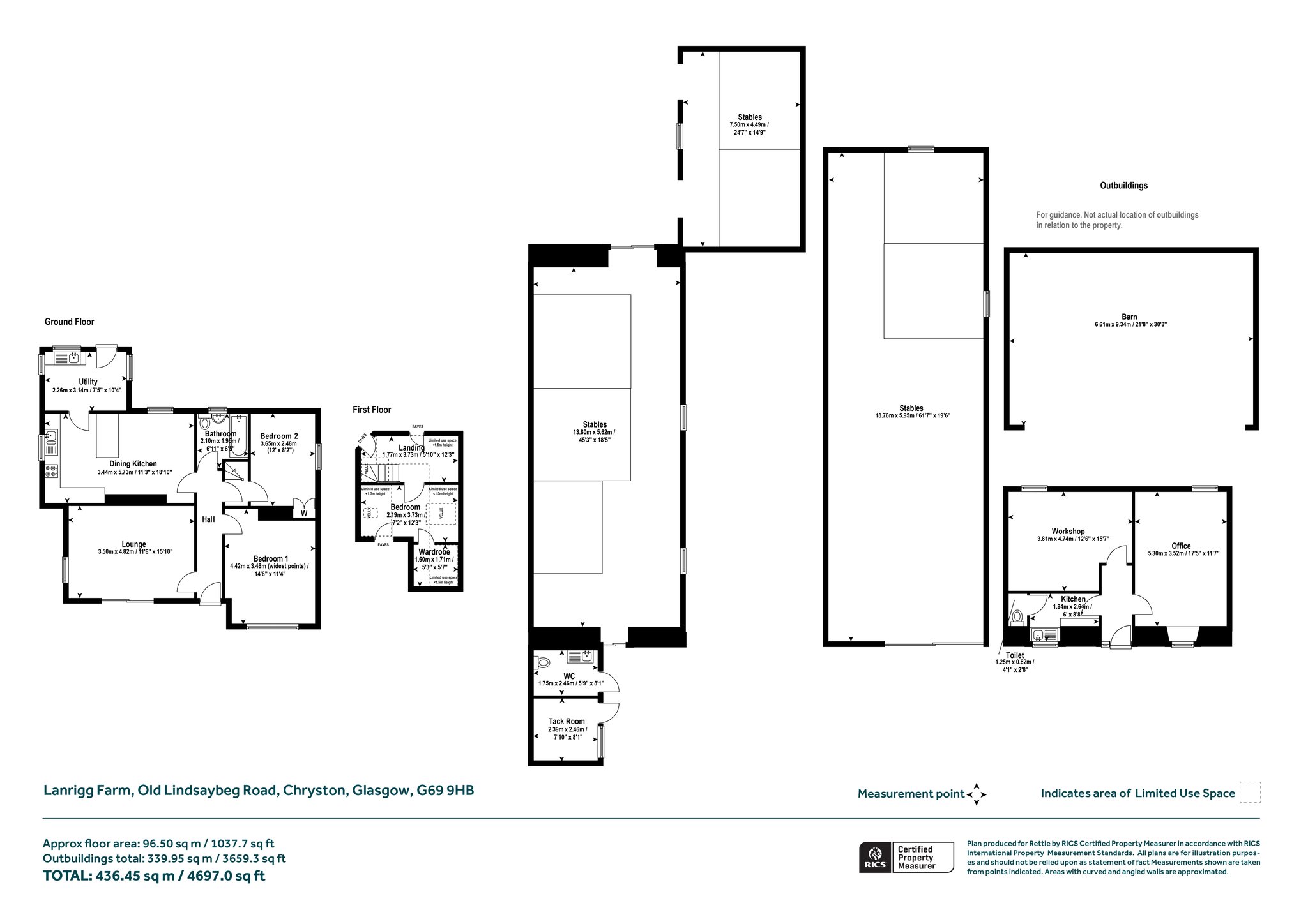
The existing farmhouse requires upgrading and comprises entrance hallway, lounge, dining kitchen, utility room, bathroom and 2 bedrooms with attic room.
There is an extensive range of outbuildings which includes office, workshop and kitchen; large barn, stables, wc and tack room. There is also a sand and rubber riding arena.
Positioned at the bottom of Old Lindsaybeg Road, the property is well placed for local amenities yet enjoys a peaceful setting.
Cottage
Reception hallway, lounge, dining kitchen, utility room, bathroom, 3 bedrooms, walled terraced area.
Outbuildings/Outside:
3.5 acres, stable block, tack room, wc, barn, office, workshop, kitchen; courtyard, riding arena.
Chryston is located 7 miles northeast of Glasgow and lies adjacent to Muirhead and Moodiesburn. It is ideally positioned for those looking for a mix of village life and easy access to a vast transport network on the doorstep. There are an excellent range of local amenities and schooling nearby as well plenty of restaurants, cafes, and gyms all nearby.
EPC : BAND E
COUNCIL TAX : BAND H
TENURE : FREEHOLD
More Details
Situation: Contact branch
Council Tax Band: H
Tenure: Contact Branch
Your home may be repossessed if you do not keep up repayments on your mortgage.
There may be a fee for mortgage advice. The actual amount you pay will depend upon your circumstances. The fee is up to 1% but a typical fee is 0.3% of the amount borrowed.
Similar Properties
Looking To Sell Or Let?
Rettie is one of the most trusted and well-respected names in property. Our unrivalled market knowledge helps people from around the world buy, sell, let and develop property in Scotland and the North East of England - from city apartments and rural cottages to large townhouses and prime country homes, farms and estates. We deal with some of the most prestigious properties on the market, but provide the same exceptional standards of service and value for money to all our clients.
