52 Hazelwood Avenue, Newton Mearns, Glasgow, East Renfrewshire, G77 5QS

Newton Mearns, Glasgow, East Renfrewshire, G77 5QS
Under Offer
Pin View on map

Offers Over £575,000

House

Detached House

Bed

5 Bedrooms

Bathroom

4 Bathrooms

Reception

2 Reception Rooms

Size

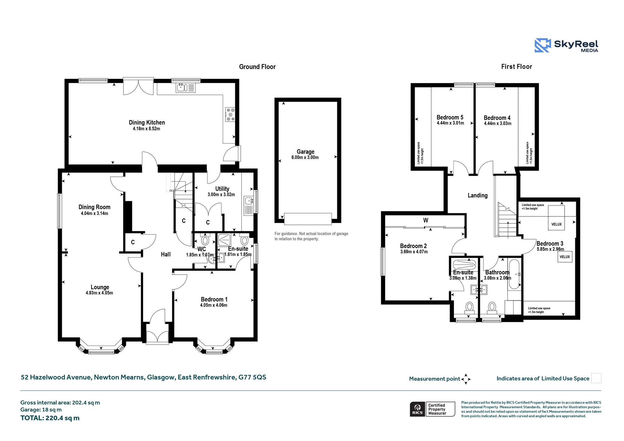
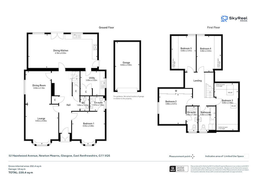
2,454 sq.ft

Tree

Private Garden

Garage

Garage

Telephone

Property Description

A beautifully extended five-bedroom chalet-style villa, this fantastic family home occupies a level plot within fully enclosed, secluded, and thoughtfully landscaped gardens. Offering exceptional flexibility and generous accommodation, it is perfectly suited to modern family living.

The property benefits from double glazing throughout, gas central heating, a driveway, and a detached garage.

Upon entering through the porch, you are welcomed into a bright reception hallway with storage, providing access to all ground-floor rooms. The impressive baywindowed lounge and dining room enjoys dual-aspect windows with attractive views over both the front and rear gardens. The contemporary dining kitchen is spacious and well appointed, featuring integrated appliances and patio doors opening directly onto the rear garden. Just off the kitchen is a large utility room with excellent storage, housing the boiler and hot-water system.

A generous baywindowed bedroom with ensuite overlooks the front garden and offers valuable flexibility for those seeking a groundfloor bedroom—ideal for guests or multigenerational living. A convenient downstairs WC completes the accommodation on this level.

A well-lit staircase leads to the upper floor and into a notably spacious landing with excellent head height. The principal bedroom enjoys garden views to the front and benefits from fitted wardrobes and an ensuite shower room. Two further wellproportioned bedrooms overlook the rear gardens, while the fifth bedroom, complete with Velux windows, adds further versatility. A modern threepiece family bathroom completes the upper level.

The beautifully landscaped and fully enclosed gardens offer excellent privacy and a wonderful outdoor space for families. The driveway provides ample parking and leads to the garage.

Located within a highly sought-after pocket of Newton Mearns, the property is ideally positioned for a superb range of local amenities and highly regarded, nationally recognised schooling. The Avenue Shopping Centre and Greenlaw Village provide an excellent selection of shops, restaurants, and supermarkets, while the area also boasts a wealth of leisure facilities including parks, golf courses, health clubs, and gyms. Excellent transport links are nearby, with Whitecraigs Station offering swift commuter access to Glasgow city centre and beyond.

Freehold

More Details

Situation: Private Garden
Council Tax Band: F
Tenure: Freehold

Contact Us

Alison Anderson

Alison Anderson

Associate Director
Roland Brownlee

Roland Brownlee

Mortgage & Protection Advisor
Mortgage Calculator
Monthly payments
Please set an interest rate.

Your home may be repossessed if you do not keep up repayments on your mortgage.

There may be a fee for mortgage advice. The actual amount you pay will depend upon your circumstances. The fee is up to 1% but a typical fee is 0.3% of the amount borrowed.

Tax Calculator
LBTT calculator for properties purchased in Scotland. Stamp Duty calculator for properties purchased in England.
Land & buildings transaction tax (LBTT)
= £0
New build house with stone and timber cladding

Looking To Sell Or Let?

Rettie is one of the most trusted and well-respected names in property. Our unrivalled market knowledge helps people from around the world buy, sell, let and develop property in Scotland and the North East of England - from city apartments and rural cottages to large townhouses and prime country homes, farms and estates. We deal with some of the most prestigious properties on the market, but provide the same exceptional standards of service and value for money to all our clients.