Flat 5, 9 Chester Street, Edinburgh, EH3 7RF

Edinburgh, EH3 7RF
Pin View on map

Monthly Rental £2,495 PCM

House

Upper Floor Apartment

Bed

2 Bedrooms

Bathroom

2 Bathrooms

Reception

1 Reception Room

Furnishing

Furnished

Calendar

Available Now

Size

101 sq.m

Tree

Communal Garden

Telephone

Property Description

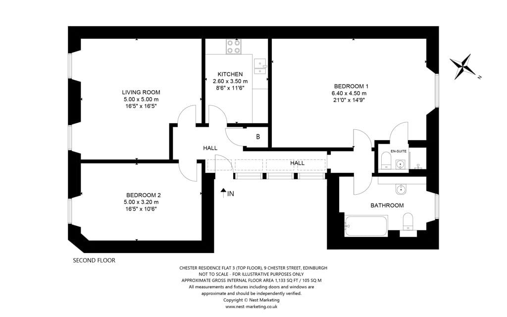
Top floor apartment in the centrally located Chester Street in the heart of the beautiful West End. Close to all transport links including Haymarket Railway Station, Trams, and bus links. Easy walking distance to George Street and Princess Steet. An ideal central location.

Secure entry system in place that leads to an elegant and impressive entrance hall and staircase. Access to residents’ gardens.

Accommodation comprises of two large bedrooms one with a ensuite shower room. There is an additional luxury family bathroom. The lounge/dining room to the front of the building has lovely views to St Mary's Cathedral. Fully equipped Kitchen with oven, hob, fridge/freezer and washer/dryer.

Please enjoy the matterport tour
https://my.matterport.com/show/?m=5bNk9BLaTwX

More Details

Council Tax Band: F
EPC: D
LARN:1903047
LL Registration: 1512570/230/02122
Deposit: £3450.00

Request More Details

Stephanie Harkness

Stephanie Harkness

Portfolio Manager
modern detached house with stone and timber cladding

Looking To Sell Or Let?

Rettie is one of the most trusted and well-respected names in property. Our unrivalled market knowledge helps people from around the world buy, sell, let and develop property in Scotland and the North East of England - from city apartments and rural cottages to large townhouses and prime country homes, farms and estates. We deal with some of the most prestigious properties on the market, but provide the same exceptional standards of service and value for money to all our clients.