47 Larkfield Gardens, Edinburgh, EH5 3QB

Edinburgh, EH5 3QB
Pin View on map

Monthly Rental £4,500 PCM

House

Terraced House

Bed

5 Bedrooms

Bathroom

4 Bathrooms

Reception

2 Reception Rooms

Furnishing

Unfurnished

Calendar

Available Now

Size

238 sq.m

Tree

Private Garden

Garage

Garage

Parking

Off Street Parking

Telephone

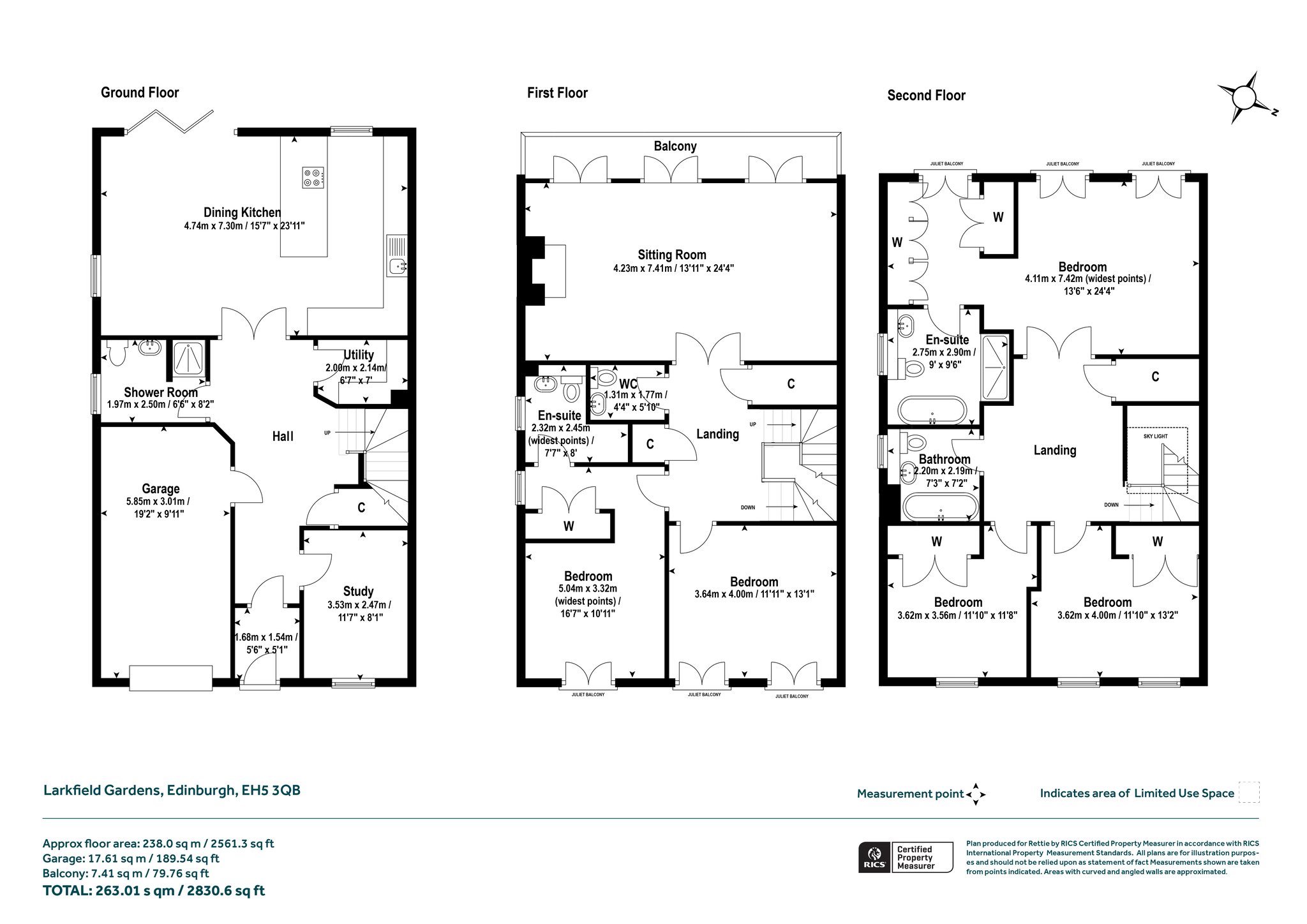
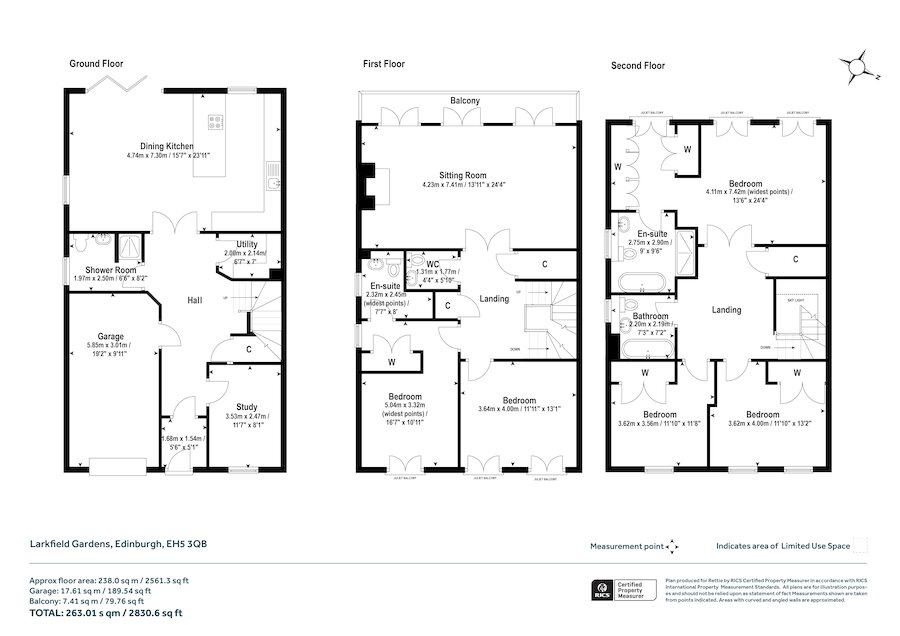
Property Description

A stylish five-bedroom terraced townhouse with garage and private parking, offering generous, light-filled unfurnished accommodation across three levels, within walking distance of Edinburgh’s city centre.

Set within the sought-after Cala Homes development in Trinity, the property is immaculately presented with modern décor, combining elegant design with practical family living.

Accommodation Comprises

Ground floor – Entrance vestibule and welcoming hallway with under stair cupboard; Large open-plan dining kitchen with breakfasting island and direct garden access through French doors; Study/Bedroom 5; Utility room; Shower room; Integral garage with internal access, plus driveway parking.

First floor – Landing with two cupboards; Beautiful spacious sitting room with living flame gas fire and three sets of doors leading out to the balcony; Double bedroom with dressing area and en-suite shower room; Additional double bedroom; WC.

Second floor – Principal bedroom with dressing room, en-suite bathroom, and Juliet balcony; Two further double bedrooms; Family bathroom.

Externally, the private rear garden features a lawn, patio, mature trees, and a tranquil water feature—perfect for family life and entertaining. The property further benefits from GCH, double glazing and ramp access.

Trinity is one of Edinburgh’s most desirable residential areas, offering a peaceful setting close to the city centre. There are excellent local amenities at Goldenacre, including convenience stores, restaurants and a pharmacy, and larger supermarkets nearby.

The Royal Botanic Garden, Inverleith and Victoria Parks and the Water of Leith walkway are all a short walk away, and Westwoods Health Club, David Lloyd Newhaven, and The Grange Cricket Club are also all nearby.

The property falls within the catchment for Wardie Primary and Trinity Academy, with a range of independent schools including Fettes College, The Edinburgh Academy, and ESMS close at hand. There is also a bus connecting directly to George Heriot’s in 30 minutes, further excellent bus links into the city, easy road access to the City Bypass and A1, and Edinburgh International Airport can be reached in 20 minutes.

More Details

Unfurnished
Deposit: £4,700
Council Tax Band: H
EPC Rating: C
Landlord Registration Pending: 1788230/230/28082 and 1788723/230/04092
LARN1903047

Request More Details

Kornelia Niedzieska

Kornelia Niedzieska

Portfolio Manager
modern detached house with stone and timber cladding

Looking To Sell Or Let?

Rettie is one of the most trusted and well-respected names in property. Our unrivalled market knowledge helps people from around the world buy, sell, let and develop property in Scotland and the North East of England - from city apartments and rural cottages to large townhouses and prime country homes, farms and estates. We deal with some of the most prestigious properties on the market, but provide the same exceptional standards of service and value for money to all our clients.